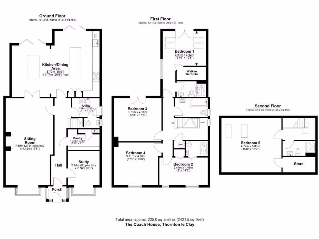
Substantial family home with paddock and impressive entertaining spaces.
Double-bay five-bedroom detached home with flexible family layout
Set in a quiet village hamlet, The Coach House is a spacious five-bedroom detached home that suits growing families wanting countryside life with convenient living. Living areas flow well for daily life and entertaining — a dual-aspect lounge with a log burner and a showstopping kitchen/diner with a roof lantern, island and bi-fold doors that open directly onto the garden.
The property sits on an extensive plot that includes a beautifully landscaped garden and approximately 0.5 acre paddock, approached through gated double-drive access for privacy and parking. Upstairs there is a principal suite with walk-in wardrobe, Juliet balcony and luxury en-suite, a second en-suite bedroom, two further first-floor bedrooms and a fifth bedroom with private bathroom on the second floor — flexible for children, guests or a home office.
Eco touches include fitted solar panels, and modern double glazing was installed after 2002. Practical rooms such as a utility, study/snug and guest cloakroom add everyday convenience. Local primary schools rated Good are within reach and the setting offers low crime and a peaceful rural community.
Buyers should note a few material points: the house uses oil-fired heating and an oil boiler, council tax is high, broadband speeds are slow, and the original solid brick walls are assumed uninsulated which may affect running costs or require retrofit insulation. These factors are worth considering alongside the home’s size, plot and village location.
5 bedroom detached house for sale in The Old Village, Huntington, York, North Yorkshire, YO32 — £995,000 • 5 bed • 7 bath • 5700 ft²
5 bedroom detached house for sale in YO60 - Gower Hall Barn, YO60 — £1,725,000 • 5 bed • 5 bath • 5376 ft²
4 bedroom detached house for sale in The Lane, Gate Helmsley, York, YO41 — £800,000 • 4 bed • 3 bath • 3116 ft²
7 bedroom detached house for sale in Welham, Malton, North Yorkshire, YO17 — £2,750,000 • 7 bed • 5 bath • 6397 ft²
5 bedroom detached house for sale in Stockton Lane, Stockton on the Forest, York, North Yorkshire, YO32 — £875,000 • 5 bed • 3 bath • 2500 ft²
4 bedroom house for sale in Melbourne, York, North Yorkshire, YO42 4QJ, YO42 — £543,000 • 4 bed • 1 bath • 1665 ft²


























































































































































































































