**Standout Features:**
- Beautifully renovated, contemporary family home
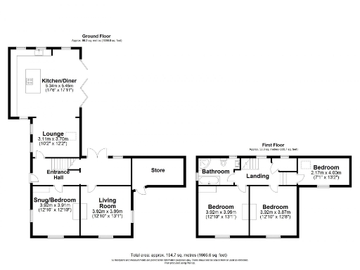
- Open plan kitchen/living/dining area with Velux roof lights
- Main living room with Esse multi-fuel burner
- Versatile snug/second reception room can serve as a fourth bedroom
- Three good-sized bedrooms on the first floor with characterful fireplaces
- Stunning landscaped rear garden with raised patio, water feature, and timber workshop
- Garden room suitable for home office or leisure use
- Off-street parking for multiple cars
- Located in a low-crime, affluent village setting
**Summary:**
This stunning and recently renovated detached family home offers the perfect blend of contemporary design and charming character. The open plan kitchen, living, and dining areas are flooded with natural light, ideal for both family gatherings and entertaining. Enjoy cozy evenings by the Esse multi-fuel burner in the inviting living room, with additional options like a snug that can easily convert into a fourth bedroom. Upstairs, three spacious bedrooms feature delightful period fireplaces, enhancing the home’s warmth and charm.
Step outside to discover a beautifully landscaped garden, featuring a raised patio for summer barbecues, a bespoke water feature, and a versatile garden room that can accommodate your ideal home office or gym. With off-street parking for several vehicles and a peaceful village location, this property checks all the boxes for modern family life.
Don’t miss your chance to view this exclusive home situated in a desirable community with top-rated local schools—schedule your visit to experience comfort and opportunity right away!
3 bedroom semi-detached house for sale in Main Street, Bubwith, Selby, YO8 6LX, YO8 — £325,000 • 3 bed • 1 bath • 1402 ft²
4 bedroom detached house for sale in Meltonby, Pocklington, York, YO42 — £650,000 • 4 bed • 3 bath • 2371 ft²
3 bedroom detached house for sale in Kilnwick Road, Pocklington, York, YO42 — £500,000 • 3 bed • 2 bath • 1451 ft²
4 bedroom detached house for sale in Barmby Moor, Pocklington, York, YO42 — £440,000 • 4 bed • 2 bath • 1622 ft²
2 bedroom semi-detached house for sale in Back Lane, Barmby Moor, York, YO42 4EP, YO42 — £365,000 • 2 bed • 1 bath • 1197 ft²
5 bedroom detached house for sale in Church Hill, Middleton On The Wolds, Driffield, YO25 — £475,000 • 5 bed • 2 bath • 3445 ft²










































































































