Spacious four‑bedroom property with garden, storage and planning permission for a second dwelling.
Four bedrooms including principal with en‑suite and walk‑in wardrobe
Full planning permission for a detached dwelling in rear garden
Large sloping garden with decked terrace and lower patio areas
Large store room beneath property ideal for bikes and tools
Garage/utility currently in use; required removal for approved development
EPC C; mains gas central heating and uPVC double glazing
Slow broadband speeds in the area may limit home working
Older construction likely needs wall insulation or energy upgrades
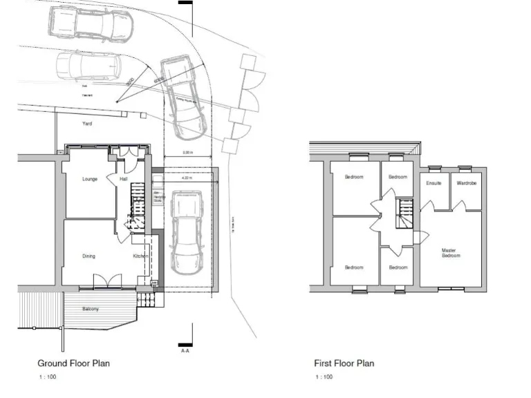
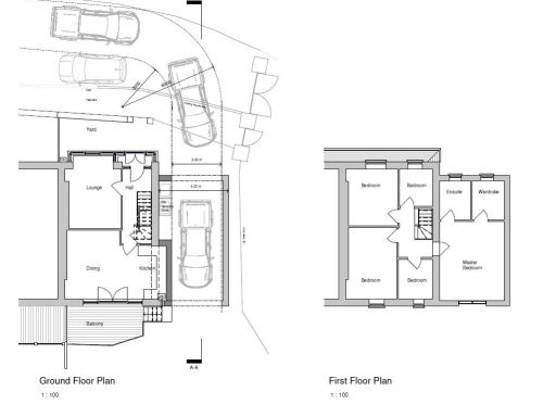
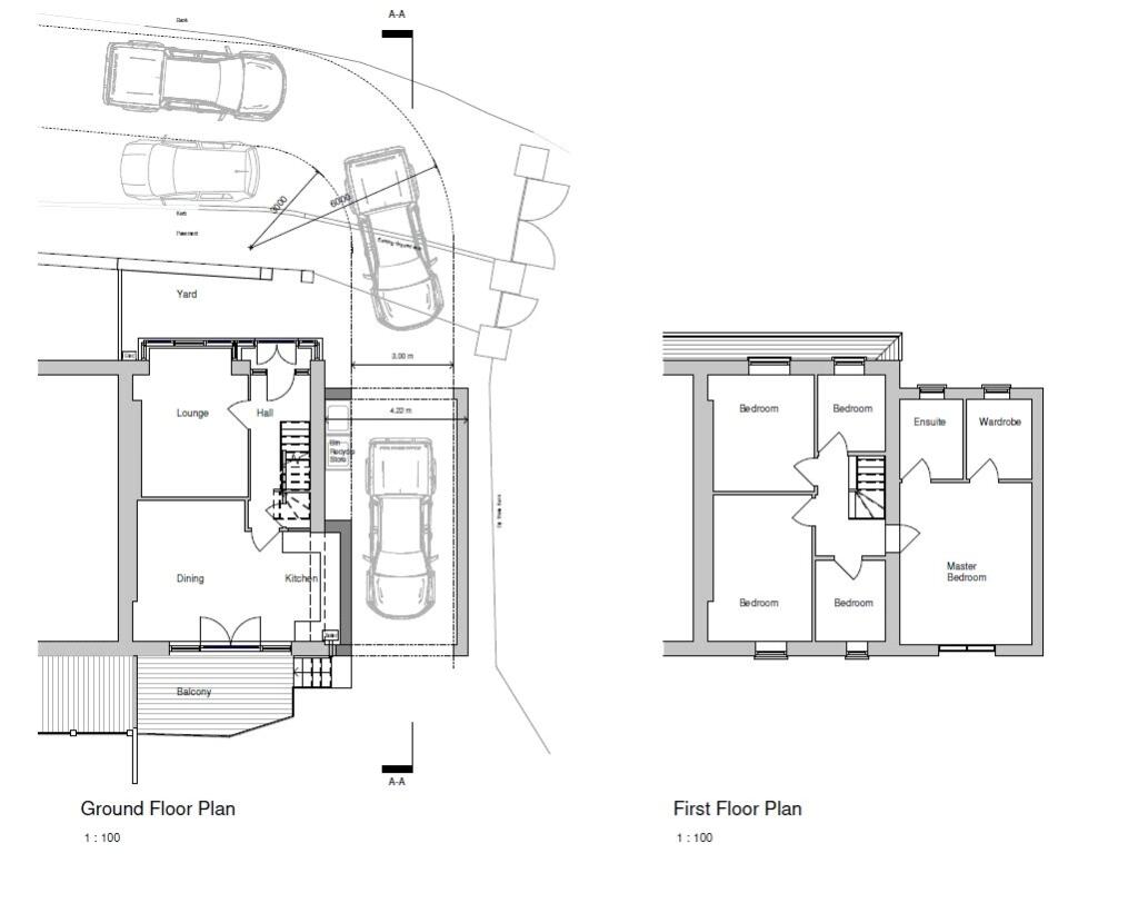
Set on an elevated plot at the edge of Ilfracombe, this four‑bedroom end‑terrace offers generous family accommodation and far‑reaching rear views. Spacious reception rooms, a sunlit dining room and a kitchen/diner opening onto a decked terrace give flexible living and straightforward indoor–outdoor flow. A large store room beneath the house and a garage/utility add useful storage and workshop space.
The extensive sloping rear garden provides substantial landscaping and gardening potential and already benefits from full planning permission for a modern detached dwelling. That consent is a clear value driver for buyers seeking multi‑generational living, rental income, or a development project; note it requires reconfiguration of the ground floor (removal of kitchen, WC and garage/utility) for vehicle access as per the approved scheme.
Practical details: the property has mains gas heating, uPVC double glazing and an EPC rating of C. Broadband speeds are slow in the area, and the solid/early cavity wall construction likely needs insulation upgrades to improve thermal performance. Overall this is a well‑proportioned family home offering immediate comfort with credible scope for improvement and a rare permitted development opportunity on a large plot.
4 bedroom detached house for sale in Hillsborough Park Road, Ilfracombe, Devon, EX34 — £335,000 • 4 bed • 2 bath • 1139 ft²
4 bedroom terraced house for sale in Highfield Road, Ilfracombe, EX34 — £350,000 • 4 bed • 1 bath • 1032 ft²
5 bedroom detached house for sale in Croftswood Gardens, Ilfracombe, Devon, EX34 — £450,000 • 5 bed • 2 bath • 1275 ft²
4 bedroom terraced house for sale in Station Road, Ilfracombe, Devon, EX34 — £345,000 • 4 bed • 2 bath • 2296 ft²
2 bedroom terraced house for sale in Hillington, Ilfracombe, Devon, EX34 — £220,000 • 2 bed • 1 bath • 606 ft²
5 bedroom semi-detached house for sale in Highfield Terrace, Ilfracombe, Devon, EX34 — £355,000 • 5 bed • 2 bath • 1334 ft²














































































