Elevated four-bedroom house with planning permission and large sloping garden.
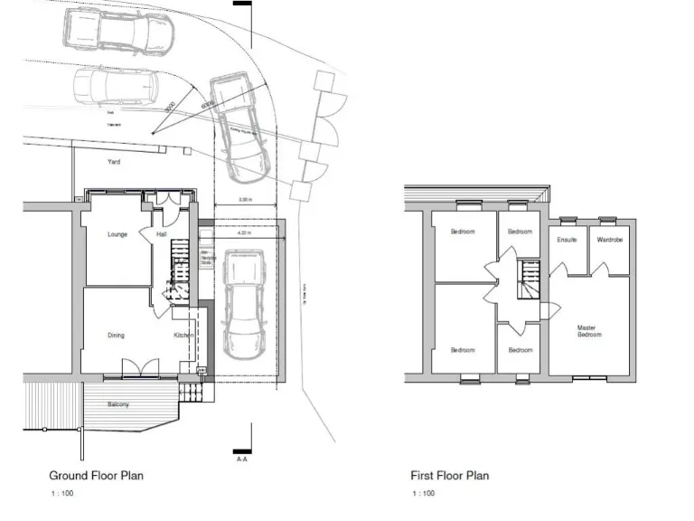
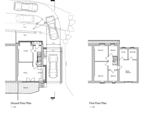
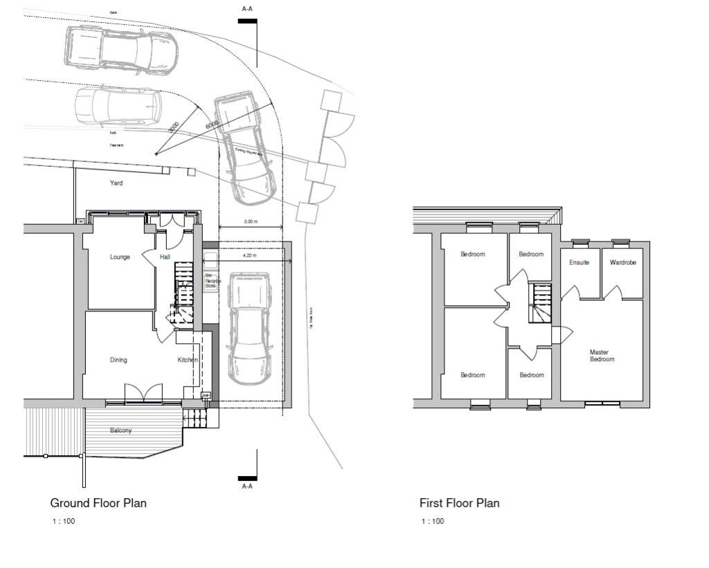
Four bedrooms, principal with en-suite and walk-in wardrobe
Full planning permission for detached dwelling in rear garden
Guide Homewise Lifetime Lease price £301,500 (over‑60s illustrative)
Full market price £450,000; Lifetime saving depends on age/circumstances
Large sloping rear garden with decked terrace and lower patio
Garage used as utility; ground-floor reconfiguration required for new access
Broadband speeds slow; check tenure (not stated)
Approx. 1,139 sq ft with gas central heating and uPVC glazing
Set on an elevated plot in Ilfracombe, this spacious four-bedroom detached home offers comfortable upstairs living, generous outdoor space and clear development potential. The principal bedroom includes an en-suite and walk-in wardrobe; gas central heating and uPVC double glazing are fitted throughout. The property extends to about 1,139 sq ft and includes a garage currently used as a utility plus a large store room beneath the house.
A major attraction is full planning permission to build a modern detached dwelling in the rear garden, with vehicle access achievable by reconfiguring the existing ground floor (this would require removal of the current kitchen, WC and garage/utility). That consent creates options for multigenerational living, holiday income or a developer refurbishment — buyers should factor in the cost and scope of reconfiguration works.
This listing is promoted with a Homewise Home for Life illustrative price for buyers aged 60+ (Lifetime Lease guide price £301,500; full market value £450,000). The Lifetime Lease saving and the exact price payable depend on age, personal circumstances and the proportion of value a buyer chooses to secure. The property can also be purchased at the full market price by other buyers; interested parties must confirm tenure and purchase routes.
Practical points: the plot is large and sloping with decked and patio terraces and excellent outlooks, but broadband speeds are slow. Tenure is not stated and should be checked by solicitors. Overall this is a substantial retirement-friendly home with immediate liveability and a clear planning-led opportunity for added value.
5 bedroom detached house for sale in Croftswood Gardens, Ilfracombe, Devon, EX34 — £301,500 • 5 bed • 2 bath • 1275 ft²
4 bedroom semi-detached house for sale in Furze Hill Road, Ilfracombe, Devon, EX34 — £274,750 • 4 bed • 1 bath • 1702 ft²
4 bedroom detached house for sale in Hillsborough Park Road, Ilfracombe, Devon, EX34 — £450,000 • 4 bed • 2 bath • 1139 ft²
4 bedroom detached house for sale in Marlborough Road, Ilfracombe, Devon, EX34 — £248,000 • 4 bed • 1 bath
5 bedroom semi-detached house for sale in Highfield Terrace, Ilfracombe, Devon, EX34 — £237,750 • 5 bed • 2 bath • 1334 ft²
4 bedroom semi-detached house for sale in Newberry Hill, Berrynarbor, Ilfracombe, Devon, EX34 — £368,500 • 4 bed • 2 bath • 1613 ft²














































































