Approved plans for a family-sized detached home close to the coast and local schools.
- Freehold building plot a few yards from Ferring seafront
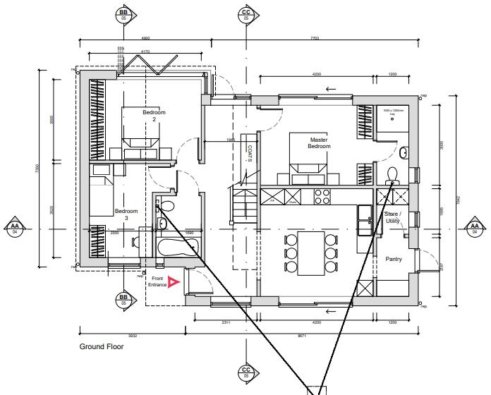
- Planning approved (FG/92/24/PL) for 3-bed, 2-bath two-storey home
- Proposed internal area c.1326 sq ft
- Extremely large plot with room for a private garden
- No recorded flood risk; very low local crime
- Broadband speeds reported as slow; likely upgrade needed
- Planning conditional — surveys and compliance required before build
- Conflicting data lists 1 bedroom; planning specifies three bedrooms
A rare freehold building plot a few yards from Ferring seafront with conditional planning approved (Ref FG/92/24/PL) for a three-bedroom, two-bathroom home over two floors. The proposed house offers around 1,326 sq ft of internal space and sits on an extremely large plot, allowing for a good-sized private garden and landscaping. The site is in an affluent, very low-crime area within Arun council and benefits from excellent mobile signal and close proximity to local schools and seafront amenities.
This is a practical opportunity for a self-builder, developer or family wanting a contemporary detached home in a desirable coastal village. The permission is material value — buyers will need to factor in build costs, site preparation and any planning conditions or infrastructure contributions. The listing information includes a conflicting note that the property has one bedroom; the planning approval supersedes that and specifies a three-bedroom, two-bathroom dwelling.
Buyers should note some material drawbacks: broadband speeds in the area are reported as slow, so wired upgrades may be necessary; the planning is conditional and may require compliance work before build; and purchasers must allow time and budget for construction, utilities connections and any landscaping. There is no flood risk recorded, but any buyer should carry out their own technical surveys (ground, drainage, services and structural) before exchange.
In summary: the plot offers strong location and development potential close to the coast, with approved plans for a family-sized home. It suits purchasers prepared to manage a new build project and factor in connection, build and compliance costs.
Plot for sale in Toddington Lane, Littlehampton, BN17 — £280,000 • 1 bed • 1 bath • 2260 ft²
4 bedroom detached house for sale in Grange Park, Ferring, Worthing, BN12 — £1,000,000 • 4 bed • 1 bath • 1421 ft²
Property for sale in Hoe Lane, Flansham, Bognor Regis, West Sussex, PO22 — £1,000,000 • 1 bed • 1 bath • 4100 ft²
Land for sale in Amberley Drive, Goring-By-Sea, Worthing, BN12 — £100,000 • 1 bed • 1 bath
3 bedroom semi-detached bungalow for sale in West Onslow Close, Ferring, BN12 — £450,000 • 3 bed • 1 bath • 901 ft²
Land for sale in Arundel Road, Worthing, West Sussex, BN13 3EQ, BN13 — £50,000 • 1 bed • 1 bath • 2657 ft²






































