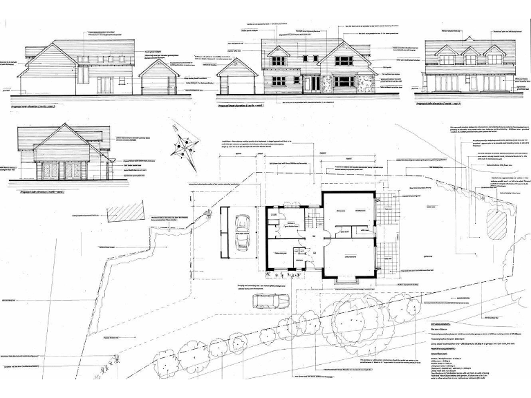
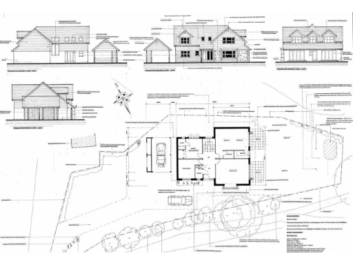
Full planning granted for a substantial five‑bed family house on a generous plot.
- Freehold building plot approx 0.32 acres (961m²)
- Full Planning Consent (Arun DC ref LU/176/23/PL) for five‑bed executive home
- Proposed home approx 2,690 sq.ft (planning); check measured figures
- Plot sold as land — purchaser responsible for construction and connections
- Generous private gardens and off‑street parking/car port shown in plans
- Slow broadband in area; budget for upgraded internet solutions
- Affluent area, low crime, excellent mobile signal and good local schools
- Asking price £280,000; building costs and fees extra
A rare freehold building plot in a popular Littlehampton location, offered with Full Planning Consent (Arun District Council ref LU/176/23/PL) for an executive five‑bedroom family home. The site extends to approximately 0.32 acres (961m²) and benefits from private garden space, off‑street parking and a degree of privacy on a quiet lane. The planning scheme proposes around 2,690 sq.ft of accommodation, including an open‑plan family kitchen, ground‑floor en‑suite bedroom and multiple first‑floor bedrooms with two further en‑suites — a layout suited to modern home‑working and family life.
This is a clear purchase for a buyer wanting to build rather than move straight in: the plot is sold as land and will require arranging the build, utilities connections and finishing works. Broadband in the area is reported slow, so budget for a higher‑spec connection (e.g., fibre or private solutions) if fast home working or streaming is important. The vendor has secured full planning consent, but any purchaser should review planning conditions and building regulations before exchange.
Local advantages are tangible: low crime, an affluent neighbourhood classification, excellent mobile signal and a selection of well‑rated primary and secondary schools within easy reach. The site price of £280,000 reflects the planning permission in place and the large plot size — offering scope for a substantial family house, strong visual curb appeal and landscaped gardens once completed.
Serious buyers and small developers will value the permitted scheme and sizeable footprint for a high‑spec family residence. Be clear that the purchase is for the land and consent; construction, utilities and fit‑out costs are additional and will determine the overall project budget and timescale.
Property for sale in Hoe Lane, Flansham, Bognor Regis, West Sussex, PO22 — £1,000,000 • 1 bed • 1 bath • 4100 ft²
Land for sale in Plots C & D, Hampton Park, Toddington Lane, Littlehampton, West Sussex, BN17 — POA • 1 bed • 1 bath
Land for sale in Sea Drive, Ferring, Worthing, West Sussex, BN12 — £400,000 • 1 bed • 1 bath • 1326 ft²
Land for sale in Plots A & B Hampton Park, Toddington Lane, Littlehampton, West Sussex, BN17 — POA • 1 bed • 1 bath
Plot for sale in Barnham Road, Eastergate, Chichester, West Sussex, PO20 — £1,400,000 • 1 bed • 1 bath
Land for sale in Arundel Road, Worthing, West Sussex, BN13 3EQ, BN13 — £50,000 • 1 bed • 1 bath • 2657 ft²


































