**Standout Features:**
- Prime development site with approved planning for four detached barn-style homes (Y/46/24/S73 and Y/77/22/PL).
- Expansive plot size of 2.8 acres with a total floor area of approximately 4,100 sq ft.
- Freehold tenure, new build potential, and chain-free.
- Low crime area, excellent mobile signal, and fast broadband speeds.
- Close to Felpham village and well-linked to coastal leisure activities.
**Summary:**
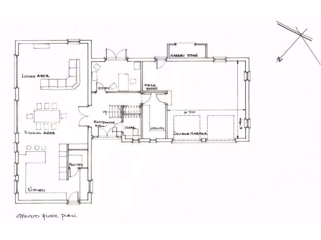
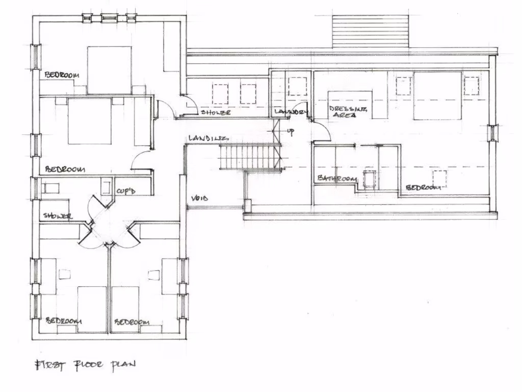
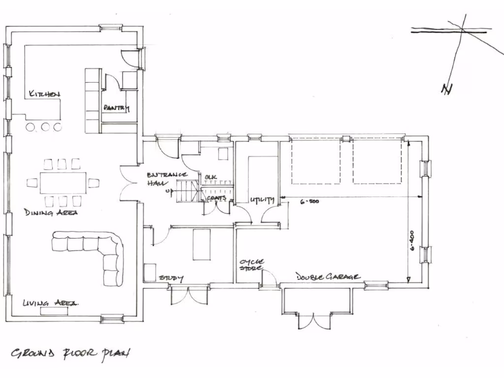
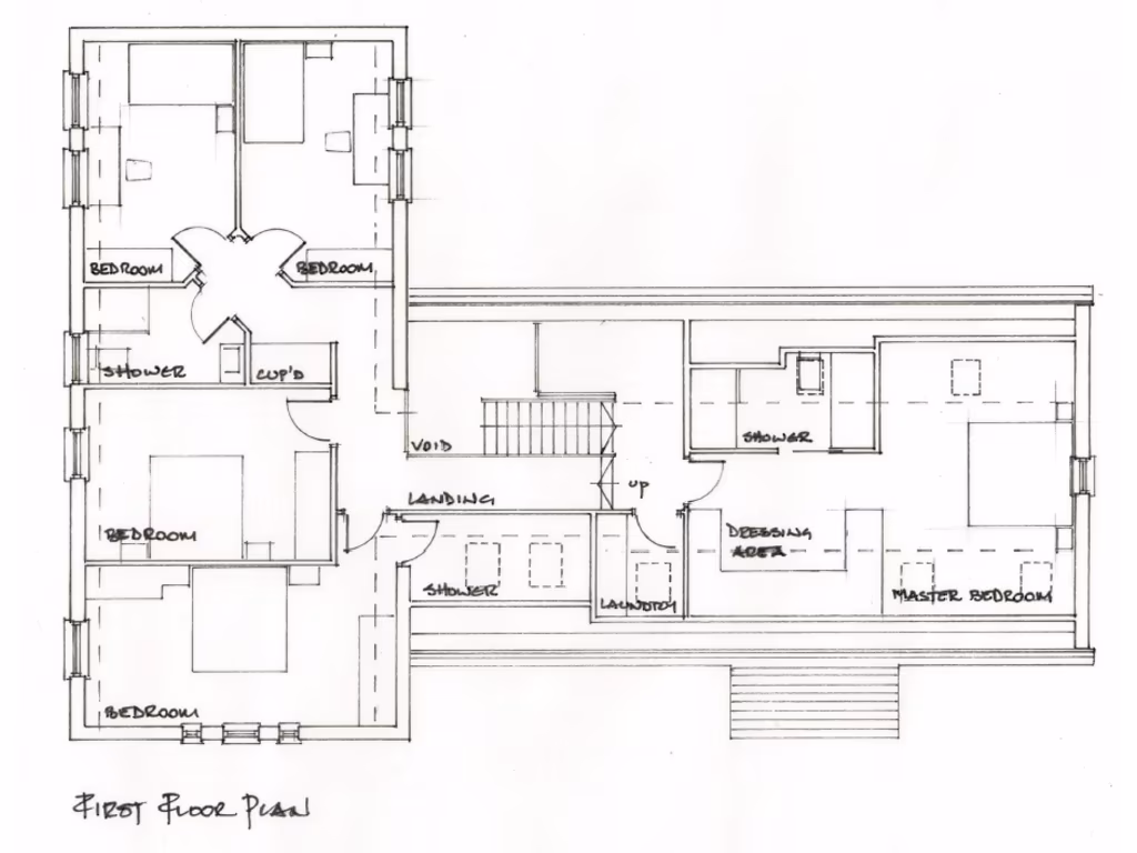
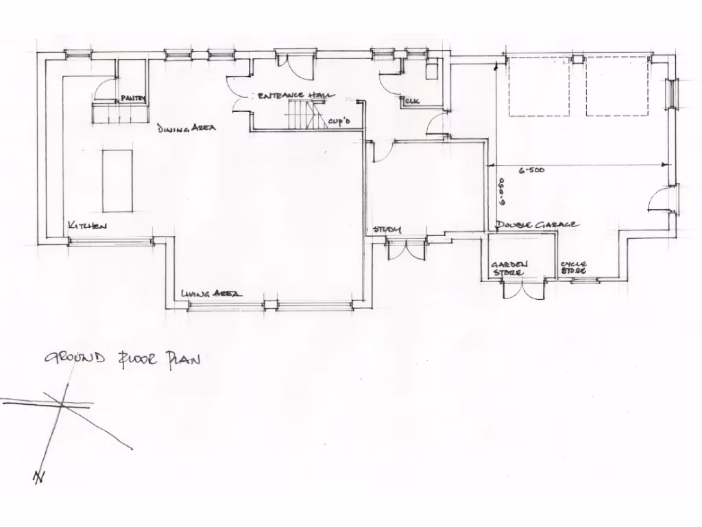
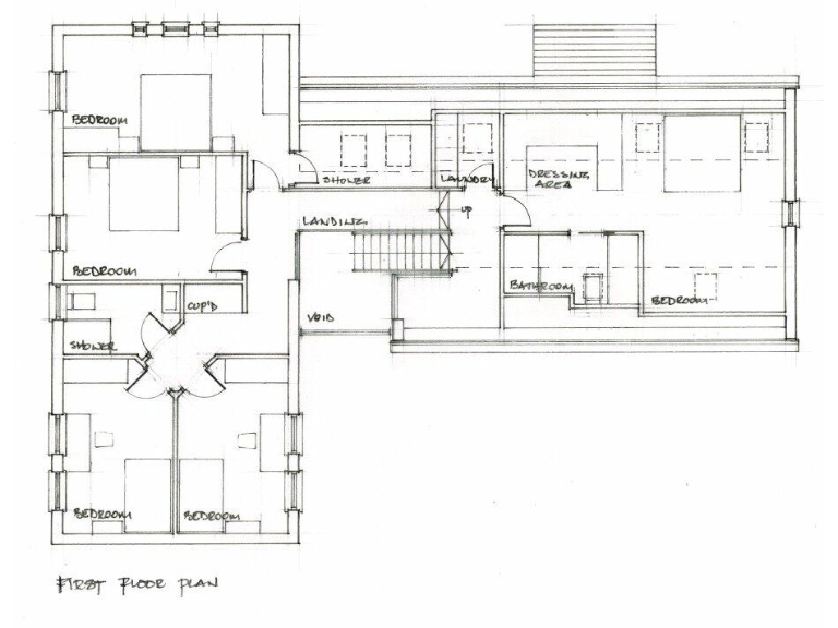
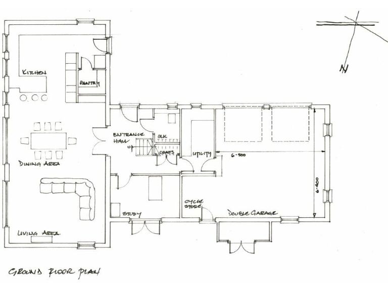
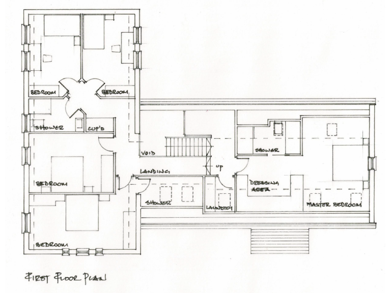
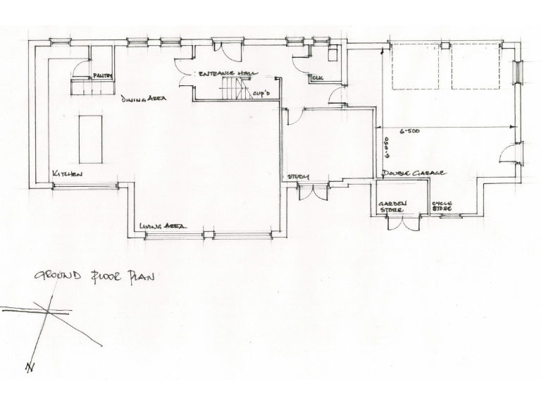
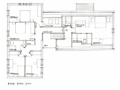
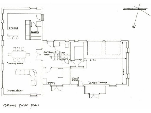
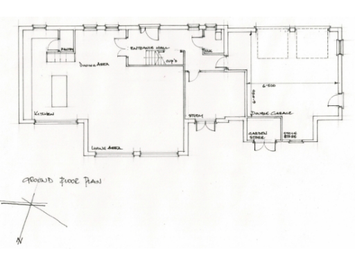
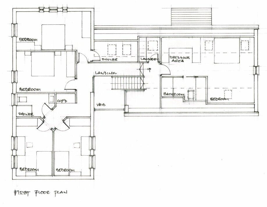
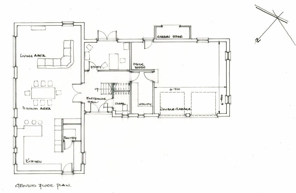
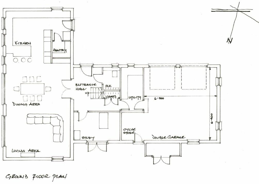
Seize this exceptional opportunity to develop a stunning new residential community in a picturesque setting with approved planning permission for four modern barn-style homes. Ideal for developers or investors, this 2.8-acre site offers not only spacious living designs but also the charm of a no-through residential lane, combining the best of suburban life with proximity to the beach.
Each proposed structure boasts generous square footage, with the largest detached home including a double garage. The area is rich in amenities with local shops just a mile away, plus easy access to major supermarkets and charming market towns. Nature lovers will appreciate the seamless access to the South Downs National Park and a variety of water-based leisure activities along the coast. Though the site is well-equipped for new builds, be mindful of the foul sewer running through the property, which will require careful planning for development.
This is a unique opportunity in an affluent area—don't miss your chance to secure your future in this evolving community!
Plot for sale in Barnham Road, Eastergate, Chichester, West Sussex, PO20 — £1,400,000 • 1 bed • 1 bath
Office for sale in Lake Lane, Barnham, Bognor Regis, PO22 — £2,200,000 • 1 bed • 1 bath
Land for sale in Sea Drive, Ferring, Worthing, West Sussex, BN12 — £400,000 • 1 bed • 1 bath • 1326 ft²
Land for sale in Shripney Road, Bognor Regis, PO22 — £850,000 • 4 bed • 1 bath
Plot for sale in The Piggery Yard, Green Lane, Ham Road, Sidlesham, PO20 — £230,000 • 1 bed • 1 bath • 1883 ft²
Property for sale in Highground Lane, Barnham, West Sussex, PO22 — £400,000 • 1 bed • 1 bath










































































