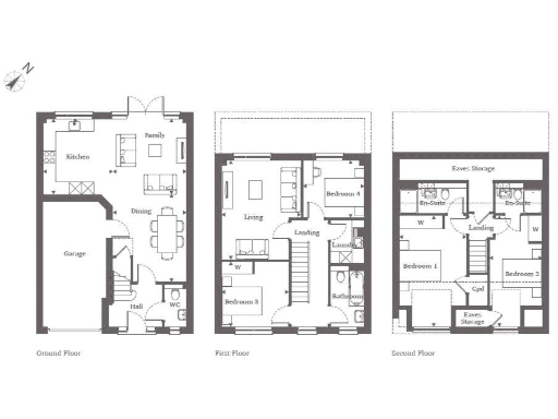
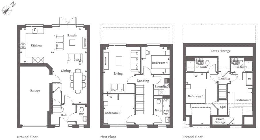
Walk to the Thames and Staines station from this energy-efficient four-bedroom home with integral garage.
Four double bedrooms, two with en suite shower rooms
This newly built four-bedroom mid-terrace at Moor Lane offers family-focused living with contemporary finishes and practical daily comforts. The open-plan ground floor, energy-efficient fitted kitchen and integral garage create a low-maintenance hub for everyday life and entertaining. Two double bedrooms and a family bathroom sit on the middle floor, while two top-floor double bedrooms each have fitted wardrobes and en suite showers for added privacy.
Practical features include an internal laundry room, composite stone worktops, integrated energy-efficient appliances and electric vehicle charging points — all designed to reduce running costs. The property occupies a large plot for its type and comes with allocated parking beside the garage. Staines railway station is within walking distance with direct trains to London Waterloo in around 30 minutes, and the River Thames is approximately a seven-minute walk away.
Buyers should note a few important points: this is a mid-terrace new build (shared party walls), tenure details and council tax band are not provided, and local crime levels are reported above average. Internal images are indicative of the show home rather than this specific plot. Overall, the home will suit families seeking modern, low‑maintenance accommodation close to transport links and local amenities.
4 bedroom terraced house for sale in Swansfield Close, Staines-upon-Thames, Surrey, TW18 — £770,000 • 4 bed • 2 bath • 1477 ft²
3 bedroom terraced house for sale in Moor Lane, Staines-upon-Thames, Surrey, TW18 — £665,000 • 3 bed • 2 bath • 1168 ft²
3 bedroom terraced house for sale in Langley Road, Staines-upon-Thames, Surrey, TW18 — £610,000 • 3 bed • 2 bath • 1065 ft²
2 bedroom apartment for sale in Moor Lane, Staines-upon-Thames, Surrey, TW18 — £395,000 • 2 bed • 2 bath • 661 ft²
4 bedroom end of terrace house for sale in Gloucester Crescent, Staines-upon-Thames, TW18 — £650,000 • 4 bed • 3 bath • 2012 ft²
4 bedroom end of terrace house for sale in Langley Road, Staines-upon-Thames, Surrey, TW18 — £765,000 • 4 bed • 3 bath • 1442 ft²






























































