Large renovated four-bed with versatile outbuilding near schools and transport.
New main roof and fully renovated interior
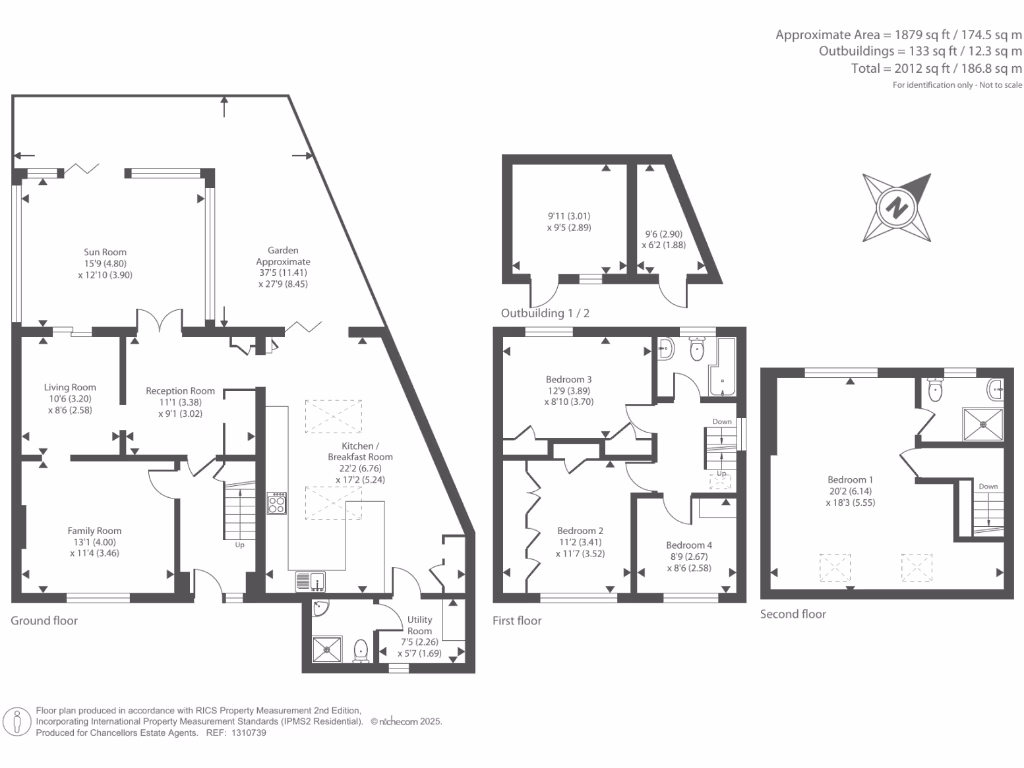
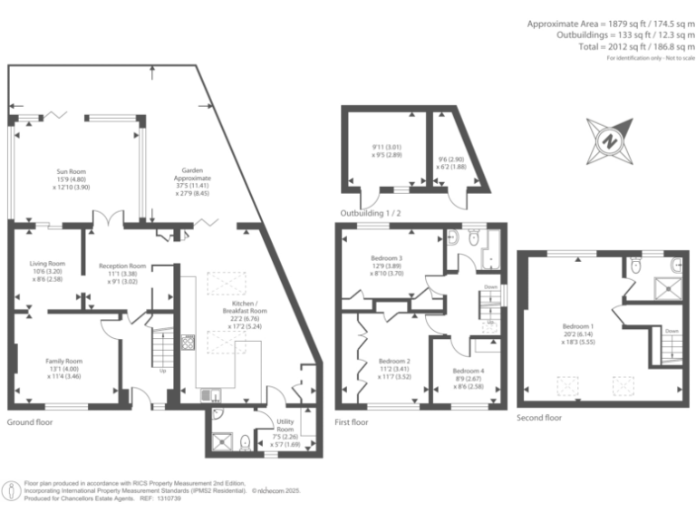
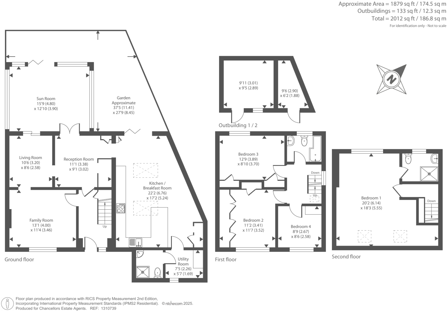
A spacious, newly renovated four-bedroom family home across three floors, offering flexible living and strong value in Staines-upon-Thames. The property benefits from a brand-new kitchen and a new main roof, plus an expansive 22'2" x 17'2" kitchen/breakfast room designed for everyday family life and entertaining. The top-floor master suite sits alone on its floor with an en-suite for privacy, and there are three modern bathrooms — one on each level — which suit busy households.
Internal space is adaptable: multiple reception rooms, a sun room, family room, utility and a two-room detached outbuilding that could serve as a home office, gym, or studio. The low-maintenance rear garden has an artificial lawn and there is a garage for parking. Broadband is fast and mobile signal is excellent, helping remote working or streaming needs.
Practical details are clear: freehold tenure, mains gas central heating, and double glazing already installed (pre-2002). The property is a short drive to Staines station and close to family attractions and several well-rated primary and secondary schools, making it convenient for commuting and family life.
Buyers should note local context: the immediate area is classified as hampered neighbourhoods with above-average crime and higher deprivation indices. While the house has been newly renovated internally and benefits from recent major works, some buyers may wish to review older external glazing and assess neighbourhood factors during viewing.
4 bedroom detached house for sale in Sykes Drive, Staines-upon-Thames, Surrey, TW18 — £700,000 • 4 bed • 2 bath • 1311 ft²
5 bedroom semi-detached house for sale in Penton Road, Staines, Surrey, TW18 — £825,000 • 5 bed • 3 bath • 2224 ft²
3 bedroom end of terrace house for sale in Edgell Road, Staines, Surrey, TW18 — £485,000 • 3 bed • 1 bath • 883 ft²
4 bedroom semi-detached house for sale in Thorpe Road, Staines-upon-thames, TW18 — £550,000 • 4 bed • 1 bath • 1723 ft²
4 bedroom semi-detached house for sale in Leacroft Close, TW18 — £750,000 • 4 bed • 3 bath • 1550 ft²
3 bedroom semi-detached house for sale in Wendover Road, Staines-upon-Thames, Surrey, TW18 — £525,000 • 3 bed • 2 bath • 1492 ft²






























































































