Spacious family home with allocated parking and riverside access within easy walking distance.
1524 sq ft of living space across three floors
Open-plan kitchen/dining/family area ideal for family living
Principal bedroom with fitted wardrobes and en suite shower
Energy-efficient kitchen appliances and composite stone worktops
Allocated off-street parking included
About seven minutes' walk to the River Thames; station within walking distance
New-build by award-winning developer Shanly Homes
Tenure and council tax band unspecified — buyer to verify
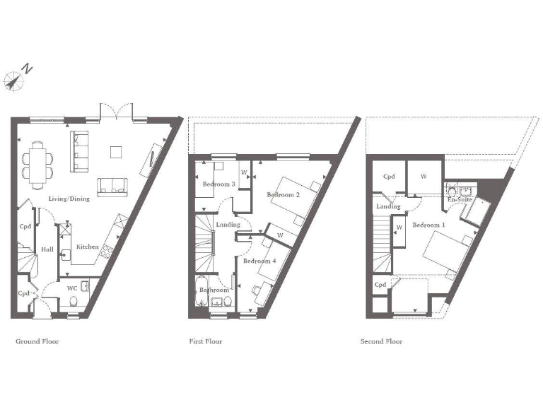
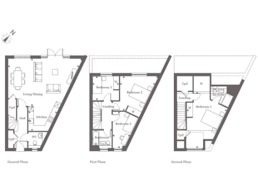
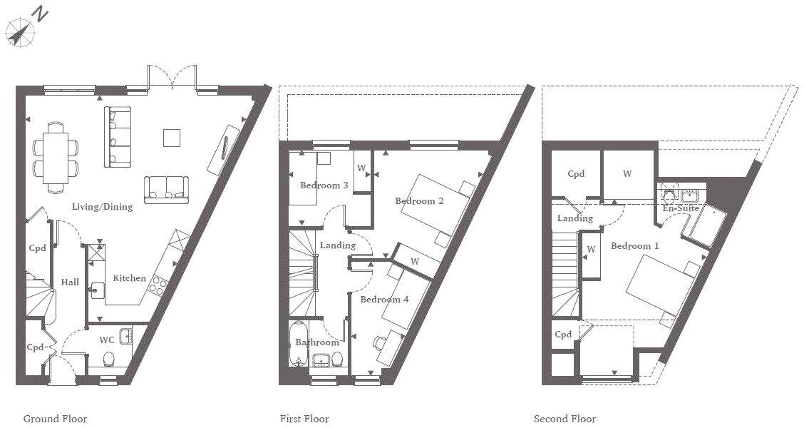
This newly built mid-terrace home by an award-winning developer offers roomy, modern living across three floors — designed for busy family life. The open-plan ground floor links kitchen, dining and family areas, creating a bright sociable heart for everyday life and entertaining. Energy-efficient kitchen appliances and composite stone worktops add practical, low-maintenance benefits.
Sleeping accommodation includes three bedrooms on the first floor and a generous top-floor principal bedroom with fitted wardrobes and an en suite shower room. Overall space totals around 1,524 sq ft, giving flexible rooms for family routines, home working or play. Allocated off-street parking and a sizeable plot add convenience and outside space.
Location is a key strength: Staines town centre amenities and regular transport links are within easy reach, Staines railway station is walkable and the River Thames is about a seven-minute walk away. Local schools include good-rated state and independent options, making the area suitable for families.
Practical points to note: tenure and council tax band are not specified here and should be confirmed before offer. Some promotional images are of the show home and have been digitally enhanced; purchasers should rely on a physical viewing to judge finishes. Crime is recorded as average for the area.
3 bedroom terraced house for sale in Moor Lane, Staines-upon-Thames, Surrey, TW18 — £665,000 • 3 bed • 2 bath • 1168 ft²
4 bedroom terraced house for sale in Moor Lane, Staines-upon-Thames, Surrey, TW18 — £785,000 • 4 bed • 3 bath • 1579 ft²
3 bedroom terraced house for sale in Langley Road, Staines-upon-Thames, Surrey, TW18 — £610,000 • 3 bed • 2 bath • 1065 ft²
2 bedroom apartment for sale in Moor Lane, Staines-upon-Thames, Surrey, TW18 — £395,000 • 2 bed • 2 bath • 661 ft²
4 bedroom end of terrace house for sale in Langley Road, Staines-upon-Thames, Surrey, TW18 — £765,000 • 4 bed • 3 bath • 1442 ft²
4 bedroom end of terrace house for sale in Gloucester Crescent, Staines-upon-Thames, TW18 — £650,000 • 4 bed • 3 bath • 2012 ft²










































