Move-in ready family home with garden backing onto fields and easy transport links.
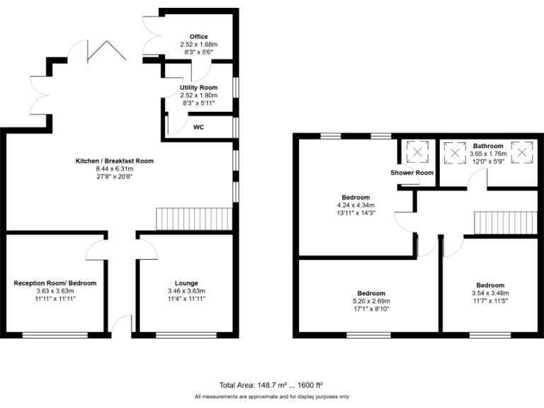
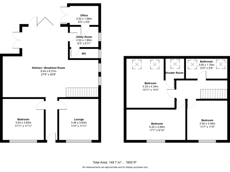
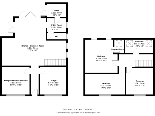
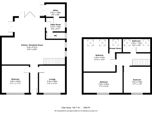
Four-bedroom detached bungalow with 1600 sq ft approximate space
Large open-plan kitchen/dining/living with vaulted ceiling and bi-folds
Principal bedroom with contemporary en-suite; luxury family bathroom
Two further reception rooms plus office and practical utility room
Rear garden backing onto open fields; good privacy and patio area
Ample block-paved off-street parking for several cars
Leasehold tenure — buyers should check lease details and terms
Wood-burning stove currently not connected; requires commissioning
This four-bedroom detached bungalow on School Lane blends modern cottage styling with practical family living. A bright, vaulted open-plan kitchen/dining/living area and full-height bi-fold doors create a sociable heart to the home, while two additional reception rooms and a dedicated office add flexible space for family life or home working.
The principal bedroom occupies the upper level with a contemporary en-suite; two further double bedrooms and a versatile single room suit children, guests or a nursery. A luxury family bathroom with twin Velux windows and a spa-style bath adds a high-quality finish. The living room and one reception room benefit from attractive wooden floors and neutral décor, ready to personalise.
Outside, the rear garden backs onto open fields, offering privacy and pleasant views from the patio and lawn. A generous block-paved driveway provides ample off-road parking. The location is practical for daily life — shops, primary schools, Burscough Wharf and two railway stations are within walking distance, with easy road links to the A59.
Important practical points: the property is sold as leasehold and has Council Tax band D. The wood-burning stove in one reception is currently not connected and would require commissioning if you wish to use it. Overall this is a well-presented, move-in ready home suited to families seeking space and a semi-rural feel close to village amenities.
4 bedroom detached house for sale in Abbey Fold, Burscough, L40 — £300,000 • 4 bed • 2 bath • 1470 ft²
4 bedroom detached house for sale in Square Lane, Burscough, L40 — £400,000 • 4 bed • 2 bath • 1743 ft²
4 bedroom detached house for sale in St. Andrews Close, Burscough L40 — £460,000 • 4 bed • 3 bath • 1969 ft²
4 bedroom semi-detached house for sale in New Lane, Burscough L40 0RX, L40 — £415,000 • 4 bed • 2 bath • 1727 ft²
4 bedroom detached house for sale in Red Cat Lane, Burscough, Ormskirk, L40 — £450,000 • 4 bed • 3 bath • 2116 ft²
4 bedroom detached house for sale in Oak Drive, Burscough, L40 — £425,000 • 4 bed • 2 bath • 1611 ft²














































































































