Large four-bedroom family home in quiet Burscough cul-de-sac with two en-suites.
Nearly 2,000 sq ft of living space
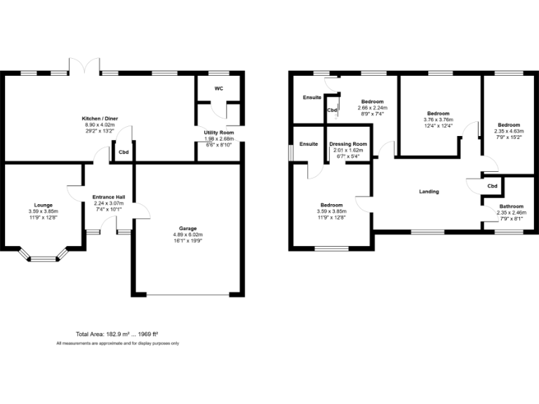
A substantial four-bedroom detached family home occupying nearly 2,000 sq ft in a quiet cul-de-sac in central Burscough. The ground floor offers a bay-fronted lounge, a contemporary kitchen with sleek units and breakfast bar, utility room and ground-floor WC — practical for everyday family life. Upstairs, the principal suite features a dressing room and luxury en-suite; the second bedroom also has an en-suite, with two further good-sized bedrooms and a family bathroom.
Outside, the property sits on a large plot with a landscaped, low-maintenance rear garden and generous patio. A double driveway and integral garage provide secure off-street parking and storage. The location benefits from excellent local amenities, good primary schools, scenic canal walks and strong transport links to Ormskirk and Southport.
Notable practical points: the house is freehold with no flood risk, but council tax is high (Band F). The property is described in good modern condition, but buyers should verify finishings and services at viewing. Suited to growing families seeking space, convenience and a modern finish in a quiet, affluent small-town setting.
4 bedroom detached house for sale in Elder Avenue, Burscough L40 5BS, L40 — £450,000 • 4 bed • 2 bath • 1648 ft²
3 bedroom semi-detached house for sale in Mill Race Close, Burscough L40 — £270,000 • 3 bed • 2 bath • 922 ft²
4 bedroom detached house for sale in Rochester Drive, Burscough, L40 — £420,000 • 4 bed • 2 bath • 1687 ft²
4 bedroom detached house for sale in Cartmel Close, Burscough L40 — £400,000 • 4 bed • 2 bath • 1482 ft²
4 bedroom semi-detached house for sale in Christines Crescent, Burscough L40 — £350,000 • 4 bed • 2 bath • 1708 ft²
4 bedroom detached house for sale in Abbey Fold, Burscough, L40 — £300,000 • 4 bed • 2 bath • 1470 ft²










































































































