**Standout Features:**
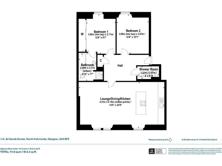
- Newly renovated 2-bedroom, 2-bathroom apartment in a charming Victorian sandstone tenement.
- Spacious open-plan living/dining area with modern design and high ceilings.
- Luxurious ensuite bathroom and additional shower room.
- Well-maintained resident garden for relaxation.
- Chain-free sale; freehold ownership.
- Excellent mobile signal and fast broadband speeds.
- Great rental potential in a cosmopolitan student neighborhood.
Discover urban living at its finest in this newly renovated first-floor apartment located in the tranquil setting of North Kelvinside. This stylish two-bedroom property blends modern design with charming Victorian architecture, featuring a spacious open-plan living and dining area flooded with natural light—ideal for both entertaining and everyday comfort. The principal bedroom boasts a luxurious ensuite bathroom, complete with a four-piece suite, while the second bedroom offers ample space for guests or a family member.
Venture outside to enjoy the serene communal gardens or explore nearby Queen Margaret Drive’s enticing array of cafes and boutiques. With top-notch amenities, recreational green spaces, and convenient transport links to the vibrant heart of Glasgow's West End just moments away, this property is perfect for first-time buyers or savvy investors looking for rental potential. Despite its many positives, the property is located in a deprived area, which may influence future growth; however, its desirable features and prime location make it a must-see. Act quickly, as opportunities like this in such a sought-after locale won't last long!
2 bedroom flat for sale in 1/1 31 Hamilton Drive, Botanics, G12 8DN, G12 — £339,000 • 2 bed • 1 bath • 990 ft²
2 bedroom apartment for sale in Garrioch Road, North Kelvinside, Glasgow, G20 — £165,000 • 2 bed • 1 bath • 610 ft²
2 bedroom flat for sale in Doune Quadrant, North Kelvinside, Glasgow, G20 — £270,000 • 2 bed • 1 bath
2 bedroom apartment for sale in Melrose Gardens, Glasgow, G20 — £209,000 • 2 bed • 2 bath • 805 ft²
2 bedroom flat for sale in Striven Gardens, North Kelvinside, G20 — £279,995 • 2 bed • 1 bath • 872 ft²
2 bedroom apartment for sale in Airlie Street, Hyndland, Glasgow, G12 — £399,000 • 2 bed • 1 bath • 922 ft²










































































































