Large garden backing farmland and versatile outbuilding for hobbies or home business..
5 double bedrooms with two ensuite shower rooms and family bathroom.
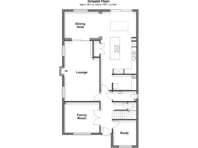
This modern detached house sits in a quiet five‑property enclave in Adisham, offering flexible space for a large family. Built in 2000, the home combines practical modern fixtures with traditional touches such as ceiling roses and coving. The extended L‑shaped kitchen/dining area, utility and pantry suit busy family life, while five double bedrooms and two ensuites provide room and privacy for everyone.
Energy efficiency is a clear strength: 16 solar panels are installed and the owner reports about £2,000 annual income. The plot is generous for a village location, with a wide driveway, single garage and a substantial outbuilding that could serve as a games room, home office, therapy space or guest accommodation. The rear garden backs onto farmland and features a large terrace and lawn – excellent for al fresco dining and children’s play.
Practical considerations are straightforward and should be checked before purchase. Broadband speeds in the area are slow, which may affect home working. Council tax is described as expensive and the wider area indicators show pockets of deprivation; crime levels are average. Any buyer should verify planning and building‑regulation records for the extension and other works, and confirm that appliances, heating and the solar system are in working order.
For families seeking a peaceful village location close to an Outstanding primary school and a train station, this property offers a comfortable, energy‑efficient base with useful ancillary accommodation. It will appeal to buyers who value outdoor space and versatile outbuildings but who accept typical village‑scale infrastructure limits such as slower broadband.
5 bedroom semi-detached house for sale in The Street, Adisham, Canterbury, Kent, CT3 — £875,000 • 5 bed • 2 bath • 2239 ft²
5 bedroom detached house for sale in New Road, Eythorne, Dover, Kent, CT15 — £775,000 • 5 bed • 4 bath • 754 ft²
3 bedroom end of terrace house for sale in Church Lane, Adisham, Canterbury, Kent, CT3 — £400,000 • 3 bed • 1 bath • 1440 ft²
4 bedroom detached house for sale in High Street, Wingham, Canterbury, Kent, CT3 — £1,175,000 • 4 bed • 3 bath • 2638 ft²
4 bedroom detached house for sale in Hall Place, Hoath, Canterbury, CT3 — £795,000 • 4 bed • 3 bath • 2082 ft²
5 bedroom detached house for sale in South Canterbury Road, Canterbury, Kent, CT1 — £950,000 • 5 bed • 3 bath • 2293 ft²






























































































































