**Standout Features:**
- Large residential development site (approximately 4,000 sq ft)
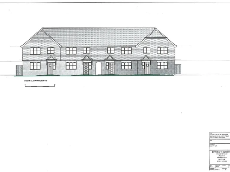
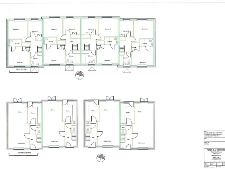
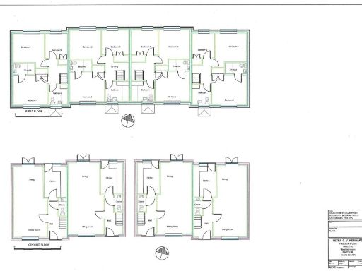
- Currently in the process of obtaining planning permission for 4 terraced three-bedroom houses
- Desirable Sussex-style architecture with parking and rear gardens planned
- Located in a peaceful, affluent village with a very low crime rate
- Freehold tenure, chain-free sale
- Off-street parking available
**Summary:**
Unlock the potential of this expansive development site located in the serene village of Heathfield, TN21 8RA, perfect for property developers and investors. Priced between £500,000 and £600,000, this promising land boasts ongoing planning permission for the construction of four stylish three-bedroom terraced houses, each designed with ample parking and private rear gardens.
Immerse yourself in flourishing countryside life, characterized by an affluent neighborhood and local amenities including a shop and car wash. The planned homes will feature well-designed interiors including an ensuite in the master bedroom and modern open-plan living areas. With excellent mobile connectivity and a backdrop of prestigious educational institutions—many of which boast "Good" or "Outstanding" Ofsted ratings—this development site offers an attractive proposition in a location that is poised for growth.
Take advantage of this unique opportunity, as the site can be purchased before planning approval, allowing you to secure an exceptional investment ahead of the competition. Don’t miss out—explore the future possibilities that await on this prime piece of land!
Land for sale in Mill Road, Heathfield, TN21 0XE, TN21 — £250,000 • 1 bed • 1 bath • 2120 ft²
Land for sale in Chiddingly Road, Horam, Heathfield, TN21 — £550,000 • 1 bed • 1 bath
Land for sale in Cross In Hand, Heathfield, Sussex, TN21 — £700,000 • 1 bed • 1 bath
Land for sale in Ersham Road, Hailsham, BN27 — £1,400,000 • 1 bed • 1 bath • 13682 ft²
Land for sale in Ninfield Road, Lunsford Cross, Bexhill On Sea, East Sussex, TN39 — £1,175,000 • 1 bed • 1 bath • 2152 ft²
Land for sale in Cranbrook Road, Hawkhurst, Kent, TN18 — £795,950 • 1 bed • 1 bath • 21780 ft²










