**Highlights:**
- **Rare Development Opportunity**: Large plot for four exclusive dwellings.
- **Planning Permission**: Full planning resubmitted, with anticipated approval soon.
- **Prime Location**: Close to Cross In Hand and Heathfield; easy access to shops and amenities.
- **Affluent Area**: Low crime rates and nestled in a tranquil, rural setting.
- **Education Quality**: Proximity to well-rated primary schools and secondary education options.
- **Excellent Connectivity**: Strong mobile signal; cycle-friendly with various local amenities.
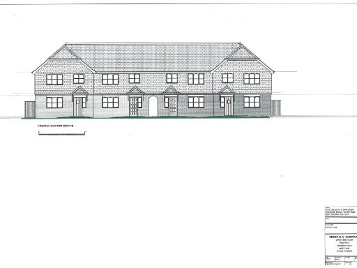
This expansive land for sale in Cross In Hand presents an exceptional opportunity for developers looking to create a serene residential project. Spanning a generous plot, the site is poised to accommodate four contemporary semi-detached dwellings, ideal for those desiring an exclusive rural lifestyle. The full planning application has recently been resubmitted, with approval anticipated in the coming weeks, allowing for swift progress on this promising venture.
Nestled within an affluent community characterized by its low crime rates and accessibility to scenic amenities, this location is both tranquil and well-connected. Just a stone's throw from Cross In Hand and Heathfield, residents will enjoy a wealth of shops, restaurants, and recreational facilities. This rare offering not only caters to future homeowners but also provides a lucrative investment potential, making it an unparalleled opportunity that is unlikely to last long. Envision your future here – a blend of nature, community, and architectural potential awaits!
Land for sale in Mayfield Road, Cross In Hand, Heathfield, East Sussex, TN21 — £250,000 • 1 bed • 1 bath
Land for sale in Burwash Road, Heathfield, East Sussex, TN21 — £500,000 • 1 bed • 1 bath • 4000 ft²
Land for sale in Mayfield Lane, Wadhurst, TN5 — £600,000 • 1 bed • 1 bath • 4360 ft²
Land for sale in Land west of North Street, Lower Horsebridge, Hailsham BN27 4DR, BN27 — £1,900,000 • 1 bed • 1 bath
Land for sale in Mill Road, Heathfield, TN21 0XE, TN21 — £250,000 • 1 bed • 1 bath • 2120 ft²
Land for sale in Land at Old Orchard House, Horam, TN21 — £4,000,000 • 1 bed • 1 bath


