Development-ready plot with planning permission in sought-after CH4 location..
- Full planning consent for six‑bed two‑storey house
- Part‑built blockwork shell with new double‑glazed windows
- Approx. 0.25‑acre level plot in quiet cul‑de‑sac
- Vacant freehold; planning conditions discharged for materials
- Requires full internal completion and services installation
- Council Tax Band E; buyers must budget finishing costs
- Close to Chester city centre, A55 and A483 links
- Ideal for developer or experienced self‑builder
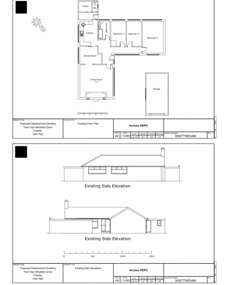
A rare development plot in a quiet Chester cul-de-sac, this part-built detached bungalow sits on approximately 0.25 acres with planning consent to create a substantial two‑storey six‑bed home (Ref: 24/02947/FUL). The property is offered freehold with vacant possession and benefits from newly installed double‑glazed windows and a solid blockwork shell, allowing a fast route to completion for an experienced builder or self‑builder.
Planning conditions have been discharged (subsequent application Ref: 25/02244/DIS discharged Condition 3), so works can progress immediately to the approved scheme: two‑storey rear extension, first‑floor addition and replacement front garage. The existing part‑built structure provides formed block walls, exposed joists and clear room layouts — a practical base that reduces early-stage structural uncertainty but still requires full internal finish and services installation.
This plot will suit developers or experienced self‑builders seeking a Cheshire opportunity close to the city centre, A55/A483 links and highly regarded schools. The level gardens and generous frontage allow landscaping and parking flexibility. Buyers should budget for completion works, internal fittings, services commissioning and finishing costs — there is refurbishment risk but also clear planning-led upside in a sought-after CH4 postcode.
Practical notes: vacant freehold, council tax band E, low local crime and fast broadband. No flooding risk is recorded. The property is offered as a renovation/development project — viewing best for those prepared to assess completion requirements and costs on site.
4 bedroom detached house for sale in Saughall Road, CHESTER, Cheshire, CH1 — £290,000 • 4 bed • 3 bath • 872 ft²
Land for sale in Elizabeth Crescent, Chester, CH4 — £1,100,000 • 5 bed • 7 bath • 7474 ft²
Detached house for sale in Building Plot, The Walled Garden, Christleton, Chester, CH3 — £900,000 • 1 bed • 1 bath • 5931 ft²
Land for sale in The Walled Garden, Townsend Way, Christleton, Cheshire, CH3 7AB, CH3 — £900,000 • 1 bed • 1 bath
4 bedroom detached house for sale in Warrington Road, Chester, CH2 — £795,000 • 4 bed • 3 bath • 2637 ft²
3 bedroom bungalow for sale in Flaxmere Drive, Chester, CH3 — £300,000 • 3 bed • 1 bath • 703 ft²














































