Approved plans and partial structure in place for a high‑value family home near Chester centre.
- Full planning permission approved for a 5/6-bedroom detached house
- Steel beams and upstairs structure already installed
- Large rear garden plus sizable outbuilding at garden bottom
- Mid-construction and unfinished internally; requires full completion
- Estimated £120,000 to finish; projected resale value circa £550,000
- Sold at auction; 4.5% non-refundable reservation fee applies
- Walls likely cavity with no insulation; energy upgrades required
- Close to Chester centre, good local amenities and several good schools
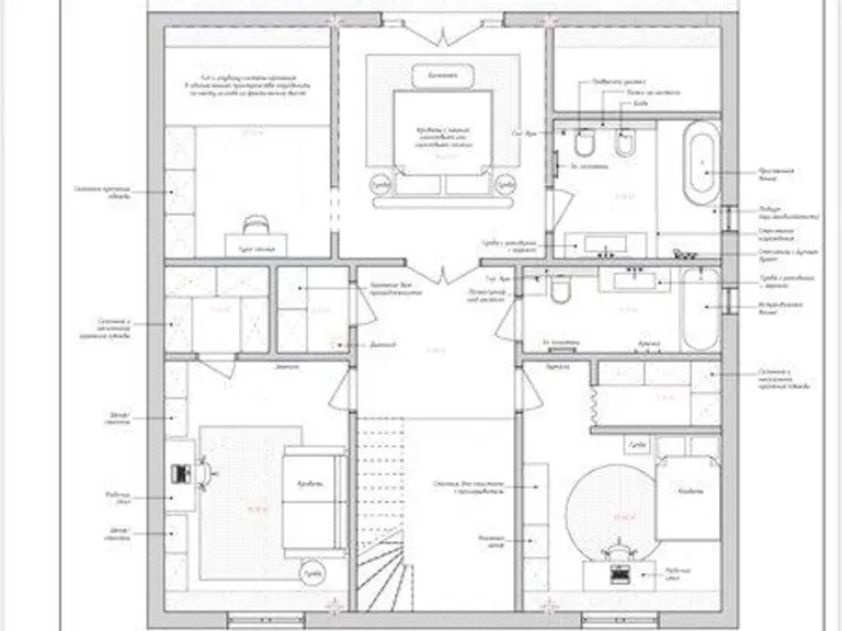
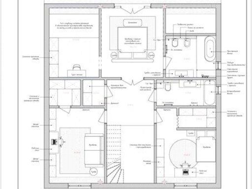
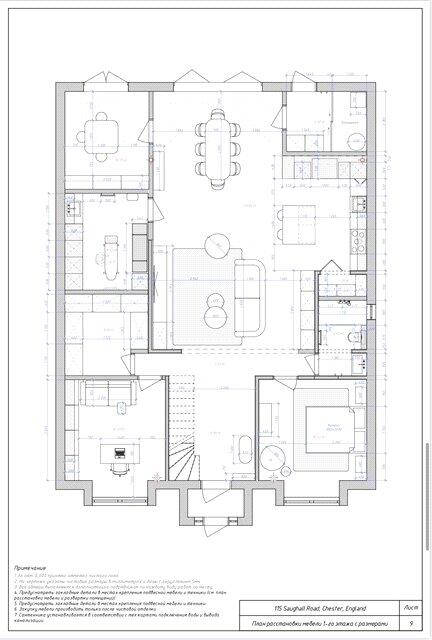
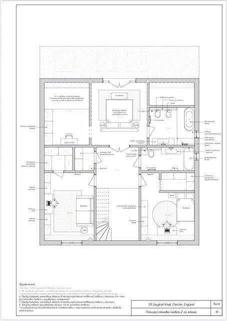
This detached property on Saughall Road is a rare mid-construction development plot with full planning permission and architectural drawings to convert the existing bungalow into a substantial 5/6-bedroom family home. Structural works are already started: steel beams and the upstairs framework are in place, giving a clear head start for a buyer looking to complete and add significant value.
The large rear garden and a substantial outbuilding at the bottom of the plot increase scope for a generous layout and outdoor living. The site sits close to Chester city centre and local amenities, with good schools, public transport links and easy access to major roads — attractive for future owners or tenants.
Important practical points are straightforward: the property is unfinished and requires completion of internal works, services and finishes. The walls are assumed to be uninsulated cavity construction and further insulation/energy upgrades will be needed. The sale is by auction under the Modern Method of Auction — buyers must allow for the reservation fee, ID checks and a 56-day completion timescale.
Financially, the seller has budgeted approximately £120,000 to finish works and forecasts a finished-market value around £550,000 as a high-spec home. This is suitable for developers, investors or owner-builders who can manage renovation budgets, procurement and the auction process to realise that potential.
5 bedroom bungalow for sale in Treetops, Whaddon Drive, Chester, Cheshire, CH4 — £630,000 • 5 bed • 4 bath • 2260 ft²
2 bedroom detached house for sale in The Croft, 14 Saughall Road, Blacon, Chester, Cheshire, CH1 5EU, CH1 — £200,000 • 2 bed • 1 bath • 1348 ft²
3 bedroom semi-detached house for sale in Ashfield Crescent, Blacon, Chester, Cheshire, CH1 — £165,000 • 3 bed • 1 bath • 1011 ft²
Plot for sale in Hoole Road, Chester, CH2 — £470,000 • 1 bed • 1 bath • 3389 ft²
3 bedroom town house for sale in Fern Bank Villa, Eversley Park, Chester, Cheshire, CH2 2AJ, CH2 — £300,000 • 3 bed • 2 bath • 1745 ft²
2 bedroom detached bungalow for sale in 9 Iver Road, Upton, Chester, Cheshire CH2 1RL, CH2 — £130,000 • 2 bed • 1 bath














































































