**Standout Features:**
- Expansive 1.2-acre plot in picturesque Christleton village
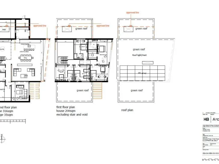
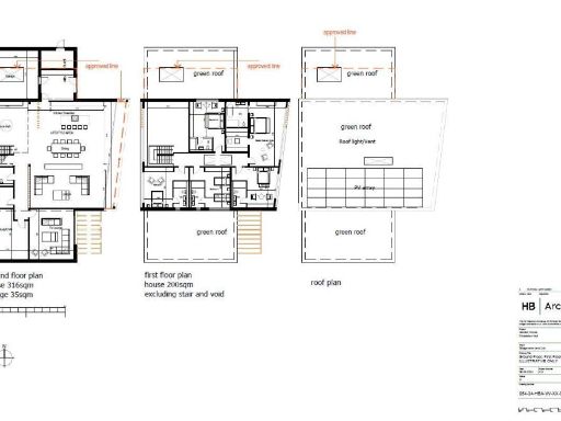
- Approved Permission in Principle for a bespoke self-build dwelling (approx. 5,931 sq ft)
- Stunning historic walled garden setting
- Contemporary design promotes sustainable living
- Proximity to Chester city center (3 miles)
- Outstanding local schools (Primary and High School)
- Quiet atmosphere with community amenities
**Concerns:**
- Building project requires completion post-approval
- Flat land may necessitate landscaping for personal preferences
This is a unique opportunity to create your dream home in the highly sought-after Christleton village, recently named one of the "Best Places to Live in the Northwest" by the Sunday Times. The 1.2-acre plot nestled in a historic walled garden provides a serene and affluent environment, ideal for families and those seeking a luxurious retreat. With Permission in Principle granted for a contemporary dwelling of around 5,931 sq ft, the potential for a bespoke self-build is substantial, allowing you to tailor the home to your vision.
Imagine waking up to the beauty of expansive gardens and a tastefully designed residence that maximizes natural light through large glazing areas, all while being just three miles from Chester city center. The vibrant local community, including top-rated schools, leisure facilities, and charming amenities, adds to the appeal of this location. Given the increasing desirability of the area, don’t miss out on this rare chance to invest in a slice of Cheshire’s finest living; a blank canvas awaits your creativity. Whether you're an investor or looking to settle down, this property promises immense potential and value. Act fast, as opportunities like this are rare and won’t last long!
Land for sale in The Walled Garden, Townsend Way, Christleton, Cheshire, CH3 7AB, CH3 — £900,000 • 1 bed • 1 bath
Land for sale in Elizabeth Crescent, Chester, CH4 — £1,100,000 • 5 bed • 7 bath • 7474 ft²
3 bedroom bungalow for sale in Quarry Lane, Christleton, Chester, CH3 — £620,000 • 3 bed • 2 bath • 1975 ft²
6 bedroom detached house for sale in Plough Lane, Christleton, Chester, CH3 — £1,495,000 • 6 bed • 3 bath • 4693 ft²
Land for sale in The Limes, Holme Street, Tarvin, Chester, Cheshire, CH3 8EQ, CH3 — £1,200,000 • 1 bed • 1 bath
Property for sale in Change Lane, Willaston, Cheshire, CH64 — £170,000 • 1 bed • 1 bath • 948 ft²














































