G62 6LH - 3 bed extended semi detached villa in East Dunbartonshire,…

View on Property Piper

3 bedroom semi-detached house for sale in Braeside Avenue, Milngavie, G62

Summary - 18, BRAESIDE AVENUE, GLASGOW, MILNGAVIE G62 6LH

3 bed 2 bath Semi-Detached

Spacious three-bedroom home with contemporary finish and west-facing garden.
- Significant double-storey extension creating generous open-plan living
- Three double bedrooms; principal includes dressing area and ensuite
- West-facing rear garden with patio and lawn, ideal for evening sun
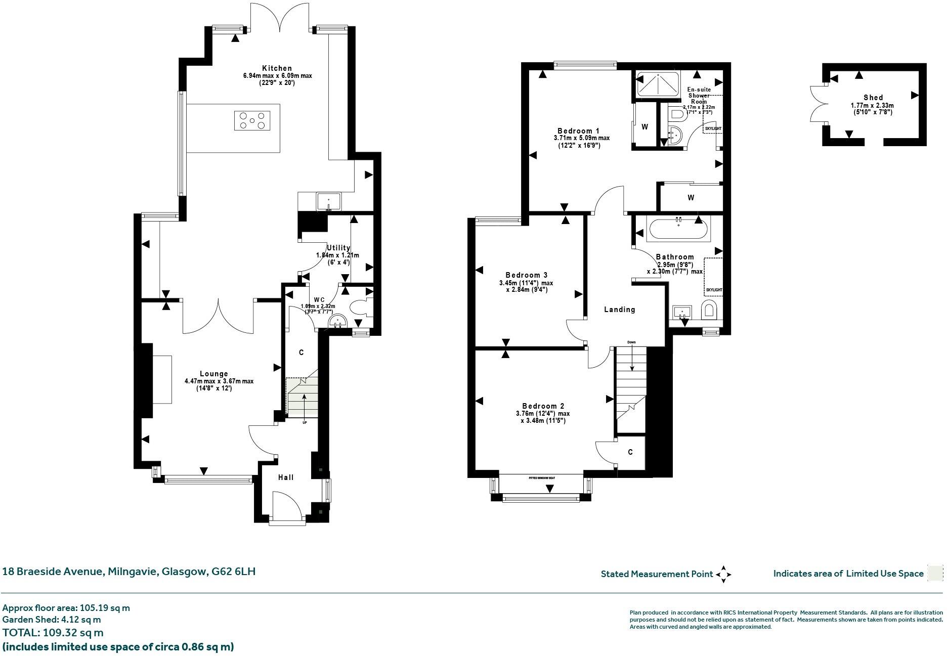
- High-spec German kitchen, utility room and floored attic storage
- PVCu double glazing and gas central heating (Ideal Logic 35 boiler)
- Plenty off-street parking; close to Milngavie station and village centre
- EPC rating D; council tax Band E (above-average running costs)
- Local area classified as deprived — may affect long-term local services
This significantly extended three-bedroom semi-detached villa in Milngavie blends pre-war character with a contemporary finish. The recent double-storey extension creates generous open-plan living, a high-spec German kitchen, and useful ancillary spaces including a utility room, ensuite principal bedroom and floored attic storage. The rear garden faces west for afternoon and evening sun and links directly to the dining/kitchen via French doors — ideal for family life and entertaining.

Practical comforts include PVCu double glazing, gas central heating (Ideal Logic 35 combi boiler), off-street parking and fast broadband/mobile signal. The property sits within Craigdhu Primary and Douglas Academy catchments and is around half a mile from Milngavie village centre and the railway station with frequent services to Glasgow and beyond.

Buyers should note a few material points: the council tax band is above average (Band E) and the EPC is D. While the house is newly renovated throughout, the surrounding area is classified as deprived in local statistics, which may influence long-term local investment and services. Overall, this is a spacious, well-finished family home offering immediate move-in condition and strong local schooling and transport links.

Property Details

Image Descriptions

Floorplan Description

Rooms

Textual Property Features

Target Audience

AI Tags

Detected Visual Features

Nearest Bars And Restaurants

,,,,}

Nearest General Shops

,,}

Nearest Grocery shops

,,}

Nearest Supermarkets

,,}

Nearest Religious buildings

,,}

Nearest Medical buildings

,,,}

Nearest Airports

,}

Nearest Leisure Facilities

,,,,}

Nearest Tourist attractions

,,}

Nearest Train stations

,,,,}

Nearest Bus stations and stops

,,,,}

Nearest Hotels

,,}

Tags

Local Market Stats

AirBnB Data

Similar Properties

Meta

High Res Images

Compatible Images

Low res Images

Thumbnails

Raw Images

High Res Floorplan Images

Compatible Floorplan Images

Low res Floorplan Images

FloorplanImages Thumbnail

Raw Floorplan Images