Village plot with conversion potential and countryside outlook.
Large circa 0.75 acre plot with paddock and substantial outbuildings
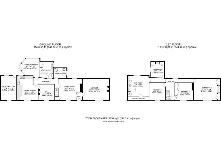
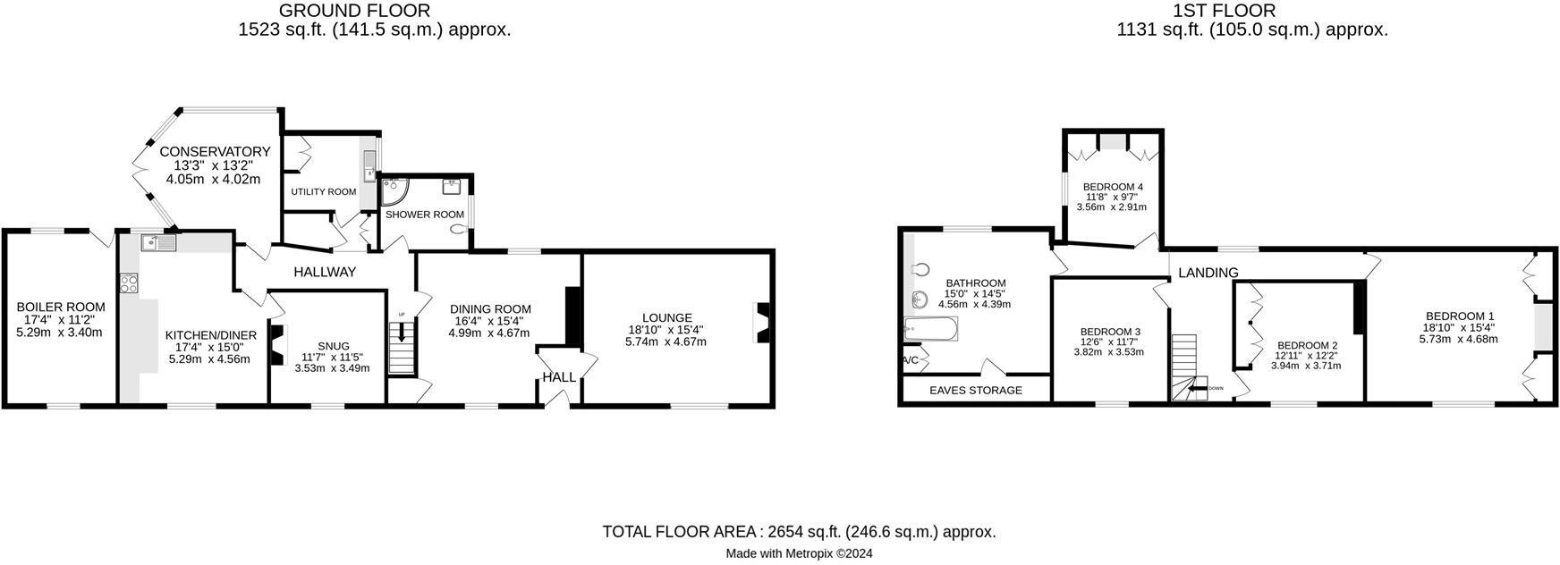
Set on approximately 0.75 acres in the village of Empingham, this stone-built farmhouse and accompanying barns offer rare village plot potential. The existing detached house provides substantial family accommodation across two storeys with a courtyard garden, three-bay car port and a grass paddock to the rear. Rutland County Council pre-application advice indicates support for converting the stone and brick barns into one dwelling and for a single-storey dwelling within the paddock, both accessed from Main Street.
Practical features include mains water, electricity and sewerage, oil-fired central heating to radiators, double glazing (unknown install date) and excellent mobile signal. The plot’s construction predates 1900 with traditional sandstone/limestone walls presumed uninsulated; buyers should plan for thermal upgrades and potential building works if converting or extending. Broadband availability is listed as superfast at the property level but current reported speeds are slow — check service for specific uses such as home working.
This freehold plot will suit purchasers seeking countryside living with development upside: families wanting a roomy village home with paddock and outbuildings, or developers/investors able to progress barn conversion and a new single-storey dwelling (subject to full planning). The location is well placed between Stamford and Oakham with good schooling nearby and low local crime. Note council tax banding is high and the property retains oil heating and older wall construction, so running and upgrade costs should be factored into offers.
3 bedroom detached house for sale in Valentine Cottage, Main Street, Empingham, LE15 — £765,000 • 3 bed • 2 bath • 1859 ft²
4 bedroom detached house for sale in Empingham, Oakham, LE15 — £800,000 • 4 bed • 2 bath • 1563 ft²
6 bedroom detached house for sale in Main Street, Empingham, LE15 — £675,000 • 6 bed • 2 bath • 3370 ft²
4 bedroom detached house for sale in Church Street, Empingham, LE15 — £975,000 • 4 bed • 4 bath • 3012 ft²
4 bedroom cottage for sale in Great Casterton, Stamford, PE9 — £495,000 • 4 bed • 2 bath • 1289 ft²
2 bedroom detached bungalow for sale in Audit Hall Road, Empingham, LE15 — £475,000 • 2 bed • 2 bath • 1012 ft²










































