Create a bespoke family home opposite the cricket ground with excellent transport links.
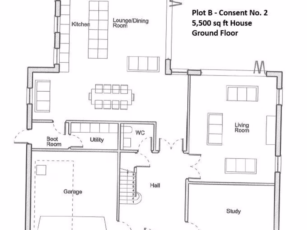
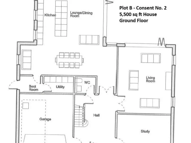
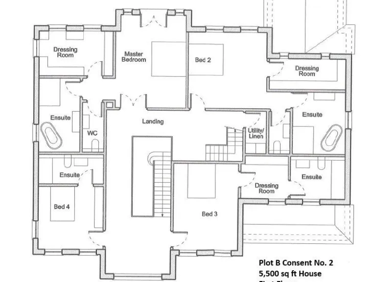
Two valid consents: 8,000 sq ft or 5,500 sq ft detached house
Plot B on Cricket Ground Road offers a rare opportunity to build a grand family residence in one of Chislehurst’s most sought-after locations. Two separate, valid planning consents let you choose between a substantial 6-bedroom, 8,000 sq ft house or a more modest 5-bedroom, 5,500 sq ft home — both with integral garaging — giving flexibility to match budget and lifestyle. The site sits opposite the cricket ground and is within easy walking distance of Chislehurst station, Royal Parade and the village high street.
The land is very large (total square foot 23,489) and currently contains a substantial detached house, an annexe and an indoor pool dating from earlier construction; purchasers should allow for demolition or refurbishment costs depending on their chosen consent. The plot lies within a conservation area, so construction will be subject to conservation-area controls and the buyer must check planning documents on the Bromley portal to confirm detailed conditions. Note: there is a tree preservation order affecting Plot A (nearby) which highlights the sensitivity of works on the wider site.
Chislehurst’s excellent schools, recreational clubs (golf, cricket, tennis) and village amenities make this plot particularly suitable for a professional family seeking space, privacy and fast links to central London. Utilities are on mains supply and the site carries no flood risk. Buying the land rather than a completed house will reduce stamp duty liability, but purchasers should budget for build costs, planning compliance and site preparation.
This is a clear opportunity for someone looking to create a bespoke, high-spec home in an extremely desirable location. Review the two planning consents carefully and commission professional surveys before committing to ensure the chosen scheme matches your vision and budget.
Land for sale in Cricket Ground Road, Chislehurst, BR7 — £2,200,000 • 6 bed • 1 bath • 23489 ft²
6 bedroom detached house for sale in Holbrook Lane, Chislehurst, BR7 — £3,850,000 • 6 bed • 4 bath • 10000 ft²
6 bedroom detached house for sale in Wells Road, Chislehurst, BR1 — £1,500,000 • 6 bed • 3 bath • 2339 ft²
Plot for sale in Edward Road, Sundridge Park, Kent, BR1 — £975,000 • 6 bed • 6 bath • 5934 ft²
Plot for sale in Orchard Road, Pratts Bottom, Orpington, BR6 — £825,000 • 5 bed • 4 bath • 3825 ft²
4 bedroom detached house for sale in Heathley End, Chislehurst, BR7 — £1,500,000 • 4 bed • 2 bath • 4500 ft²






























































