Create a bespoke family residence on a large private plot moments from Chislehurst green spaces.
Freehold detached on very large private plot
Guide price £1,500,000–£1,550,000
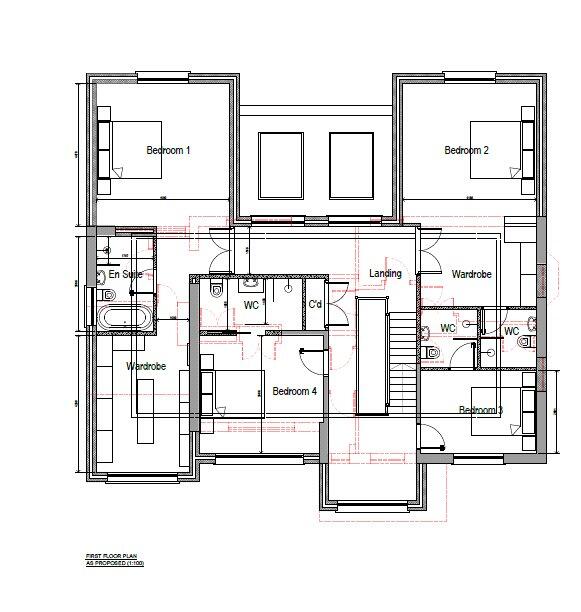
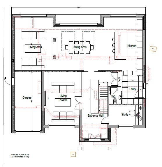
Currently four bedrooms; proposed six-bedroom 4,500 sq ft scheme included
70ft rear garden with private swimming pool
Modern fully equipped outbuilding — gym/games/office potential
Garage parking; close to Chislehurst High Street and ponds
Cavity walls assumed uninsulated — likely thermal upgrades needed
Only two bathrooms shown; significant refurbishment likely required
Set on a very large plot in Heathley End, this freehold detached house offers a rare self-build opportunity close to Chislehurst Ponds and Common. The current property is described as a four-bedroom family home with a private 70ft rear garden, swimming pool and a modern, fully equipped outbuilding. Guide price is £1,500,000 to £1,550,000.
A proposed scheme included in the listing envisages a substantial six-bedroom, c.4,500 sq ft bespoke family house with impressive vaulted ceilings, an open-plan kitchen/dining area and a garden room. The existing layout features an expansive family room and garage parking, and the outbuilding provides flexible space for a gym, games room or home office.
Important practical points: the site is marketed as a self-build opportunity and will require substantial construction or refurbishment work to realise the proposed scheme. The property has cavity walls assumed to have no insulation and only two bathrooms shown against four bedrooms, so significant modernisation and upgrading of services may be needed. Council Tax is noted as quite expensive (Band G). Nearby schools, fast broadband and good local amenities enhance family appeal.
This home will suit buyers seeking a large private plot to create a bespoke family residence rather than a move-in-ready house. The combination of size, location and outbuilding space represents strong potential for a carefully planned rebuild or major renovation in a highly affluent area.
6 bedroom detached house for sale in Holbrook Lane, Chislehurst, BR7 — £3,850,000 • 6 bed • 4 bath • 10000 ft²
6 bedroom detached house for sale in Wells Road, Chislehurst, BR1 — £1,500,000 • 6 bed • 3 bath • 2339 ft²
6 bedroom detached house for sale in Westleigh Drive, Bromley, BR1 — £2,300,000 • 6 bed • 6 bath • 5846 ft²
4 bedroom detached house for sale in Oakwood Close, Chislehurst, Kent, BR7 — £1,850,000 • 4 bed • 3 bath • 3654 ft²
6 bedroom detached house for sale in Westleigh Drive, Bromley, BR1 — £2,300,000 • 6 bed • 5 bath • 4300 ft²
5 bedroom detached house for sale in Old Perry Street, Chislehurst, BR7 — £1,850,000 • 5 bed • 5 bath • 3500 ft²






































































































