Choose between two live consents to build a landmark family home close to schools and transport.
Very large freehold plot (c.0.583 acres) opposite public cricket ground
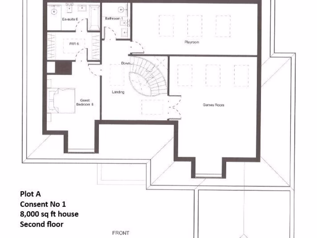
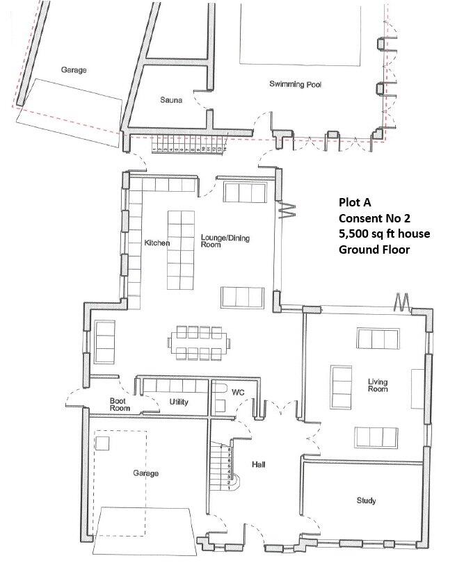
Plot A on Cricket Ground Road is a rare, very large freehold plot (approximately 0.583 acres) in highly affluent Chislehurst, offering substantial scope to build a flagship family residence. Two separate planning consents are in place: one for a c.8,000 sq ft six‑bedroom house with integral garaging, and an alternative for a c.5,500 sq ft five‑bedroom house (with retained pool and one‑bed annexe). Both consents remove the need for lengthy pre‑application negotiation and speed up project delivery.
The location is a major selling point: the plot faces the public cricket ground and sits close to highly regarded state and independent schools, good rail links into central London, and local shops, restaurants and leisure facilities. Broadband and mobile coverage are strong, flood risk is nil, and the site sits in a conservation area with a tree subject to a TPO — important constraints for designers to respect.
Buyers should note material facts: the existing buildings date from 1960 (pool added 1986) and will require demolition under the consents; the current accommodation and services are modest compared with the new‑build footprints. The property is offered as land only, so purchasers pay stamp duty on the land price rather than the completed home. Interested parties must review planning documents on the London Borough of Bromley portal and allow for conservation area and TPO requirements when finalising designs.
Land for sale in Cricket Ground Road, Chislehurst, BR7 — £2,000,000 • 6 bed • 1 bath • 23489 ft²
6 bedroom detached house for sale in Holbrook Lane, Chislehurst, BR7 — £3,850,000 • 6 bed • 4 bath • 10000 ft²
6 bedroom detached house for sale in Wells Road, Chislehurst, BR1 — £1,500,000 • 6 bed • 3 bath • 2339 ft²
Land for sale in Kemnal Road, Chislehurst, BR7 — £300,000 • 1 bed • 1 bath
4 bedroom detached house for sale in Oakwood Close, Chislehurst, Kent, BR7 — £1,850,000 • 4 bed • 3 bath • 3654 ft²
Plot for sale in Orchard Road, Pratts Bottom, Orpington, BR6 — £825,000 • 5 bed • 4 bath • 3825 ft²






































































