Ready-to-build large serviced plot with planning permission near West Calder commuters..
Full planning permission for 340m2 house and detached garage (ref 0867/FUL/22)
Plot extends to c.0.9 acre — large, sheltered building site
Utilities to plot boundary; waste treatment plant installed
Construction can commence quickly under approved design
Excellent mobile signal; very slow fixed broadband speeds
Close to West Calder amenities and high‑speed rail links
Tenure unspecified — buyer to confirm legal title and charges
Wider area classed as very deprived — may affect resale/rental value
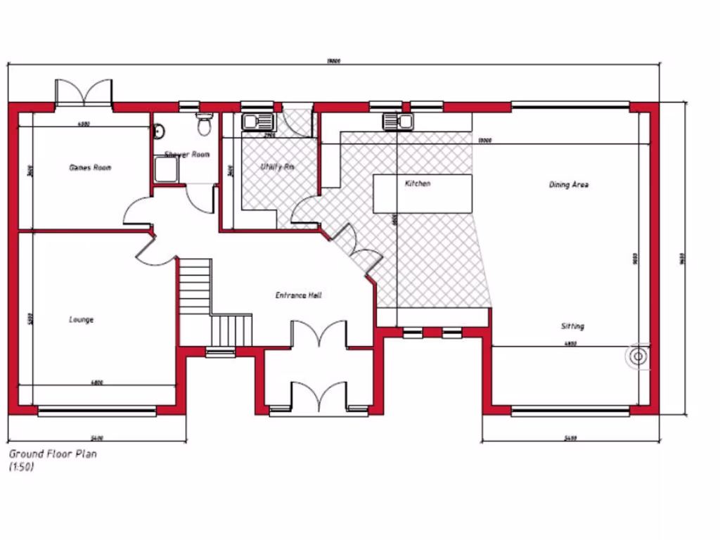
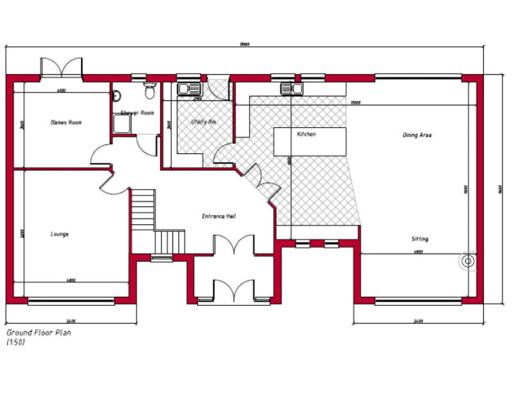
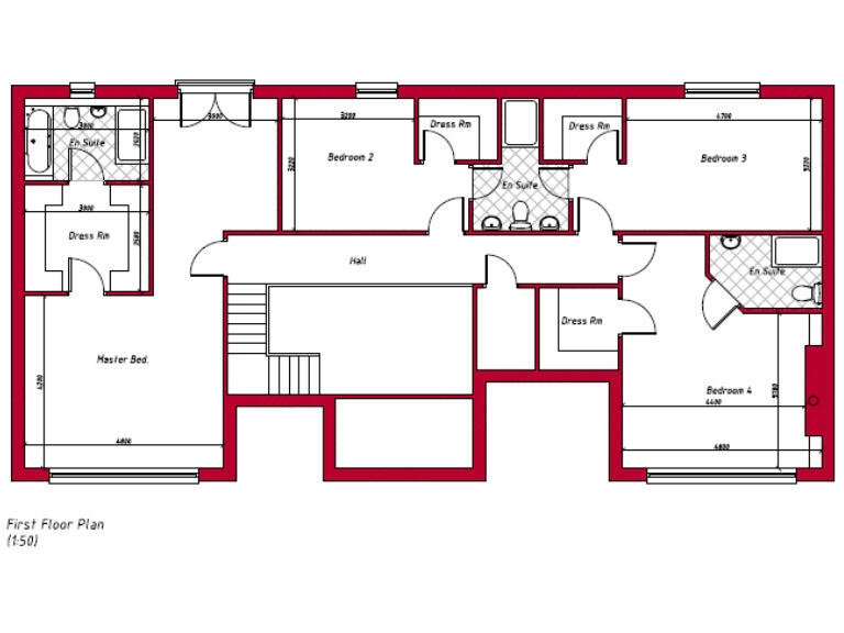
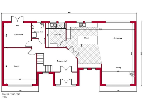
Plot B4 Longford Crofts offers a rare serviced building plot of c.0.9 acre in a sheltered, semi‑rural setting with full planning permission (ref 0867/FUL/22) for a substantial 340m2 house and detached garage with self‑contained accommodation above. Utilities are run to the plot boundary and the site waste treatment plant is already installed, so construction can begin quickly under the approved design.
The plot sits close to West Calder’s amenities and excellent commuter links: the local railway gives high‑speed connections to Edinburgh and Glasgow, and the M8/M9 corridors and Edinburgh Airport are within easy driving distance. Mobile signal is excellent on site, which helps offset very slow fixed broadband speeds.
This opportunity suits a buyer wanting to deliver a bespoke family home or a developer/investor looking for a large, serviced plot with planning in place. Important practical points: tenure is not specified in the supplied details, and the wider area is noted as very deprived, which may affect resale or rental perceptions in the short term.
In summary, Plot B4 is a large, well‑serviced countryside parcel ready for building under existing consent. It provides strong transport access and quick start potential, balanced by slow broadband, unspecified tenure, and local socio‑economic challenges that buyers should factor into their plans.
Land for sale in Longford Crofts, West Calder, EH55 — £275,000 • 3 bed • 1 bath • 2700 ft²
Plot for sale in Longford Croft West, West Calder, EH55 — £195,000 • 1 bed • 1 bath
Plot for sale in Plot 11, McBeath Avenue, Limefield Mains, EH55 8FZ, EH55 — £150,000 • 1 bed • 1 bath • 2701 ft²
Plot for sale in McBeath Avenue,Limefield Mains,West Calder,EH55 8FZ, EH55 — £150,000 • 1 bed • 1 bath • 3175 ft²
Land for sale in Building Plot at South Couston, Bathgate, Bathgate, EH48 — £225,000 • 1 bed • 1 bath • 4610 ft²
Plot for sale in Plot 17 McBeath Avenue, Limefield Mains, EH55 8FZ, EH55 — £150,000 • 1 bed • 1 bath • 3638 ft²


















































