**Standout Features:**
- Massive plot size of 4538 m², the largest in the development
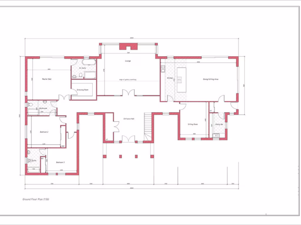
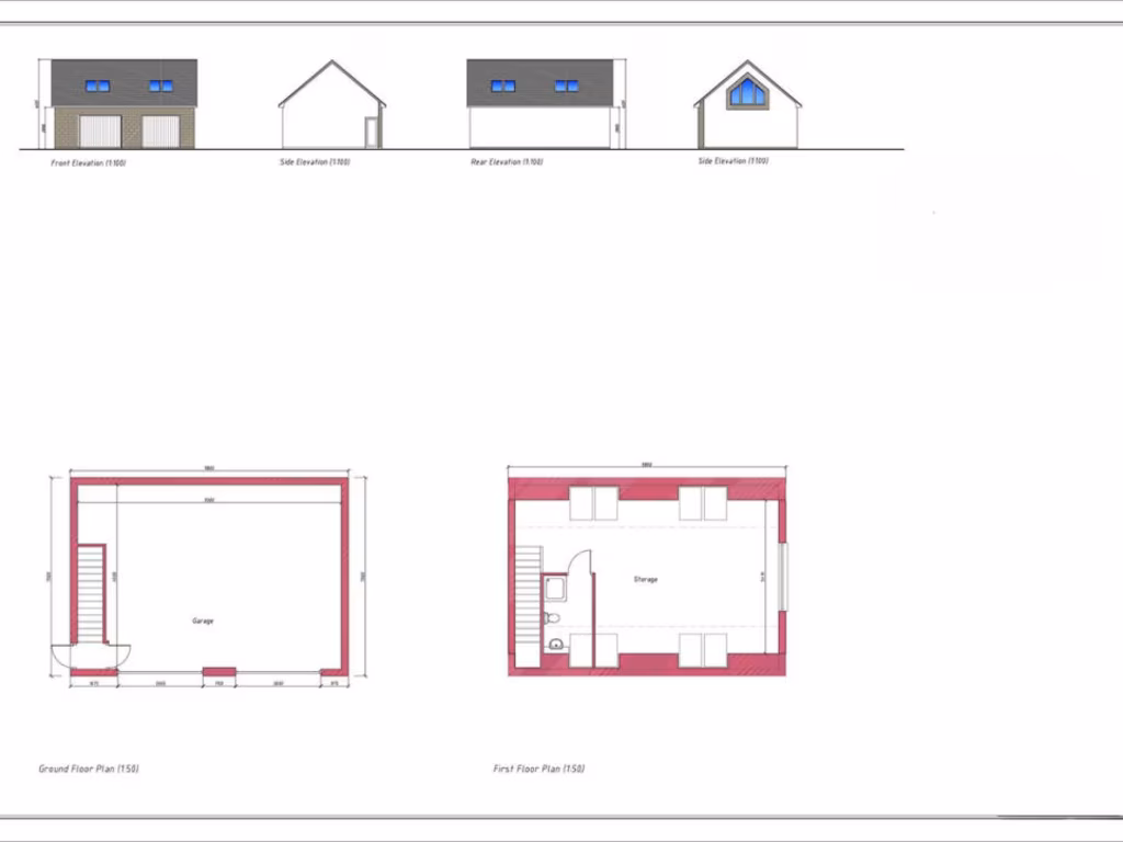
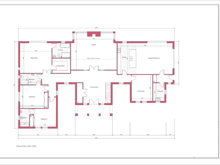
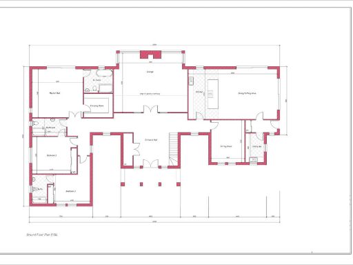
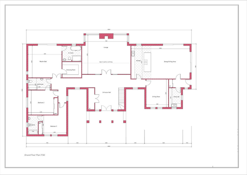
- Full planning permission granted for a modern five-bedroom family home
- Contemporary design with potential for a spacious 2700 sq. ft. dwelling
- Utilities available at the plot boundary; construction can start immediately
- Tranquil semi-rural location close to West Calder amenities
- Excellent mobile signal for connectivity
**Potential Concerns:**
- Broadband speeds are very slow
- Area classification indicates high deprivation levels
**Summary:**
Discover an extraordinary opportunity to create your dream home on this magnificent self-build plot at Longford Crofts, perfectly poised in a serene rural setting. With full planning permission already in place, envision a modern five-bedroom family residence, comprising a generous footprint of over 2700 sq. ft. Enjoy the added convenience of a double garage on this expansive 4538 m² plot, surrounded by picturesque fields that offer unparalleled privacy and breathtaking countryside views.
Set in a desirable area just a short drive from West Calder and Livingston—where shopping, dining, and transport links abound—this property combines the best of rural living with accessibility. Though the broadband connections may be slower, the excellent mobile signal ensures you stay connected. This is a rare opportunity to build a luxurious family home in a tranquil environment, ideal for those seeking a comfortable and exclusive lifestyle. Don’t miss out; properties like this with such significant development potential won’t stay on the market for long!
Land for sale in Longford Crofts, West Calder, EH55 — £250,000 • 1 bed • 1 bath • 3659 ft²
Plot for sale in Longford Croft West, West Calder, EH55 — £195,000 • 1 bed • 1 bath
Plot for sale in Longford Croft West, West Calder, EH55 — £195,000 • 1 bed • 1 bath
Plot for sale in McBeath Avenue,Limefield Mains,West Calder,EH55 8FZ, EH55 — £150,000 • 1 bed • 1 bath • 3175 ft²
Land for sale in Building Plot at South Couston, Bathgate, Bathgate, EH48 — £225,000 • 1 bed • 1 bath • 4610 ft²
Land for sale in Afton Plots, Candie, FK1 — £160,000 • 1 bed • 1 bath


































