Two approved three-bed detached plots on a large long garden plot near Churchill.
- Planning permission granted for two detached three-bedroom houses (ref 24/P/0496/RM)
- Large elongated plot with substantial rear garden depth
- Off-street parking included for both proposed plots
- Freehold with vacant possession; sold at auction
- Narrow frontage and adjacency to active construction affect logistics
- Right of Way details: access sold; ROW rights to Elmfield Cottage
- £2,000 plus VAT buyer’s fee payable on completion
- No flood risk; very low local crime and fast broadband
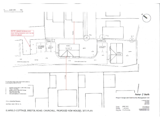
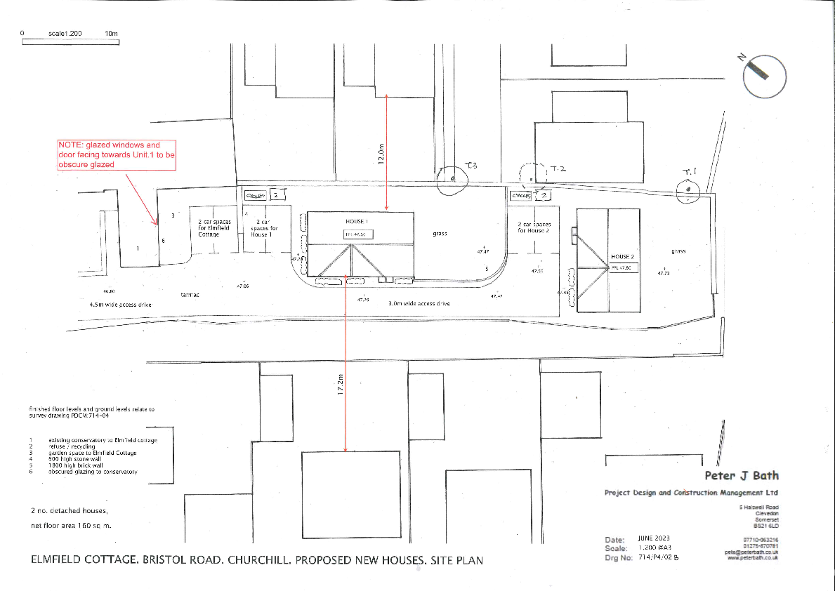
This long, narrow garden plot comes with detailed reserved matters approval for two detached three-bedroom houses (planning ref 24/P/0496/RM). The site runs from Bristol Road to a rear boundary and offers generous garden depth for each dwelling, off-street parking and a level-to-gently-sloping site that is ready for construction logistics.
The plot sits on the edge of a prosperous village/suburban area with recent new-build homes adjacent and open countryside beyond. There is no flood risk and local services are strong — excellent mobile signal, fast broadband and very low local crime — supporting good rental or resale prospects in an affluent neighbourhood.
Practical considerations are clear: the frontage is relatively narrow and the site lies next to active construction, which will affect access, storage and phasing. The Right of Way for all times and purposes will be given to the owners of Elmfield Cottage; the access way will be sold with the plots. Sale is by auction and a buyer’s fee of £2,000 plus VAT is payable on completion.
This opportunity suits a developer or investor who can manage site logistics, adhere to the approved design, and benefit from the immediate planning permission. Buyers should check the reserved matters conditions, regulatory consents and the access arrangements before bidding to ensure the scheme fits their build programme and budget.
Land for sale in Garden Development Plots, Bristol Road, BS25 — £225,000 • 3 bed • 1 bath • 1722 ft²
Land for sale in off Dinghurst Road, Churchill, North Somerset, BS25 — £50,000 • 1 bed • 1 bath
Land for sale in The Depot, Bailiffs' Wall, Axbridge, Somerset, BS26 — £475,000 • 1 bed • 1 bath
2 bedroom bungalow for sale in Moorland Street, Axbridge, BS26 — £200,000 • 2 bed • 1 bath • 1383 ft²
Land for sale in Highridge Road, Bishopsworth, Bristol, BS13 — £90,000 • 1 bed • 1 bath
Plot for sale in Farmhouse + 2.36 Acres | Kenn, BS21 — £235,000 • 1 bed • 1 bath • 1114 ft²






































