Characterful barn near the beach with annexe and versatile outbuildings.
- Five-minute walk to South Beach
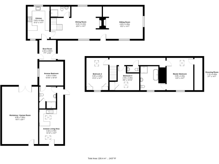
Staithe Farm is a spacious carr-stone barn conversion just a five-minute walk from Heacham’s South Beach, combining coastal convenience with period character. Original ceiling beams run through the ground floor, where generous reception rooms, a wood-burning stove and an inglenook fireplace give the house strong entertaining and family living spaces. The modern kitchen/breakfast room and principal bedroom with dressing room and four-piece en-suite add contemporary comfort to the historic shell.
The property includes a self-contained one-bedroom annexe – ideal for guests, multigenerational living or holiday-let income – plus a versatile detached barn/workshop that was previously a double garage and games room. A private, enclosed garden with elevated seating and a timber summer house provides safe outdoor space, and the driveway offers off-road parking for several vehicles.
Buyers should note some practical points: the EPC is listed as TBC and services/appliances have not been tested, so a buyer survey is recommended. The annexe is banded separately for council tax, and while the property is well presented, the barn/workshop and external outbuildings present opportunities (and potential costs) for refurbishment or repurposing.
With fast broadband, low crime and an affluent coastal location near local schools and amenities, this sizable freehold barn conversion will suit families seeking a character home, buyers wanting a holiday let by the sea, or anyone looking for flexible accommodation with scope to personalise.
2 bedroom barn conversion for sale in Heacham, PE31 — £280,000 • 2 bed • 1 bath • 731 ft²
4 bedroom detached bungalow for sale in Heacham, King's Lynn, Norfolk, PE31 — £495,000 • 4 bed • 4 bath • 1992 ft²
4 bedroom barn conversion for sale in Old Hunstanton, PE36 — £1,400,000 • 4 bed • 5 bath • 3081 ft²
2 bedroom cottage for sale in Heacham, PE31 — £295,000 • 2 bed • 1 bath • 659 ft²
4 bedroom semi-detached house for sale in College Drive, Heacham, PE31 — £335,000 • 4 bed • 1 bath • 1052 ft²
3 bedroom detached bungalow for sale in Jubilee Avenue, Heacham, PE31 — £499,950 • 3 bed • 2 bath • 1417 ft²










































































































