Nautical-themed four-bedroom on generous plot with river views and direct beach access.
Former 60ft coaster converted into a four-bedroom single-storey residence
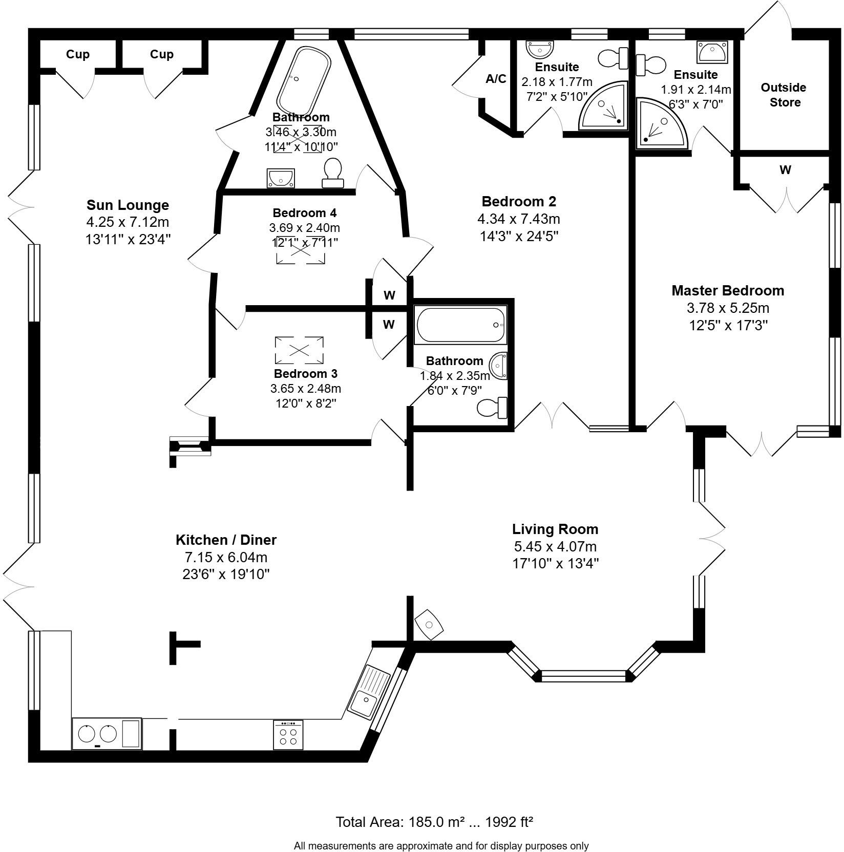
Sun lounge and raised deck with dramatic sunset and riverside views
Open-plan kitchen/diner with electric Aga and integrated appliances
Four bedrooms each with ensuite; two bedrooms in original boat cabins
Generous plot with off-street parking, lawns and timber jetty to river
High flood risk and private drainage; specialist insurance likely required
Heating mainly by log burners and electric; EPC rated F
Timber-frame boat conversion—recommend thorough survey and insurer checks
Set along the River Heacham and a very short walk from the beach, this former 60ft coaster has been imaginatively converted into a single-storey, four-bedroom residence with a strong nautical character. The property delivers generous living space including a sun lounge that captures dramatic sunsets, an open-plan kitchen/diner with an electric Aga, and a raised deck overlooking waterside views. Off-street parking and a lawned frontage lead down to a timber jetty, reinforcing the rare waterfront lifestyle on offer.
The layout suits someone wanting level access living with room for visitors or guest suites: four bedrooms all with ensuites, two log burners and plentiful day-lighting from skylights and large windows. The plot is generous for the area and offers extensive views across the Ken Hill estate and immediate access to coastal walking and birdwatching.
Buyers should note practical considerations: the property sits in a high flood-risk area and uses private drainage. Heating relies mainly on log burners and electric heaters/Aga, and the dwelling has an EPC rating of F. Construction is an adapted timber-framed boat conversion, so specialist surveys are advisable to confirm condition and insurance/maintenance implications.
This is a distinctive opportunity for someone seeking a single-level coastal property with character and water access. It will particularly suit downsizers or buyers wanting a lifestyle-orientated second residence who are comfortable with the specialist nature of the building and the maintenance and insurance responsibilities that come with waterside living.
4 bedroom semi-detached house for sale in College Drive, Heacham, PE31 — £335,000 • 4 bed • 1 bath • 1052 ft²
4 bedroom barn conversion for sale in South Beach Road, Heacham, PE31 — £575,000 • 4 bed • 3 bath • 2437 ft²
3 bedroom semi-detached house for sale in Lords Lane, Heacham, PE31 — £339,950 • 3 bed • 3 bath • 844 ft²
3 bedroom detached bungalow for sale in Neville Road, King's Lynn, PE31 — £415,000 • 3 bed • 2 bath • 1166 ft²
6 bedroom detached house for sale in School Road, Heacham, King's Lynn, PE31 — £700,000 • 6 bed • 2 bath • 2500 ft²
3 bedroom detached bungalow for sale in Gidney Drive, Heacham, King's Lynn, PE31 — £400,000 • 3 bed • 3 bath • 754 ft²






















































































































































































