Project opportunity close to stations and well-rated schools.
- Three bedrooms within approximately 775 sq ft
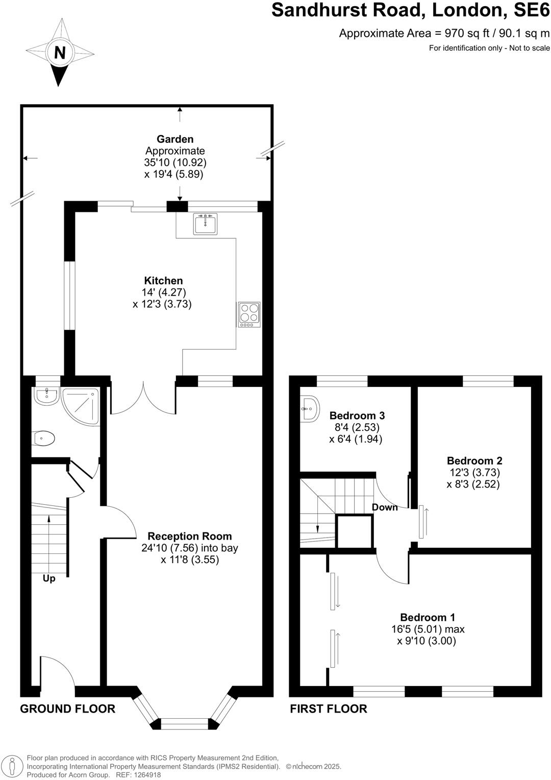
This three-bedroom end-of-terrace Victorian house on Sandhurst Road is offered vacant and freehold, ready for renovation. The ground floor provides a large reception (approx. 24'10" x 11'8") leading to a kitchen/diner with direct access to a small rear garden, plus a ground-floor shower room. Upstairs are three well-proportioned bedrooms within roughly 775 sq ft of living space.
The property requires full refurbishment: cosmetic and likely mechanical updates are needed, and the solid brick walls are assumed uninsulated. Heating is by a mains-gas boiler and radiators; windows are double glazed but the installation date is unknown. Selling by online auction with a six-week completion window makes this suitable for cash buyers or those seeking a fast turnaround.
Location is a practical strength: Hither Green, Bellingham and Lee stations are nearby with regular Central London services, and the area has several well-rated primary and secondary schools. Local shops, parks and community amenities are within easy reach. Crime levels are above average locally, so consider security and neighbourhood suitability when viewing.
For an investor or buyer comfortable with refurbishment, the house offers clear potential to add value through modernisation and insulation improvements. Its vacant status and freehold tenure allow immediate access for works, but budget for structural, insulation and cosmetic upgrades when assessing costs.
3 bedroom end of terrace house for sale in Sandhurst Road, London, SE6 — £380,000 • 3 bed • 1 bath • 970 ft²
3 bedroom terraced house for sale in Stainton Road, London, SE6 — £550,000 • 3 bed • 1 bath • 1105 ft²
3 bedroom end of terrace house for sale in 39 Hillcrest Road, Bromley, BR1 4RX, BR1 — £200,000 • 3 bed • 1 bath
3 bedroom end of terrace house for sale in 188 Holmesdale Road, South Norwood, SE25 6PT, SE25 — £275,000 • 3 bed • 1 bath
5 bedroom semi-detached house for sale in Ringstead Road, Catford, London, SE6 — £675,000 • 5 bed • 4 bath • 2466 ft²
3 bedroom terraced house for sale in Brownhill Road, London, SE6 — £525,000 • 3 bed • 1 bath • 825 ft²










































