Auction sale with six-week completion — renovation opportunity for buyers.
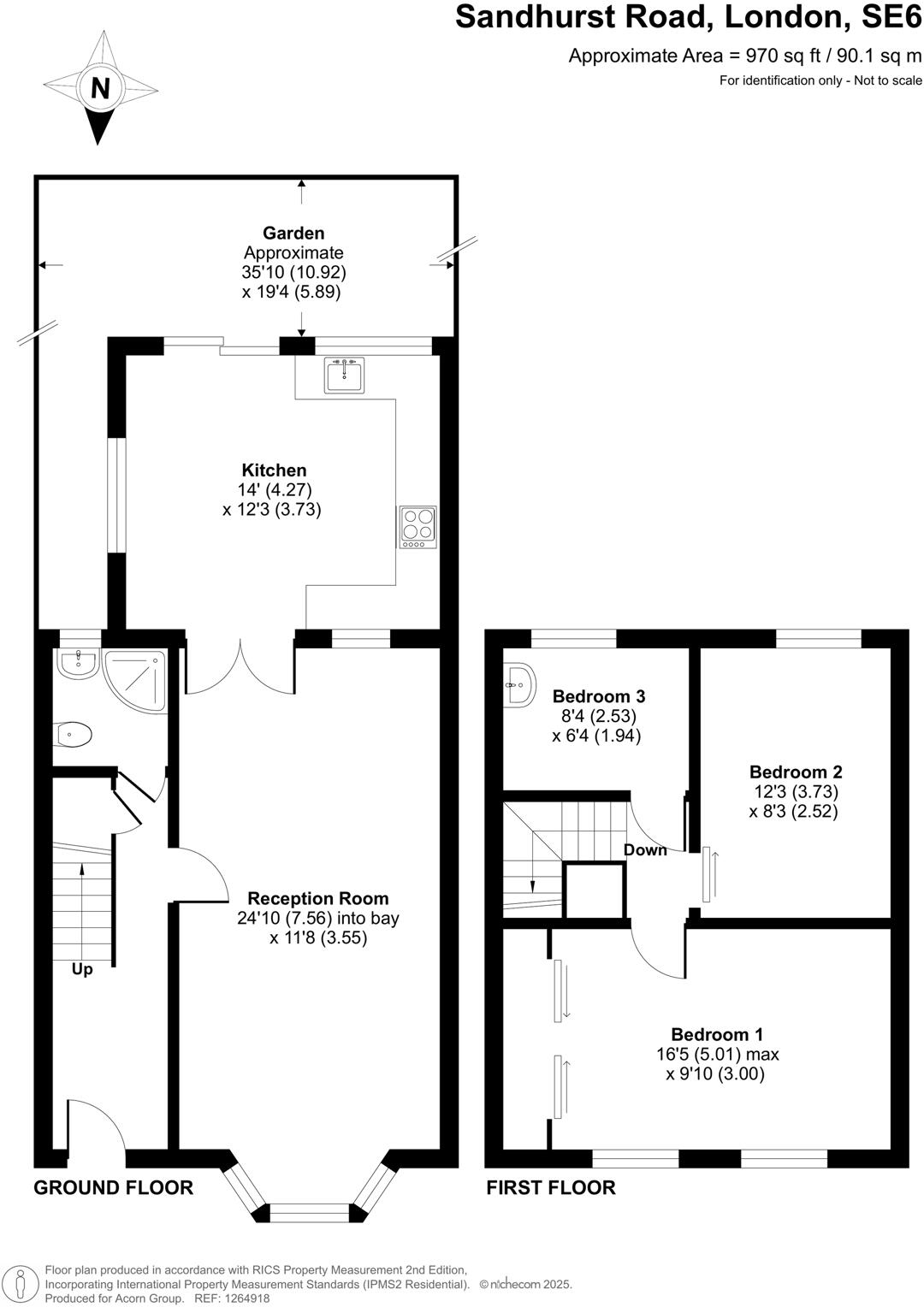
Three-bedroom Victorian end-of-terrace with period features
A three-bedroom Victorian end-of-terrace offered vacant on a freehold title and sold by online auction with a strict six-week completion. The house provides generous room proportions including a 24'10" reception, a kitchen/diner opening to a small rear garden, and three upstairs bedrooms — a straightforward canvas for modernisation.
The property has period features such as high ceilings, a bay window and decorative lintels, and benefits from double glazing and mains gas central heating. It sits in a commuter-friendly part of SE6 with Hither Green, Bellingham and Lee stations nearby, good local shops and several well-regarded primary and secondary schools within walking distance.
This home requires refurbishment throughout: cosmetic updating, possible damp attention in parts, and likely wall insulation works (solid brick construction). Crime in the immediate area is above average, and the plot is small, so buyers should factor renovation costs, security considerations and garden limitations into their budget.
Ideal for a family or investor prepared to renovate, the property’s period bones, vacant possession and auction timetable create clear potential for value uplift once upgraded. Buyers must be prepared to proceed quickly and inspect thoroughly before bidding.
3 bedroom end of terrace house for sale in Sandhurst Road, London, SE6 — £380,000 • 3 bed • 1 bath • 775 ft²
5 bedroom semi-detached house for sale in Ringstead Road, Catford, London, SE6 — £675,000 • 5 bed • 4 bath • 2466 ft²
2 bedroom town house for sale in 18 Ronver Road, London, SE12 0NR, SE12 — £400,000 • 2 bed • 2 bath
2 bedroom maisonette for sale in Sangley Road, London, SE6 — £250,000 • 2 bed • 1 bath • 905 ft²
3 bedroom terraced house for sale in Muirkirk Road, LONDON, London, SE6 — £550,000 • 3 bed • 1 bath • 1450 ft²
3 bedroom end of terrace house for sale in Melfield Gardens, Catford, London, SE6 — £475,000 • 3 bed • 2 bath • 1142 ft²






















































