Affordable freehold terrace with garden and garage ideal for first-time buyers.
Freehold two-bedroom mid-terrace with garage and small front garden
Chain free — ready for a quicker sale or purchase process
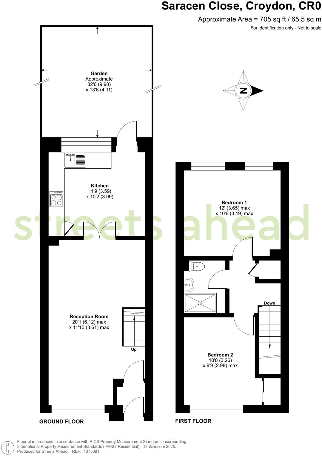
20ft reception room and 11ft fitted kitchen with patio doors
Sunny rear garden but overall plot size is modest
Built 1967–1975; cavity walls likely without insulation (assumed)
Double glazing present; install date unknown — may need upgrade
High local crime rate and area deprivation — consider insurance/risks
Approx 705 sq ft; single bathroom, scope for modernisation
This two-bedroom mid-terraced house on a quiet cul-de-sac offers a straightforward starter home or rental opportunity. The ground floor has a 20ft reception leading to an 11ft fitted kitchen with patio doors to a sunny rear garden; upstairs are two double bedrooms and a single bathroom. The property is freehold, chain-free and includes a garage — practical bonuses for storage and parking in CR0.
Built in the late 1960s–1970s, the house is average-sized at around 705 sq ft and suits buyers willing to invest modestly in updating. The living areas appear modern and usable, but the walls are cavity as-built with no confirmed insulation, so improving thermal efficiency may be advisable. Double glazing is present though install date is unknown.
Location strengths include excellent mobile signal, fast broadband and several nearby schools rated Good, plus local amenities and transport links. Material drawbacks are a high local crime rate and wider area deprivation noted for this postcode; buyers should factor this into affordability and insurance. Overall, this property will appeal to first-time buyers seeking an affordable freehold terrace with scope to personalise, or investors targeting lettable stock close to local schools and transport.
2 bedroom semi-detached house for sale in Northcote Road, Croydon, CR0 — £425,000 • 2 bed • 1 bath • 984 ft²
2 bedroom end of terrace house for sale in Vauxhall Gardens, South Croydon, CR2 — £425,000 • 2 bed • 1 bath • 772 ft²
2 bedroom end of terrace house for sale in Cuthbert Road, Croydon, CR0 — £325,000 • 2 bed • 1 bath • 810 ft²
2 bedroom terraced house for sale in Clifton Road, South Norwood, London, SE25 — £390,000 • 2 bed • 1 bath • 766 ft²
2 bedroom terraced house for sale in Broadway Avenue, Croydon, CR0 — £340,000 • 2 bed • 1 bath • 733 ft²
2 bedroom end of terrace house for sale in St. Peters Street, South Croydon, CR2 — £375,000 • 2 bed • 1 bath • 682 ft²










































