Well-located terrace with garden and good transport links for families.
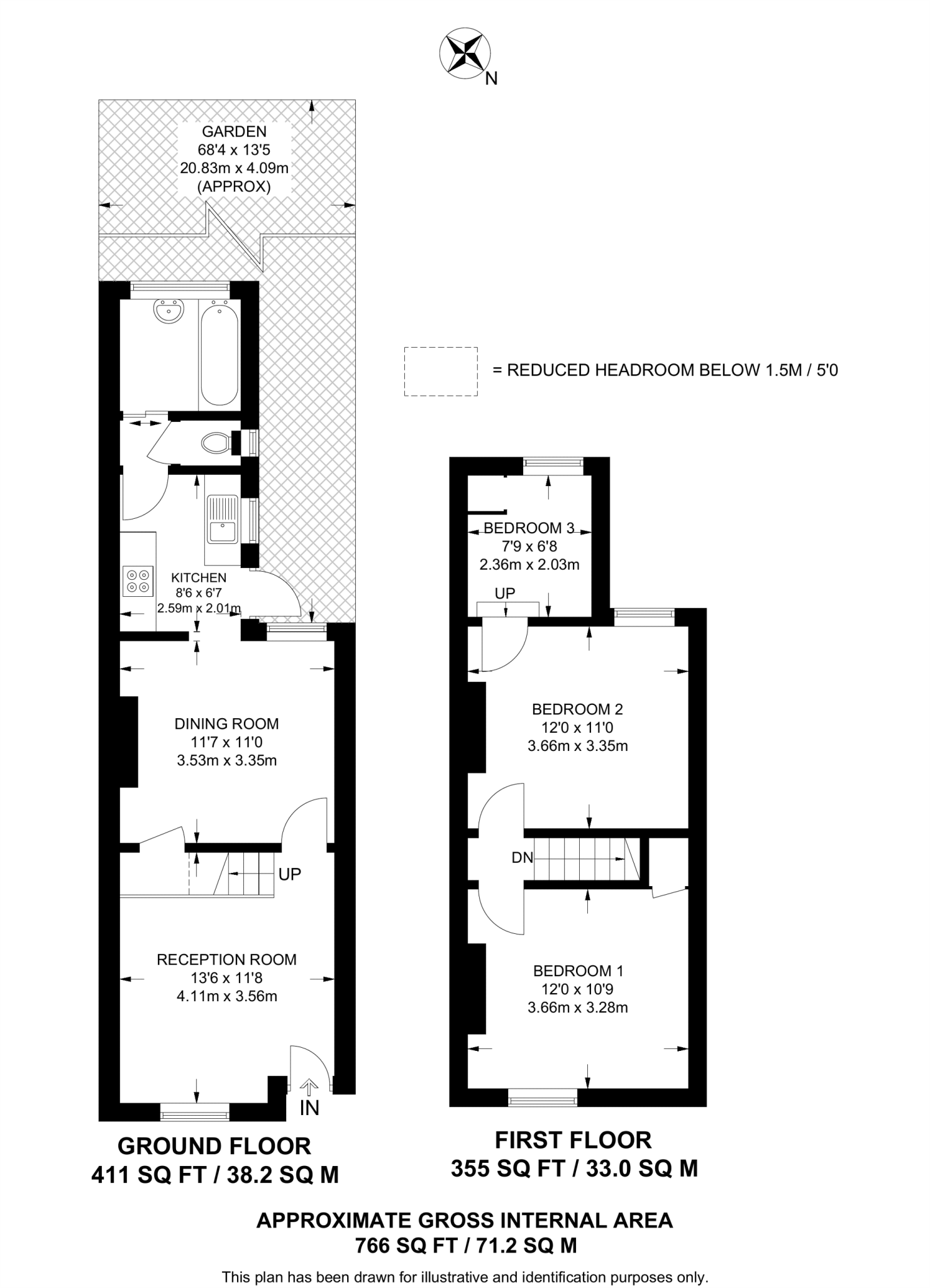
Freehold terraced house, approximately 766 sq ft
This terraced, freehold home offers a practical layout for families seeking space close to transport and schools. The living room and separate dining room are bright and well proportioned, and a large private garden provides useful outdoor space for children and pets. The property totals about 766 sq ft and sits in a convenient South Norwood location with fast rail links into central London.
Internals are in smart, liveable condition with a fitted kitchen, a modern bathroom and well-sized bedrooms. Constructed around 1900–1929 from solid brick, the house has double glazing (unknown install date) and gas central heating via a boiler and radiators. Broadband speeds are fast and mobile signal is excellent, which helps for home working and family connectivity.
There are some important considerations: the area records higher crime levels and wider local deprivation, and the plot is small compared with larger suburban gardens. The walls are original solid brick with no known insulation (assumed), so buyers should factor in potential insulation or energy-efficiency improvements. Also note the listing data shows two bedrooms, although earlier marketing text refers to three — confirm the current bedroom layout during viewing.
Nearby schools include several rated Good and an Outstanding academy, and local shops and services are within walking distance. For a family or commuter household seeking a well-located, characterful terrace with garden and sensible improvement potential, this home is worth an internal inspection.
3 bedroom terraced house for sale in Woodside Avenue, South Norwood, London, SE25 — £500,000 • 3 bed • 1 bath • 1127 ft²
3 bedroom terraced house for sale in Harrington Road, South Norwood, SE25 — £450,000 • 3 bed • 1 bath • 824 ft²
3 bedroom terraced house for sale in Preston Road, Norwood, London, SE19 — £700,000 • 3 bed • 1 bath • 1176 ft²
3 bedroom terraced house for sale in Grasmere Road, London, SE25 — £475,000 • 3 bed • 1 bath • 1044 ft²
3 bedroom terraced house for sale in Grasmere Road, London, SE25 — £475,000 • 3 bed • 1 bath • 865 ft²
3 bedroom end of terrace house for sale in Lamberhurst Road, West Norwood, London, SE27 — £680,000 • 3 bed • 2 bath • 1088 ft²


































































































































































































































































