Compact, improved three-bed near town centre and station, chain free.
Victorian mid-terrace with period features and bay window
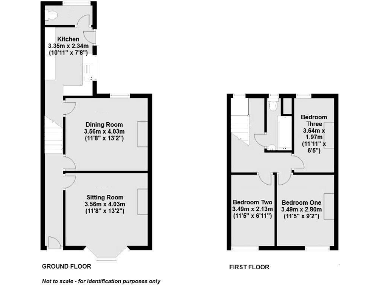
A compact Victorian mid-terrace, tastefully updated yet retaining period features including bay window, fireplaces and ceiling cornice. The house is arranged over two storeys with sitting and dining rooms, a refitted kitchen, ground-floor WC, three first-floor bedrooms and a family bathroom — a practical layout for a first home or small family.
Practical benefits include gas central heating, full double glazing, freehold tenure and no onward chain, plus easy on-street parking (no permit). The property sits within walking distance of Oakham town centre, local shops, schools and the railway station — convenient for commuting and daily errands.
Accommodation is modest in scale (approximately 655 sq ft) and the rear is a low-maintenance paved courtyard garden. There is clear scope to personalise and improve energy performance (current EPC D) and add value by modest modernisation or insulation works. Note: the property has solid brick walls (typical of its age) and may benefit from improved wall insulation where possible.
Buyers should note the compact room sizes and small external space; the roof and chimney show signs that may require attention in the medium term. Overall, this is a well-presented period terraced home offering an affordable entry into Oakham with scope to adapt and upgrade over time.
2 bedroom terraced house for sale in New Street, Oakham, Rutland, LE15 — £255,000 • 2 bed • 1 bath • 994 ft²
2 bedroom end of terrace house for sale in Braunston Road, Oakham, Rutland, LE15 — £210,000 • 2 bed • 1 bath • 769 ft²
3 bedroom terraced house for sale in Penn Street, Oakham, LE15 — £240,000 • 3 bed • 1 bath • 904 ft²
2 bedroom terraced house for sale in New Street, Oakham, LE15 — £195,000 • 2 bed • 1 bath • 689 ft²
3 bedroom town house for sale in Penn Street, Oakham, LE15 — £249,995 • 3 bed • 2 bath • 1074 ft²
4 bedroom end of terrace house for sale in Graffham Drive, Oakham, Rutland, LE15 — £230,000 • 4 bed • 2 bath • 1260 ft²


































































