Close to town centre and railway station, convenient for commuting|Integral single garage plus driveway for off-street parking|Three-storey layout with flexible ground-floor bedroom/study|Master bedroom with en-suite; family bathroom serves other bedrooms|Small third bedroom — best as single room or home office|Compact plot and modest rear garden; limited front amenity space|Built 2007–2011, double glazed, mains gas central heating, Energy C|Council Tax Band D; services and appliances not independently tested
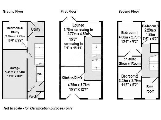
Set across three floors, this modern end-terrace townhouse offers practical family living close to Oakham town centre and the railway station. The ground floor provides flexible space — a fourth bedroom or home study, utility room and cloakroom — while the first floor hosts an L-shaped lounge and a kitchen/diner with Juliet balconies that bring light into the principal living areas. Upstairs the principal bedroom has an en-suite, supported by two further bedrooms and a family bathroom.
The property includes an integral single garage and a driveway for off-road parking, plus an enclosed rear lawn with a patio. Constructed around 2007–2011, the house benefits from mains gas central heating, double glazing and an Energy Rating C. Broadband and mobile connectivity are strong and the cul-de-sac location with a nearby play area suits families.
Practical points to note: the plot is compact with limited front amenity space and a modest rear garden, and one second-floor bedroom is noticeably smaller (suitable as a single room or home office). Council Tax sits at Band D. Services, fittings and appliances have not been independently tested in these particulars and prospective buyers should satisfy themselves by inspection.
Overall this is a mid-sized, low-maintenance townhouse well suited to growing families, first-time buyers seeking space and convenience, or investors looking for a straightforward rental opportunity in a very affluent, low-crime Rutland neighbourhood.
3 bedroom town house for sale in Kilburn End, Oakham, Rutland, LE15 — £249,950 • 3 bed • 3 bath • 1196 ft²
3 bedroom terraced house for sale in Graffham Drive, Oakham, Rutland, LE15 — £210,000 • 3 bed • 1 bath • 883 ft²
2 bedroom end of terrace house for sale in Braunston Road, Oakham, Rutland, LE15 — £210,000 • 2 bed • 1 bath • 769 ft²
3 bedroom town house for sale in Kilburn End, Oakham, LE15 — £270,000 • 3 bed • 3 bath • 1363 ft²
3 bedroom town house for sale in Penn Street, Oakham, LE15 — £249,995 • 3 bed • 2 bath • 1074 ft²
2 bedroom terraced house for sale in Ladywell, Oakham, LE15 — £160,000 • 2 bed • 1 bath • 722 ft²


























































