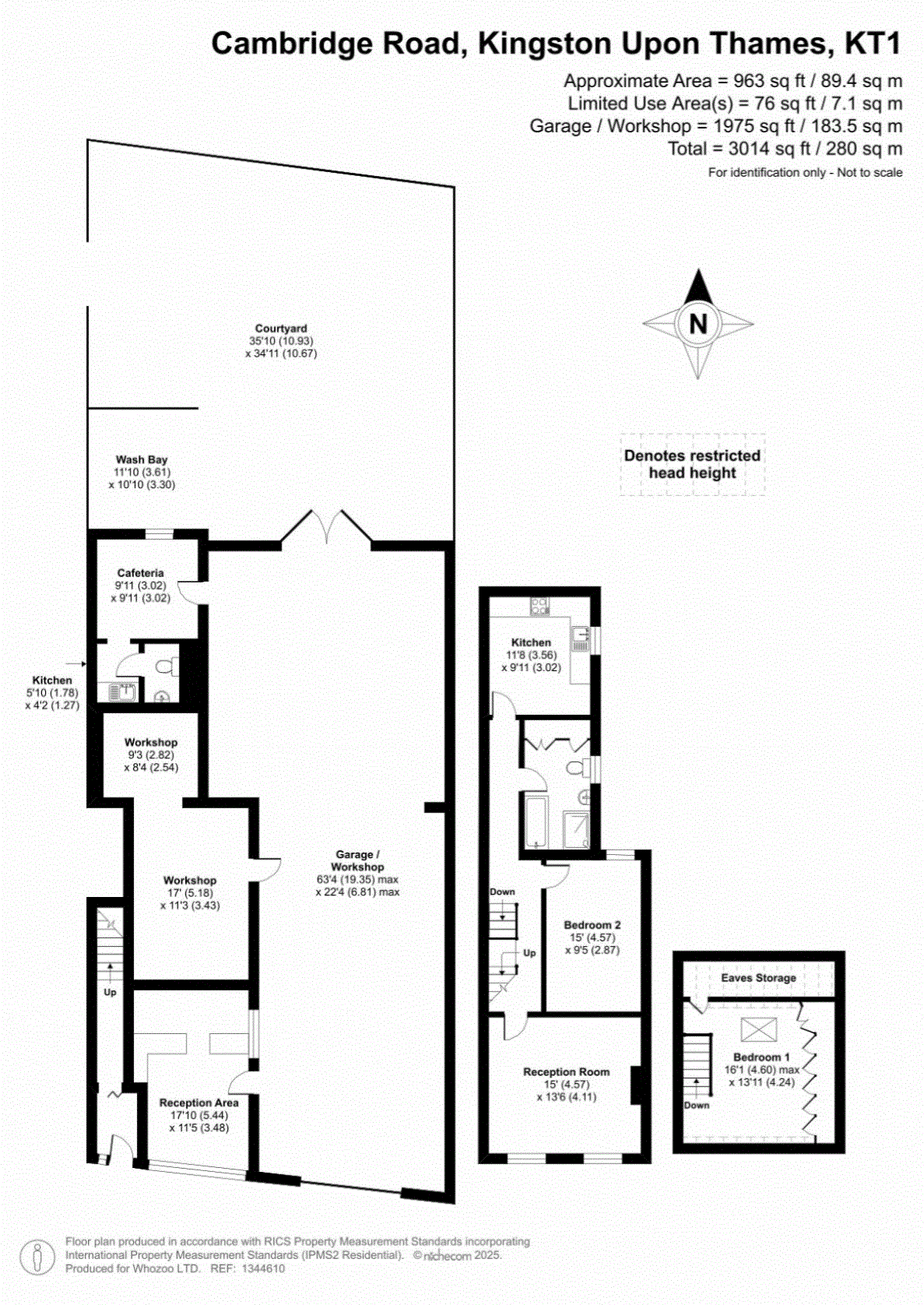
Prominent A‑road site with drive-through yard and redevelopment upside.
Prominent A2043 location with high daytime traffic and strong visibility
Vacant possession available end of August — flexible occupation options
Duplex flat c.850 sq ft; lease extension currently in progress
Ground-floor office/storage c.423 sq ft, previously a tyre repair business
Workshop c.935 sq ft plus large rear yard configured for drive-through
Development potential subject to planning; small plot restricts footprint
Mixed-tenure complexity: flat held on separate lease by vendor
Expect road noise from busy Cambridge Road; refurbishment likely required
A substantial mixed-use freehold positioned on a busy A-road into Kingston, this property combines a self-contained duplex flat, ground-floor commercial space, and a large workshop with rear yard. The site is offered with vacant possession at the end of August, giving flexibility for continued commercial use, multi-let income, or redevelopment (subject to planning).
Key value drivers include high roadside visibility, a drive-through yard arrangement with rear right-of-way access, and close walking distance to Kingston town centre and Norbiton station. The duplex flat (circa 850 sq ft) is in usable condition and is currently the subject of a lease extension process. The ground-floor commercial unit (approx. 423 sq ft) and sizable workshop (approx. 935 sq ft) suit light industrial, trade, or storage uses now.
There is clear redevelopment and value-add potential, but any change of use or increased density will require planning permission. The property sits on a relatively small plot within an affluent inner-city area; road noise and heavy traffic on Cambridge Road should be expected. The mixed-tenure nature and the flat being held on a separate lease add transactional complexity that buyers should review.
This opportunity will suit investors or owner-occupiers seeking an active refurbishment or redevelopment project close to central Kingston, with strong transport links and local amenities nearby.
5 bedroom mixed use property for sale in Fife Road, Kingston Upon Thames, Surrey, KT1 — £1,450,000 • 5 bed • 1 bath • 1173 ft²
Commercial development for sale in 70a Elm Road, Kingston Upon Thames, KT2 6HU, KT2 — £700,000 • 1 bed • 1 bath • 2727 ft²
Commercial development for sale in 141 London Road, Norbiton, Kingston Upon Thames, London, KT2 — £1,000,000 • 1 bed • 1 bath • 2637 ft²
1 bedroom apartment for sale in Cambridge Road, Kingston Upon Thames, KT1 — £260,000 • 1 bed • 1 bath • 525 ft²
Residential development for sale in Lingfield Avenue, Surbiton, Surrey, KT1 — £1,250,000 • 4 bed • 1 bath • 2420 ft²
Commercial development for sale in 196 Kingston Road, Epsom, Surrey, KT19 — £900,000 • 1 bed • 1 bath • 5169 ft²






























































