Period farmhouse on productive land with versatile outbuildings.
- Approximately 130 acres of arable and grassland (Grade 3)
A handsome Georgian farmhouse set at the heart of about 130 acres of productive arable and grassland, Haughton Farm blends period character with recent sympathetic renovation. A substantial part of the house has been modernised with underfloor heating on the ground floor, 10kW ground-mounted solar PV and tasteful finishes; the remainder of the property is unmodernised and ready for a buyer to complete to personal taste.
The farmstead includes a wide range of traditional and modern outbuildings arranged around a concrete yard, offering genuine potential for diversified uses or conversion subject to planning. The land is largely Grade 3, versatile and productive, and currently comes with a Countryside Stewardship Mid Tier agreement transferable on completion (subject to Rural Payments Agency approval).
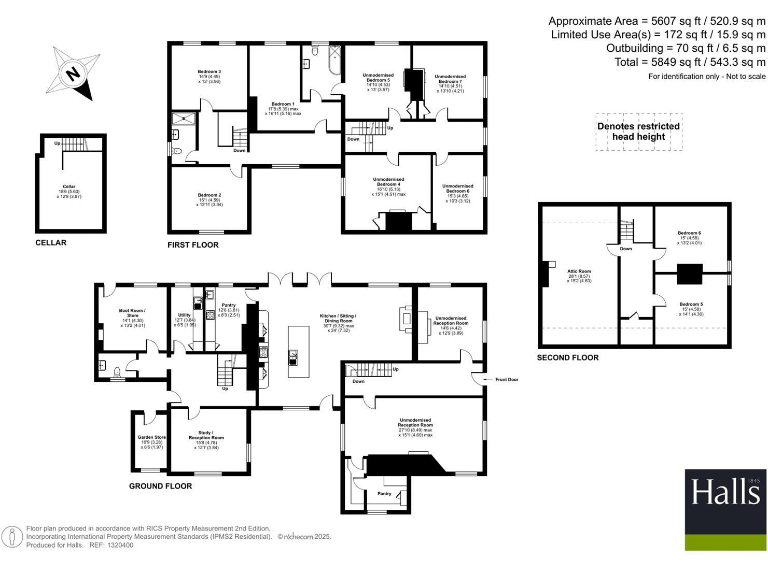
Practical realities are set out plainly: the farmhouse has seven bedrooms but only two bathrooms in its current layout, private drainage and three-phase electricity, and part of the holding lies within a Nitrate Vulnerable Zone. Broadband speeds and mobile signal are only average to slow in this location, and mine and mineral rights are excluded from the sale. The property is offered freehold, either as a whole or in lots, and will suit buyers seeking an operational farm, a large private family home with development potential, or an investor looking to diversify income streams.
Farm for sale in Haughton Farm, Haughton, Nr Ellesmere, Shropshire., SY12 — £2,400,000 • 7 bed • 2 bath • 5607 ft²
5 bedroom detached house for sale in High View Farm, Burlton, Shrewsbury, SY4 — £850,000 • 5 bed • 2 bath • 3988 ft²
4 bedroom detached house for sale in Haughton, Upton Magna, SY4 — £850,000 • 4 bed • 3 bath • 3453 ft²
6 bedroom link detached house for sale in Middleton, Oswestry, SY11., SY11 — £650,000 • 6 bed • 2 bath • 3785 ft²
Farm for sale in Wentnor, Bishops Castle, SY9 — £1,300,000 • 4 bed • 1 bath • 1927 ft²
5 bedroom detached house for sale in Wyke, Much Wenlock, Shropshire, TF13 — £1,275,000 • 5 bed • 3 bath • 3926 ft²










































































