Secluded hilltop holding with conversion potential and extensive grazing.
4 bedrooms in detached stone farmhouse
Just under 100 acres pasture plus small woodland parcels
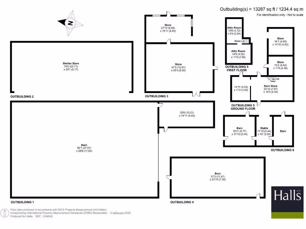
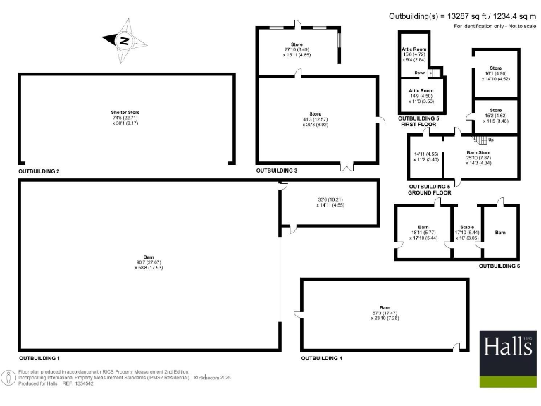
Range of stone and modern farm buildings with conversion potential
Private borehole water supply; mains electricity present
Oil-fired central heating; log burners in reception rooms
Private drainage (septic tank); single bathroom in main house
Very slow broadband; average mobile signal in location
Council Tax Band E; planning consents required for conversions
Lower Gravenor Farm is a traditional four-bedroom stone farmhouse set within just under 100 acres of pasture and small woodland parcels in South Shropshire. The house offers comfortable, adaptable accommodation across two floors, oil-fired central heating, log burners in reception rooms and a private borehole supply. Its elevated position gives long views across the Onny Valley and towards the Long Mynd, and the holding is registered with Defra for stewardship schemes.
A diverse range of agricultural and traditional outbuildings surround a central yard. Several stone and steel buildings have mains power, light and water and present genuine potential for conversion to ancillary accommodation, holiday lets or studio/office use — subject to planning consent. The land is largely Grade 4 pasture divided into manageable paddocks, suited to grazing, mowing, equestrian use or environmental projects.
Practical considerations are straightforward but important: the property is served by private drainage to a septic tank, oil-fired heating (not a community supply), secondary/double glazing and very slow broadband. There is only one bathroom in the main house. Purchasers should allow for potential upgrading, servicing of off-grid systems, and any planning costs if converting outbuildings.
This is a rare opportunity for a working small/medium farm or lifestyle buyer seeking seclusion, productive pasture and conversion potential within commuting distance of Shrewsbury and Ludlow. It will particularly suit buyers who value privacy, land management options and who can accommodate rural service limitations or who plan targeted investment to modernise services or convert buildings.
5 bedroom detached house for sale in High View Farm, Burlton, Shrewsbury, SY4 — £850,000 • 5 bed • 2 bath • 3988 ft²
3 bedroom farm house for sale in Brook House Farm, Nind, Minsterley, SY5 — £400,000 • 3 bed • 1 bath • 1606 ft²
7 bedroom country house for sale in Haughton Farm, Haughton, Ellesmere, Shropshire., SY12 — £2,400,000 • 7 bed • 2 bath • 5607 ft²
4 bedroom detached house for sale in Station Road, Halfway House, Shrewsbury, SY5 — £995,000 • 4 bed • 4 bath • 3391 ft²
4 bedroom barn conversion for sale in High Clear Barn, Beaconhill Lane, Monkhopton, Bridgnorth, WV16 — £765,000 • 4 bed • 2 bath • 1790 ft²
6 bedroom detached house for sale in Ratlinghope, Shrewsbury, Shropshire, SY5 — £995,000 • 6 bed • 6 bath • 3792 ft²


































































































































































