Large farmstead with modernised wing, barns and substantial development potential.
Approximately 127.21 acres productive arable and grassland
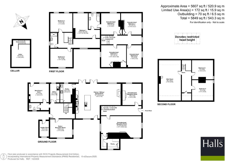
Haughton Farm is a substantial red‑brick period farmhouse set at the heart of an established Shropshire farmstead, offered with about 127.21 acres of productive arable and grassland (approximately 130.97 acres in total). A significant portion of the main house has been recently sympathetically renovated, with modern comforts such as underfloor heating on the ground floor of the refurbished wing, a 10 kW ground‑mounted solar PV installation, and three‑phase electricity serving the farm buildings.
The remaining part of the farmhouse is still unmodernised and provides a clear opportunity to complete the renovation to personal taste, creating additional living space across three storeys. A wide range of traditional and modern farm buildings sit around a concrete yard and present potential for diversified uses or conversions subject to planning — appealing for equestrian, agricultural or ancillary accommodation projects.
Practical features include mains water, private drainage, estate fencing, substantial parking and turning on a gravel forecourt, and a Countryside Stewardship Mid Tier agreement in place until 31/12/2028 (transfer subject to Rural Payments Agency approval). Buyers should note that part of the farm lies within a Nitrate Vulnerable Zone and mine and mineral rights are excluded from the sale by earlier conveyance.
This property is offered freehold, either as a whole or in lots by private treaty. It will suit purchasers seeking a working arable/livestock unit with immediate productive land, or a family wanting a spacious period home with scope to personalise and diversify income through the outbuildings and land.
7 bedroom country house for sale in Haughton Farm, Haughton, Ellesmere, Shropshire., SY12 — £2,400,000 • 7 bed • 2 bath • 5607 ft²
5 bedroom detached house for sale in High View Farm, Burlton, Shrewsbury, SY4 — £850,000 • 5 bed • 2 bath • 3988 ft²
4 bedroom detached house for sale in Haughton, Upton Magna, SY4 — £850,000 • 4 bed • 3 bath • 3453 ft²
6 bedroom link detached house for sale in Middleton, Oswestry, SY11., SY11 — £650,000 • 6 bed • 2 bath • 3785 ft²
4 bedroom country house for sale in Wentnor, Bishops Castle, SY9 — £1,300,000 • 4 bed • 1 bath • 1927 ft²
Land for sale in 90 acres of Land at Greenhill Farm, Ellesmere, Shropshire, SY12 9EZ, SY12 — £1,160,000 • 1 bed • 1 bath










































































