Spacious conversion with balcony views, parking and low-maintenance living.
Grade II listed conversion with river-facing balcony and striking high ceilings
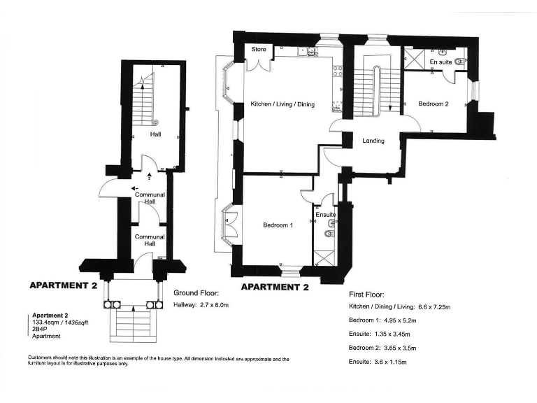
Large apartment footprint — approximately 1,436 sq ft of accommodation
Two double bedrooms, each with its own en suite bathroom
Open-plan reception room and fitted kitchen with appliances included
Allocated off-street parking and shared communal garden
Long lease (250 years) with share of freehold ownership structure
Listed-status restrictions may limit alterations and complicate consent
EPC C; underfloor heating via air-source heat pump, Council Tax band TBC
Set within an elegant Grade II listed villa overlooking the Taw, this newly converted two-bedroom apartment combines period character with contemporary finishes. The open-plan reception and kitchen benefits from high ceilings, large windows and a private balcony with river views — ideal for relaxed evenings or entertaining. Two double bedrooms both include en suite facilities, and there is a separate study/hall for home working or storage.
Practical comforts include an allocated off-street parking space, communal garden, underfloor heating powered by an air-source heat pump, and a long 250-year lease with share of freehold. The apartment was completed in 2022, so finishes are recent and the property presents as move-in ready. EPC rating C is confirmed; flood risk is low.
Buyers should be aware the building’s listed status may restrict alterations and could complicate permissions for future works. The tenure is leasehold with a share of freehold — service arrangements and any communal maintenance costs should be reviewed. Council Tax band is yet to be confirmed.
Positioned close to Barnstaple town centre, local amenities and several well-rated primary schools, this apartment suits downsizers or anyone seeking a low-maintenance riverside base with easy access to urban facilities. The conversion offers generous internal space (approximately 1,436 sq ft) and contemporary building services, balanced by the responsibilities that come with a listed, communal property.
2 bedroom apartment for sale in Litchdon Street, Barnstaple, EX32 — £395,000 • 2 bed • 1 bath • 734 ft²
2 bedroom apartment for sale in Litchdon Street, Barnstaple, EX32 — £425,000 • 2 bed • 1 bath • 1151 ft²
1 bedroom apartment for sale in Litchdon Street, Barnstaple, EX32 — £325,000 • 1 bed • 1 bath • 734 ft²
2 bedroom apartment for sale in Litchdon Street, Barnstaple, EX32 — £275,000 • 2 bed • 1 bath • 624 ft²
1 bedroom apartment for sale in Litchdon Street, Barnstaple, EX32 — £325,000 • 1 bed • 1 bath • 721 ft²
2 bedroom apartment for sale in Taw Wharf, Sticklepath, Barnstaple, Devon, EX31 — £300,000 • 2 bed • 2 bath • 828 ft²






















































































