Bright penthouse with parking, garden and efficient heating.
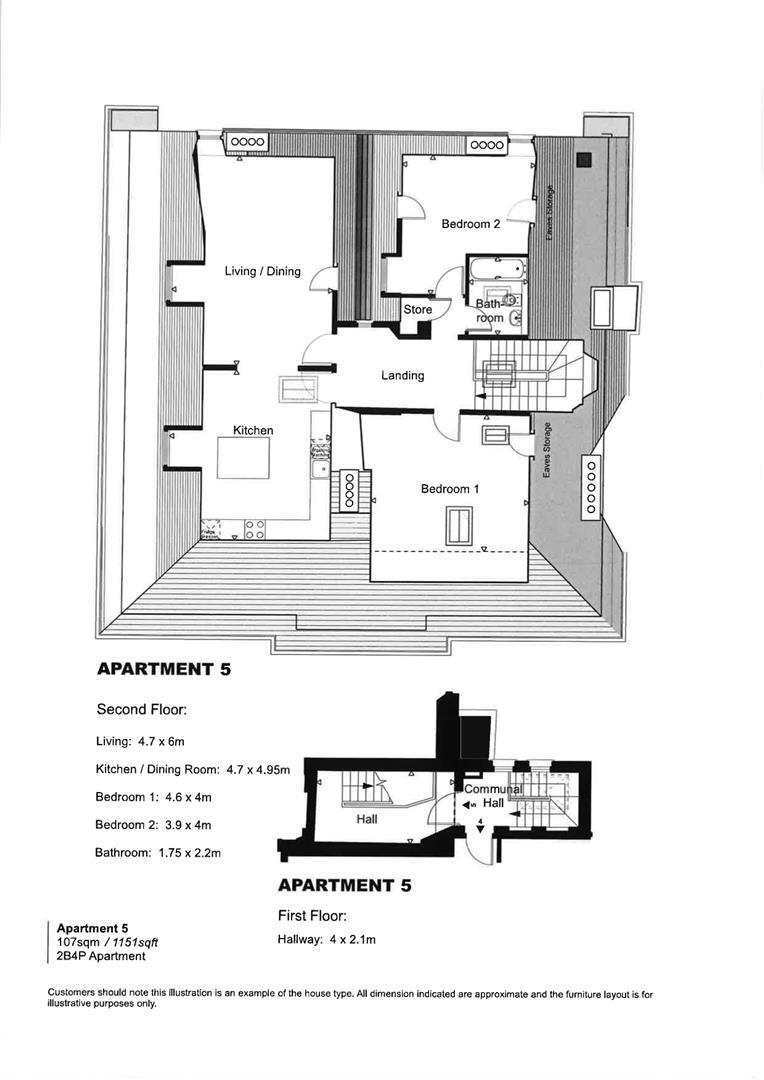
- Large 1,151 sqft penthouse with open-plan double reception kitchen
- Two bedrooms, one bathroom; roomy layout suited to flexible use
- Riverside and rooftop views across Barnstaple town centre
- Allocated off-street parking plus communal garden
- EPC B and air-source heat pump with underfloor heating
- Grade II listed status — may restrict alterations and increase costs
- Leasehold with share of freehold; 250 years remaining
- Limited additional parking and Council Tax band TBC
Bright, newly converted two-bedroom penthouse offering generous 1,151 sqft living in a handsome period shell. The open-plan double reception and kitchen face riverside and rooftop views, creating a flexible social heart for everyday living or entertaining. Underfloor heating served by an air-source heat pump delivers efficient warmth; the EPC B reflects good performance for a listed property.
Practical benefits include an allocated off-street parking space, a share of freehold with a long 250-year lease, and a communal garden for outside space. The apartment sits moments from Barnstaple town centre amenities and good primary schools, making it well placed as a first or second home and as a UK base.
Buyers should note the building is Grade II listed — attractive period character but likely extra restrictions, consent requirements and specialist maintenance. There is a single bathroom and limited on-site parking provision beyond the allocated space. Council Tax band is yet to be confirmed.
Overall this is a spacious, low-risk riverside home with contemporary interiors inside a protected historic villa. It will suit buyers seeking roomy open-plan living, efficient heating, and central waterside location, but expect listed-building responsibilities when renovating or altering features.
2 bedroom apartment for sale in Litchdon Street, Barnstaple, EX32 — £395,000 • 2 bed • 1 bath • 734 ft²
1 bedroom apartment for sale in Litchdon Street, Barnstaple, EX32 — £325,000 • 1 bed • 1 bath • 734 ft²
2 bedroom apartment for sale in Litchdon Street, Barnstaple, EX32 — £275,000 • 2 bed • 1 bath • 624 ft²
1 bedroom apartment for sale in Litchdon Street, Barnstaple, EX32 — £325,000 • 1 bed • 1 bath • 721 ft²
2 bedroom apartment for sale in Litchdon Street, Barnstaple, EX32 — £499,950 • 2 bed • 2 bath • 1436 ft²
4 bedroom terraced house for sale in Litchdon Street, Barnstaple, EX32 — £550,000 • 4 bed • 3 bath • 1679 ft²


























































