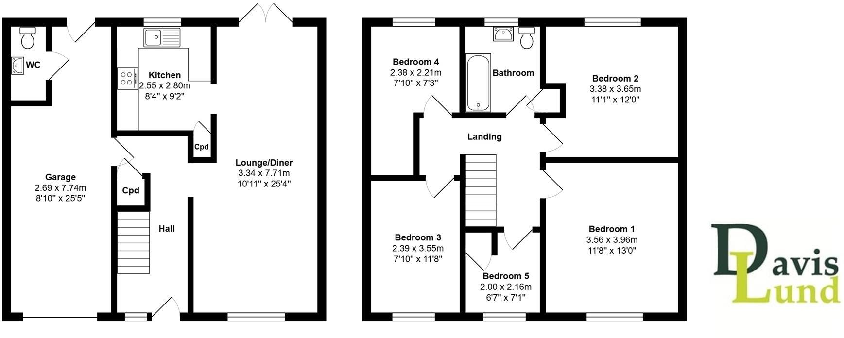
**Standout Features:**
- Substantial five-bedroom, semi-detached home with two-storey extension
- Spacious open-plan lounge/diner with stone feature fireplace
- Integrated garage and driveway
- Family-friendly enclosed rear garden, predominantly lawned
- Proximity to local amenities, schools, and excellent transport links
- Environmental features include solar panels (to be removed before sale)
- Low crime rate in a very affluently classified area
**Summary:**
Discover this generously extended five-bedroom semi-detached home, perfect for families seeking comfort and convenience. The well-presented interior boasts an open-plan lounge/diner, creating an inviting space for relaxation and family gatherings, enhanced by double doors leading to the garden. An integrated garage and private driveway add to the ease of living. Enjoy a beautifully maintained rear garden, perfect for children and pets, while the front offers a neat lawn and parking access.
Nestled in the sought-after Thirsk area, you'll be just moments away from shops, local schools, and excellent transport links, making it ideal for commuting. With five bedrooms and a modern family bathroom, this home caters well to family needs. However, potential buyers should note that the solar panels will be removed during the sale process and that the integrated wardrobes and garden shed may be negotiable. Rarely available on the market, this property presents a compelling opportunity for those looking to settle in a friendly community. Don’t miss out on this fantastic family home - arrange your viewing today!
3 bedroom semi-detached house for sale in Danum Avenue, Sowerby, Thirsk, YO7 — £280,000 • 3 bed • 1 bath • 1065 ft²
3 bedroom semi-detached house for sale in Stockton Road, Thirsk, YO7 — £420,000 • 3 bed • 2 bath • 1637 ft²
5 bedroom detached house for sale in Poplar Crescent, THIRSK, North Yorkshire, YO7 — £495,000 • 5 bed • 3 bath • 1720 ft²
6 bedroom detached house for sale in Saxty Way, Sowerby, YO7 — £485,000 • 6 bed • 2 bath • 2000 ft²
4 bedroom semi-detached house for sale in Whitelass Close, Thirsk, YO7 — £342,000 • 4 bed • 2 bath • 1399 ft²
4 bedroom house for sale in Herriot Way, Thirsk, YO7 — £360,000 • 4 bed • 2 bath • 905 ft²


































































