**Property Highlights:**
- Location: YO7 1BA, close to Thirsk’s amenities
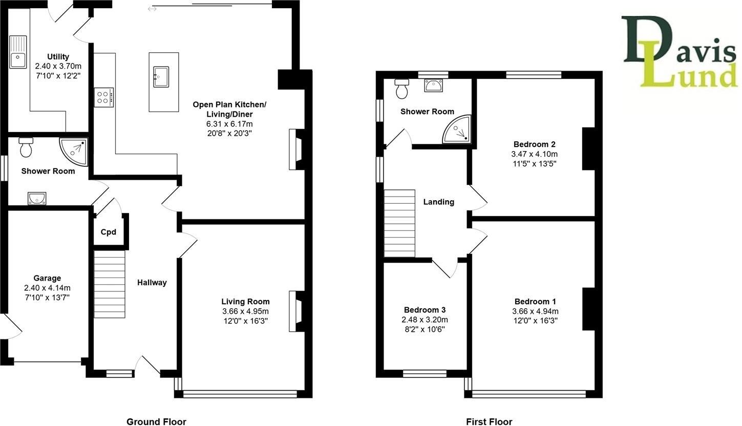
- Size: Substantial three-bedroom semi-detached home, approximately 1,500 square feet
- Features: Extended open-plan living space, two living rooms, and well-equipped kitchen
- Outdoor Space: Enclosed rear garden with decked areas and a gazebo
- Parking: Large driveway and integral garage
- Condition: Well-maintained, with double glazing and gas central heating
- Council Tax: Band D
- Nearby Schools: Multiple primary and secondary schools with good ratings
This impressive three-bedroom semi-detached home offers a blend of space and modern living in a sought-after area, making it ideal for families or investors. The property's standout feature is its expansive open-plan living area, complemented by a stylish kitchen and two inviting living rooms, perfect for gatherings and day-to-day living. The spacious rear garden, complete with decking and a timber gazebo, offers an excellent outdoor entertainment space that enjoys plenty of sunlight and privacy.
Located just a short walk from Thirsk's vibrant center, this home ensures easy access to local shops, amenities, and excellent transport links. With top-rated schools in the vicinity, it’s perfect for families looking to settle in a friendly community. These quality properties are in demand, so don’t miss the chance to view this stunning home and envision your future in this wonderful setting. Act quickly—properties like this one won’t last long on the market!
3 bedroom semi-detached house for sale in Danum Avenue, Sowerby, Thirsk, YO7 — £280,000 • 3 bed • 1 bath • 1065 ft²
5 bedroom semi-detached house for sale in Saxty Way, Sowerby, YO7 — £300,000 • 5 bed • 1 bath • 1057 ft²
4 bedroom semi-detached house for sale in Whitelass Close, Thirsk, YO7 — £342,000 • 4 bed • 2 bath • 1399 ft²
6 bedroom detached house for sale in Saxty Way, Sowerby, YO7 — £485,000 • 6 bed • 2 bath • 2000 ft²
4 bedroom detached house for sale in Swan Way, Sowerby, YO7 — £410,000 • 4 bed • 3 bath • 1454 ft²
3 bedroom house for sale in 30 Norby Estate, Thirsk, YO7 — £195,000 • 3 bed • 1 bath • 863 ft²






























































