**Standout Features:**
- Former Langham Hotel with mixed-use potential
- Ground floor retail investments generating £46,000 pa
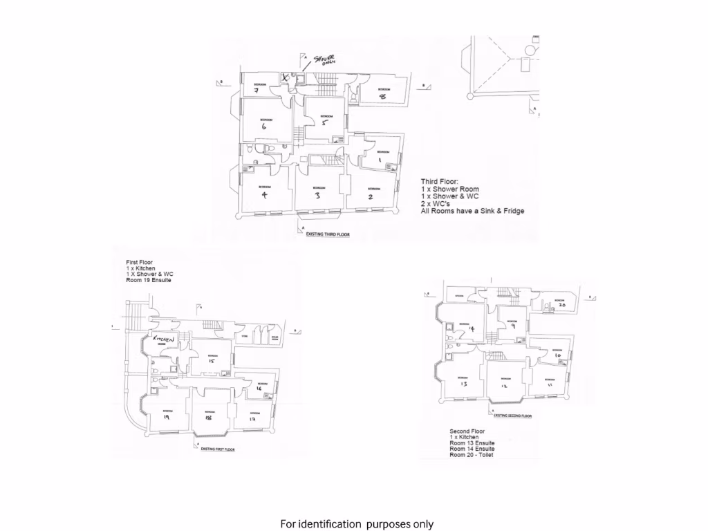
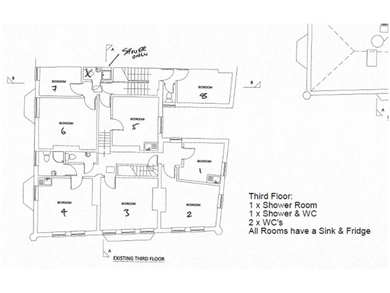
- Redevelopment opportunity for 15 ensuite letting bedrooms
- Prime location close to Brighton's city centre and amenities
- Requires full refurbishment but offers significant value-add potential
- Freehold investment with various potential uses (STPP)
- EPC rating: D
**Summary:**
Discover the unique investment opportunity presented by the Former Langham Hotel, located at 2 York Road & 132-134 Western Road in vibrant Brighton. This iconic structure boasts a prominent red brick facade and is poised to be transformed into a boutique hotel featuring 15 ensuite bedrooms. The ground floor consists of three retail units already leased, providing an immediate income of £46,000 annually. This coveted freehold property, set over multiple floors, requires a complete refurbishment but offers exciting potential for high returns, making it ideal for savvy investors or developers.
Positioned just moments from Brighton's bustling cultural hotspots and well-connected transport links, this site enjoys a strategic urban location near the picturesque beachfront. With the right vision, you can capitalize on its historical charm while significantly enhancing its market value. Given its redevelopment prospects and the ongoing interest in the vibrant Brighton market, seize this rare opportunity before it slips away!
Hotel for sale in Amsterdam Hotel, 12 Marine Parade, Brighton, BN2 1TL, BN2 — £2,800,000 • 1 bed • 1 bath • 1050 ft²
Hotel for sale in Regency Square, Brighton, BN1 — £2,000,000 • 1 bed • 1 bath • 4613 ft²
Hotel for sale in Queens Hotel Brighton, 1-3 Kings Road, Brighton, BN1 1NS, BN1 — £18,500,000 • 1 bed • 1 bath
Hotel for sale in Maon Hotel, 26 Upper Rock Gardens, Brighton BN2 1QE, BN2 — £1,200,000 • 1 bed • 1 bath • 3882 ft²
Hotel for sale in Queens Hotel, 1-3 Kings Road, Brighton, BN1 — £18,500,000 • 1 bed • 1 bath
Hotel room for sale in St. James's Street, BN2 — £98,450 • 1 bed • 1 bath • 340 ft²






















































