**Standout Features:**
- 9-bedroom long-established hotel in vibrant Kemp Town, Brighton
- Self-contained 1-bedroom flat, plus 2-3 bedroom owner's accommodation
- Potential for reconfiguration into Airbnb/holiday lets
- Garage and decent courtyard space
- Classic Georgian architecture with high ceilings and large windows
- Situated in a multicultural student neighborhood
**Negatives/Concerns:**
- Grade II listed status may complicate renovations
- High crime rate in the area
- Slow broadband speeds
- The building shows signs of age with no insulation noted
**Summary:**
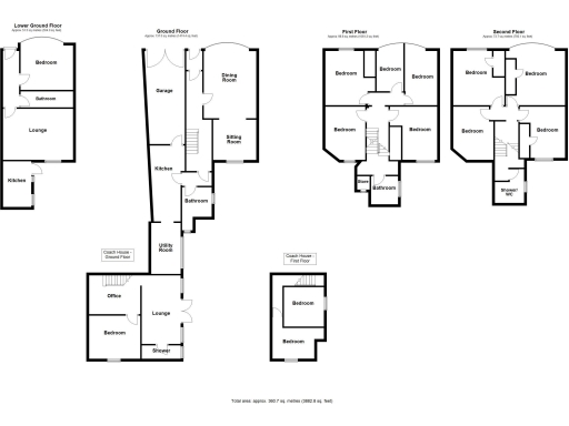
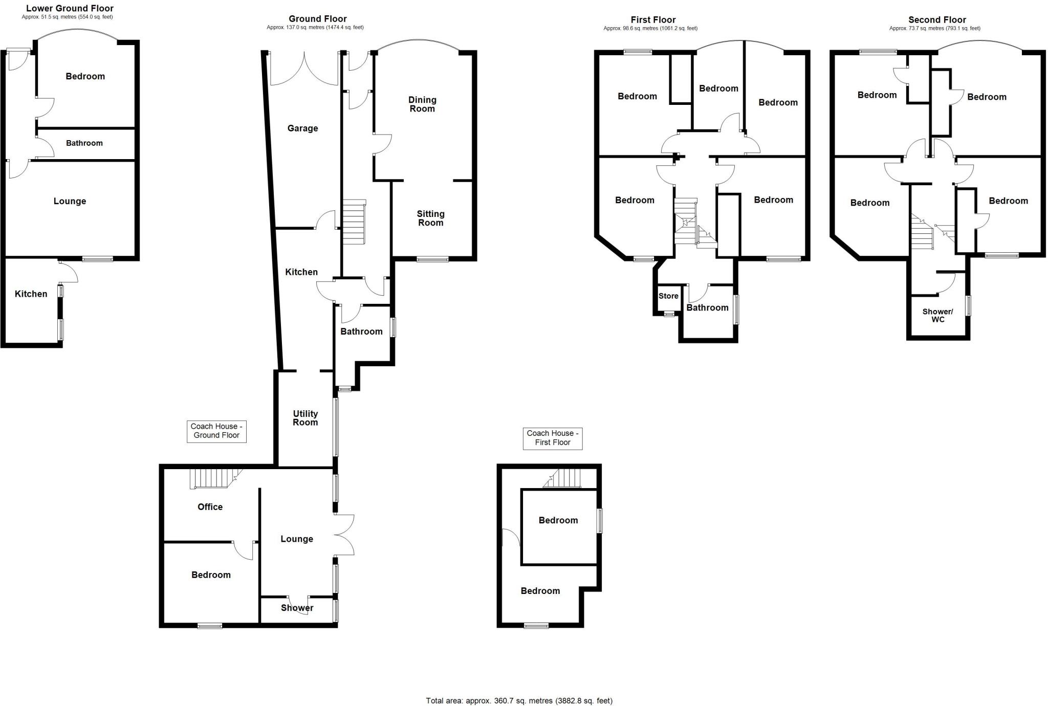
Discover a unique investment opportunity with this substantial 9-bedroom hotel located in the bustling Kemp Town district of Brighton. With a total area of 3882 square feet, this property is designed for flexibility, boasting not only a self-contained 1-bedroom flat but also additional accommodation for owners or staff. The hotel's historic Georgian façade, complete with elegant iron railings, offers a warm welcome, while its high ceilings and bright interiors create an inviting atmosphere.
This property features multiple spacious rooms over five levels, ideal for communal living or hospitality operations. The two separate entrances—the hotel entrance and the owner's accommodation—enhance privacy. Given the potential for conversion to Airbnb or holiday rentals, it appeals to savvy investors looking to capitalize on Brighton’s tourism market. Do note the property’s Grade II listing, which may limit renovation options, and the local area's high crime rate, which could affect guest perceptions. With the flexibility to innovate and the opportunity to create a unique living or hospitality experience, this property won’t last long in today’s competitive market. Explore the potential today!
Hotel for sale in 9 Oriental Place, Brighton, East Sussex, BN1 — £1,150,000 • 1 bed • 1 bath
Hotel for sale in Queens Hotel, 1-3 Kings Road, Brighton, BN1 — £18,500,000 • 1 bed • 1 bath
6 bedroom guest house for sale in Upper Rock Gardens, Brighton, BN2 — £795,000 • 6 bed • 6 bath • 2222 ft²
Hotel for sale in Queens Hotel Brighton, 1-3 Kings Road, Brighton, BN1 1NS, BN1 — £18,500,000 • 1 bed • 1 bath
22 bedroom hotel for sale in Confidential, BN1 — POA • 22 bed • 21 bath
Hotel for sale in Amsterdam Hotel, 12 Marine Parade, Brighton, BN2 1TL, BN2 — £2,800,000 • 1 bed • 1 bath • 1050 ft²


































