Prime development parcel with planning for 38 loft homes beside the River Camel.
- Grade II listed former China clay drying works
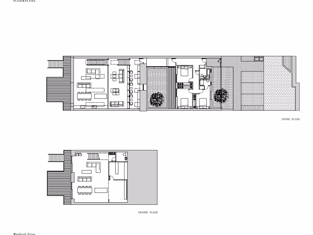
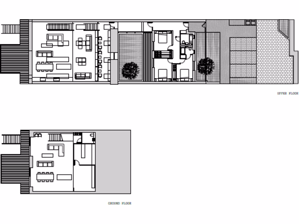
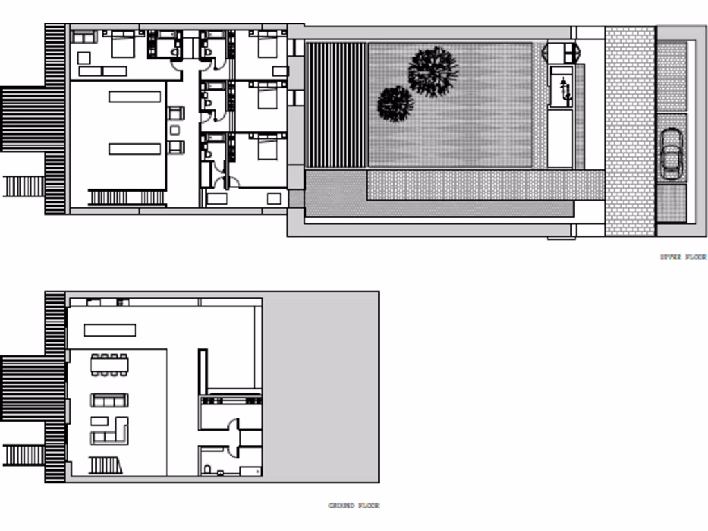
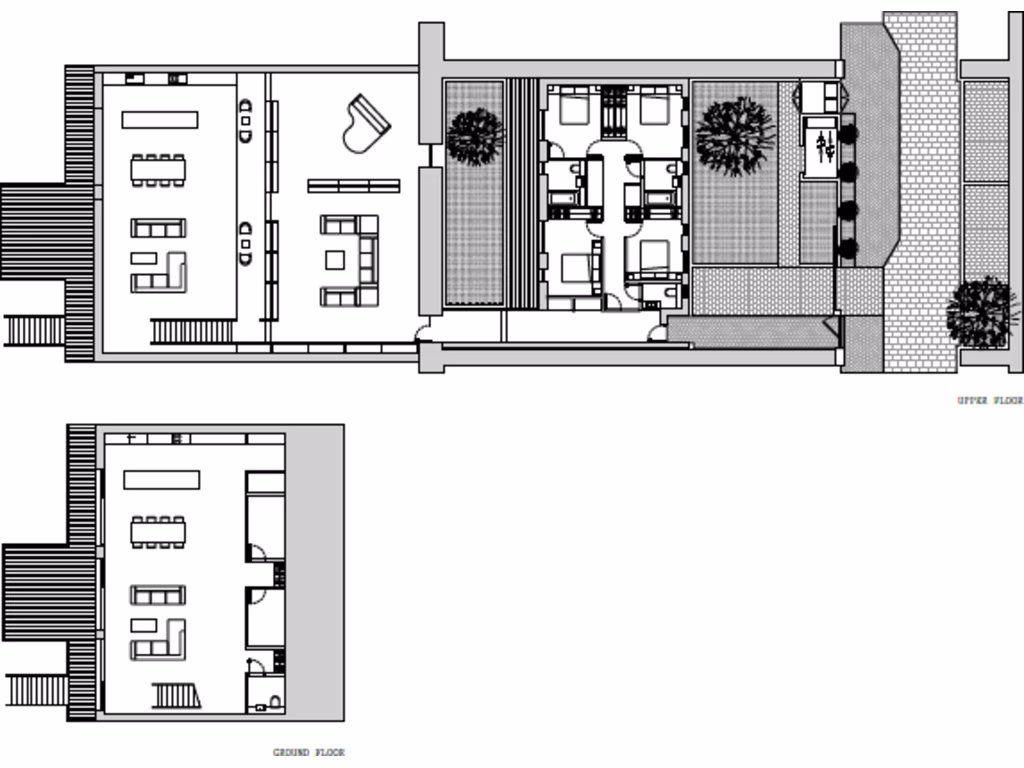
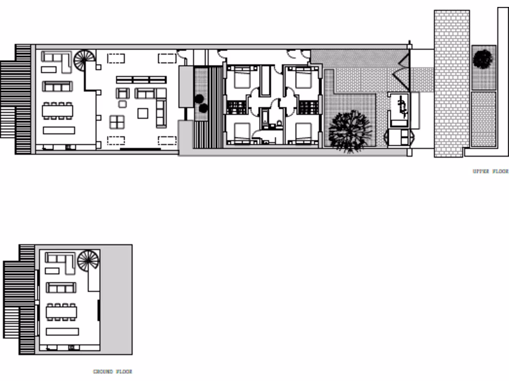
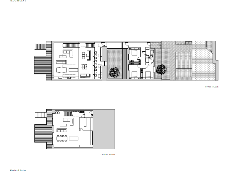
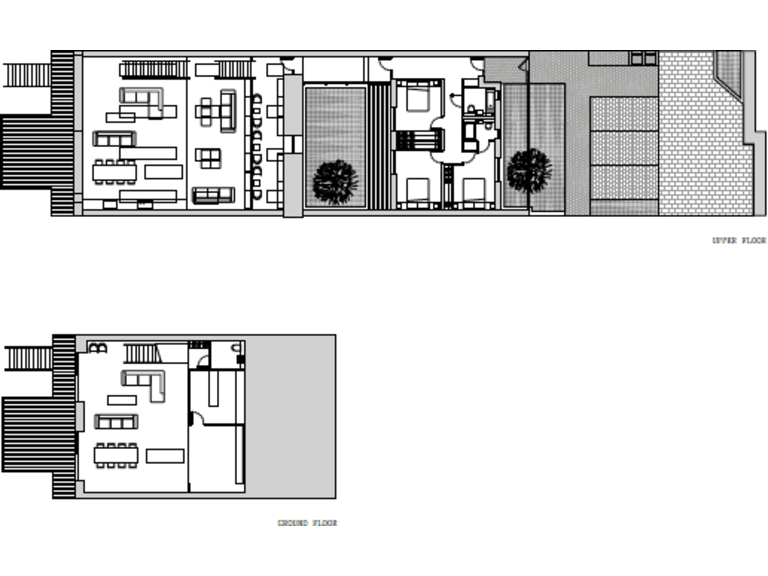
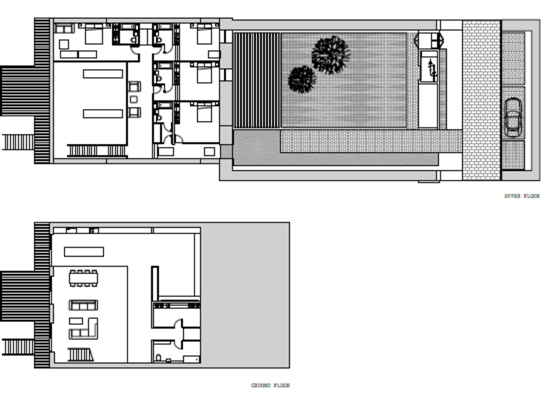
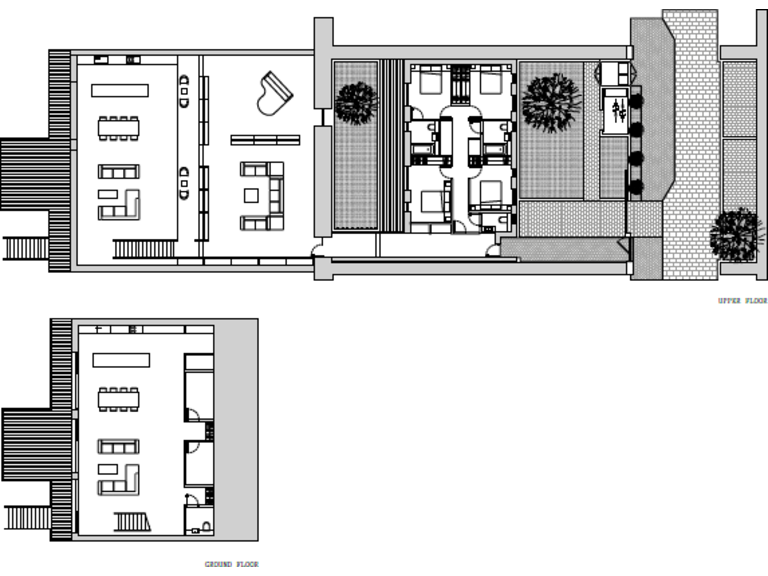
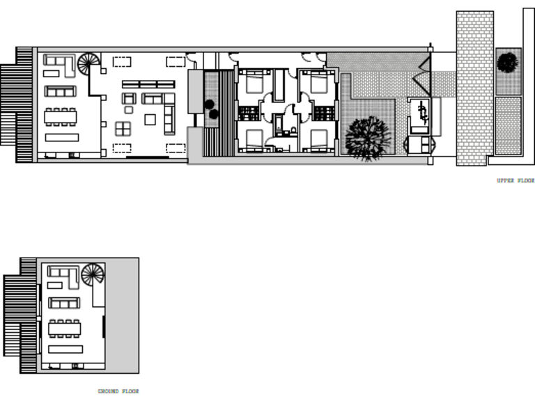
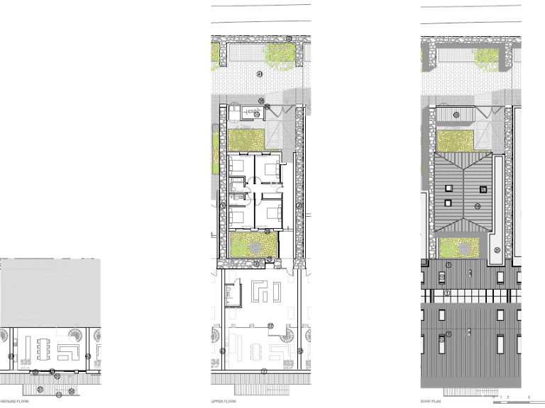
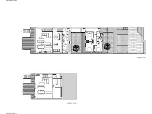
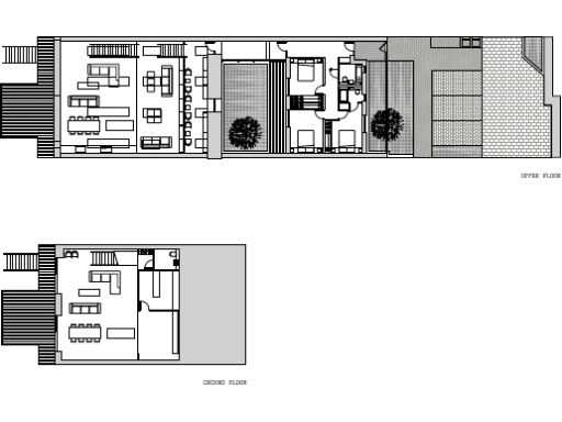
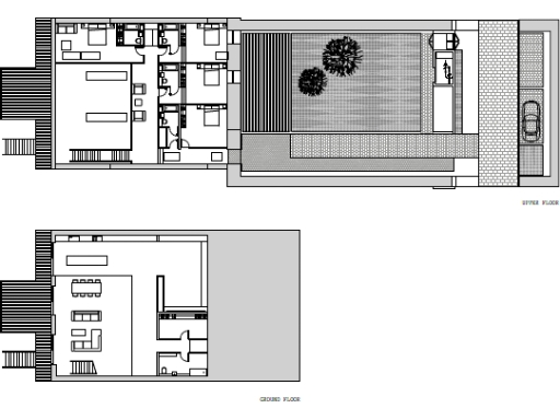
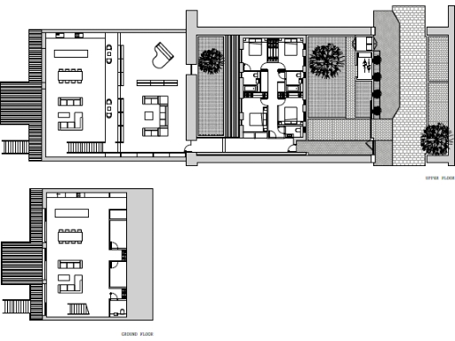
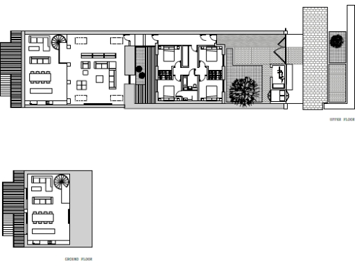
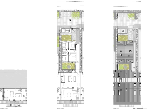
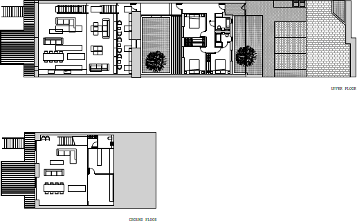
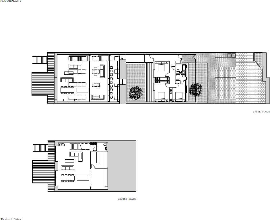
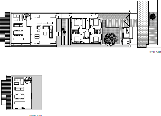
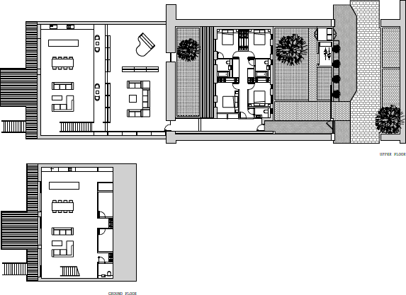
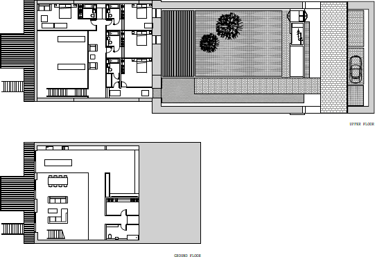
A rare development opportunity in an Area of Outstanding Natural Beauty: a Grade II listed former China clay drying works set across circa 13.71 acres, being sold with vacant possession. Detailed planning permission exists (Refs: E1/2010/00455 & E1/2010/00454) for 33 loft-style dwellings and 5 live-work units, with private terraces overlooking the River Camel. Sizes in the consent range from approximately 2,594 ft² to 6,555 ft², offering significant revenue potential for a conversion-led scheme.
The site’s heritage status and existing permissions are key strengths but also impose constraints. As a listed building, any refurbishment or alterations will require specialist conservation input and listed-building consents; this will add time and cost. The site is in a remote hamlet location with excellent mobile signal but slow broadband — appropriate infrastructure upgrades may be needed for modern occupier expectations.
This lot will be sold at auction on 17 December 2025 on an unconditional basis. Bidders should note the 5% deposit requirement (minimum £5,000) on exchange and the 56-day completion period. The sale is subject to an undisclosed reserve; prospective buyers must undertake their own due diligence and satisfy themselves on planning, listed-building constraints, services, and access.
For an experienced developer or investor comfortable with heritage conversions and rural infrastructure improvements, this property offers a substantial plot with consented residential layouts and strong appeal from the terraces and riverside setting. For less experienced buyers the listed status, remote location, and likely service upgrades make this a complex, higher-risk project.
Land for sale in Bodmin Road, Trethowel, St Austell, PL25 — £75,000 • 1 bed • 1 bath
Land for sale in St. Breward, Bodmin, Cornwall, PL30 — £50,000 • 1 bed • 1 bath
Land for sale in Land on the North Side of Phernyssick Road, St Austell, Cornwall, PL25 3UY, PL25 — £1,000 • 1 bed • 1 bath
Plot for sale in Lanteglos, Fowey, Cornwall, PL23 — £250,000 • 1 bed • 1 bath
Land for sale in St. Issey, Wadebridge, Cornwall, PL27 — £75,000 • 1 bed • 1 bath
Land for sale in Old Mill, Callington, Cornwall, PL17 — £5,000 • 1 bed • 1 bath • 915 ft²






















































































































































