Contemporary family living with a private, non-overlooked garden.
4 double bedrooms, master with en-suite
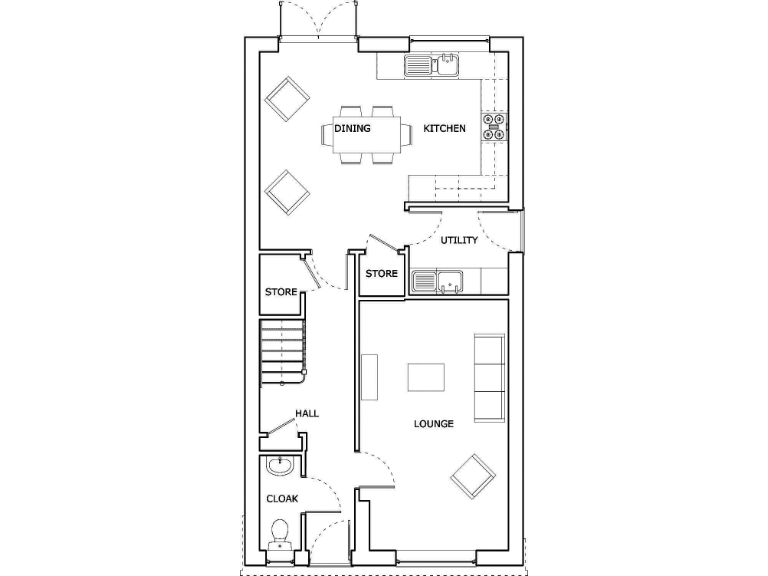
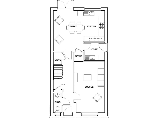
This spacious four-bedroom detached home (Plot 69 - The Colston) is designed for family living in a quiet executive development in Bestwood Village. The ground floor features an open-plan kitchen/dining area with integrated appliances and under-cabinet lighting, a separate utility, lounge and cloakroom. French doors lead from the dining area into a fully fenced, turfed rear garden that is not overlooked. Off-street parking is provided for two cars on the driveway.
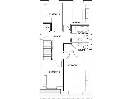
Upstairs are four double bedrooms, including a master with en-suite, plus a family bathroom. The new-build specification prioritises efficiency and safety: cavity wall and loft insulation, double glazing, low-energy lighting, energy-efficient gas heating, multipoint locks, smoke detectors and an intruder alarm. The property sits in an affluent, low-risk flood area with excellent mobile signal and fast broadband — useful for home working and family connectivity.
Buyers should note this is a new-build plot with a £500 reservation fee required to reserve (terms apply). Some images may show different plots of the same house type, and the developer reserves the right to revise plans, specifications and prices without prior notice. Overall, the house offers contemporary family space, high efficiency features and a generous private garden, but purchasers should check final specification and reservation terms before committing.
4 bedroom detached house for sale in Off Moor Road,
Bestwood Village
Nottingham,
NG6 8ZQ, NG6 — £390,000 • 4 bed • 2 bath
4 bedroom detached house for sale in Off Moor Road,
Bestwood Village
Nottingham,
NG6 8ZQ, NG6 — £390,000 • 4 bed • 2 bath • 1270 ft²
4 bedroom detached house for sale in Off Moor Road,
Bestwood Village
Nottingham,
NG6 8ZQ, NG6 — £360,000 • 4 bed • 2 bath
4 bedroom detached house for sale in Off Moor Road,
Bestwood Village
Nottingham,
NG6 8ZQ, NG6 — £400,000 • 4 bed • 2 bath • 1270 ft²
4 bedroom detached house for sale in Off Moor Road,
Bestwood Village
Nottingham,
NG6 8ZQ, NG6 — £360,000 • 4 bed • 2 bath
4 bedroom detached house for sale in Land off Hollygate Lane, Cotgrave, Nottinghamshire
NG12 3JY, NG12 — £420,000 • 4 bed • 1 bath • 594 ft²


















































































