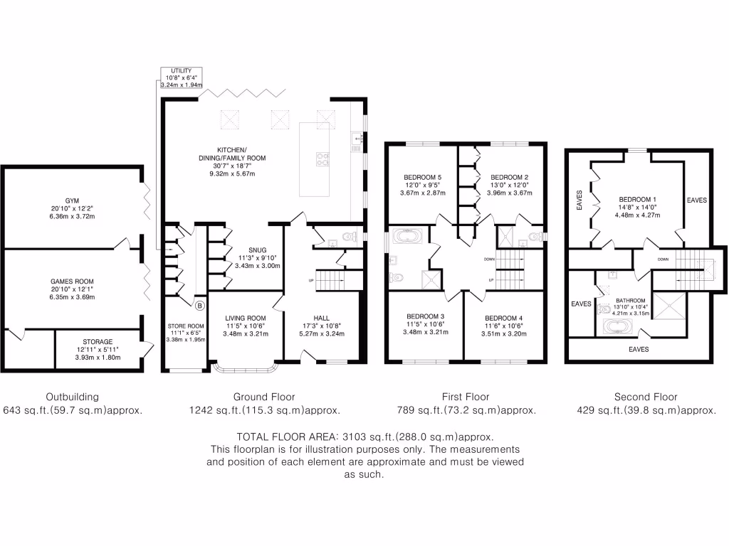
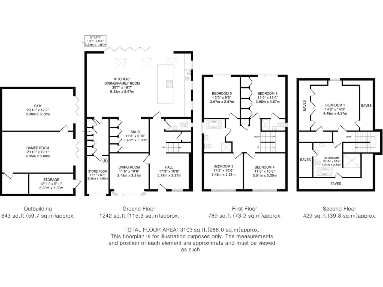
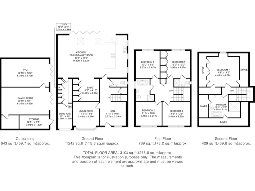
Large extended home with west garden and versatile outbuilding near St Albans station.
Five double bedrooms across three floors
A substantial five-bedroom detached house arranged over three floors, finished to a high standard and sized for family living. The ground floor centres on a spectacular kitchen/dining/family room with island, breakfast bar and bi-fold doors that open onto a west-facing rear garden — excellent for afternoon sun and indoor-outdoor entertaining. The property includes a separate outbuilding (approx. 600+ sq ft) currently arranged as gym and games room, offering flexible space for home working, leisure or storage.
Accommodation includes a bright living room with bay window, a snug with built-in storage, a large utility and multiple double bedrooms. The principal suite occupies the second floor with extensive eaves storage and a spacious en suite; a further en suite serves bedroom two and a luxury four-piece family bathroom serves the remaining bedrooms. Off-street parking and an EV charging point add practical convenience.
The house sits in one of St Albans’ sought-after residential streets, within about a mile of the city centre and mainline station and well positioned for highly regarded local schools and Clarence Park. Broadband and mobile signals are strong, and the large plot gives scope for family use and garden activities.
Notable factual points: the property’s solid-brick construction dates from the 1930s–40s and the walls are assumed to have no cavity insulation; double glazing is present but installation dates are not specified. Council tax is described as expensive. Buyers seeking the highest energy efficiency may wish to budget for insulation upgrades and to check the glazing history. Overall this is a well-presented, spacious family home with significant flexible outbuilding space but some period-related retrofit considerations.
5 bedroom detached house for sale in Charmouth Road, St. Albans, AL1 — £1,950,000 • 5 bed • 4 bath • 1952 ft²
5 bedroom detached house for sale in St. Stephens Avenue, St. Albans, St Albans, AL3 — £1,500,000 • 5 bed • 4 bath • 2813 ft²
5 bedroom detached house for sale in Watford Road, St Albans, AL1 — £2,300,000 • 5 bed • 4 bath • 3981 ft²
5 bedroom semi-detached house for sale in Harpenden Road, St. Albans, Hertfordshire, AL3 — £1,000,000 • 5 bed • 4 bath • 2356 ft²
5 bedroom semi-detached house for sale in Mile House Lane, St. Albans, AL1 — £1,200,000 • 5 bed • 3 bath • 2333 ft²
6 bedroom detached house for sale in York Road, St. Albans, AL1 — £2,750,000 • 6 bed • 6 bath • 5447 ft²


















































































































































