Sunny south garden, large driveway and premium local schools nearby.
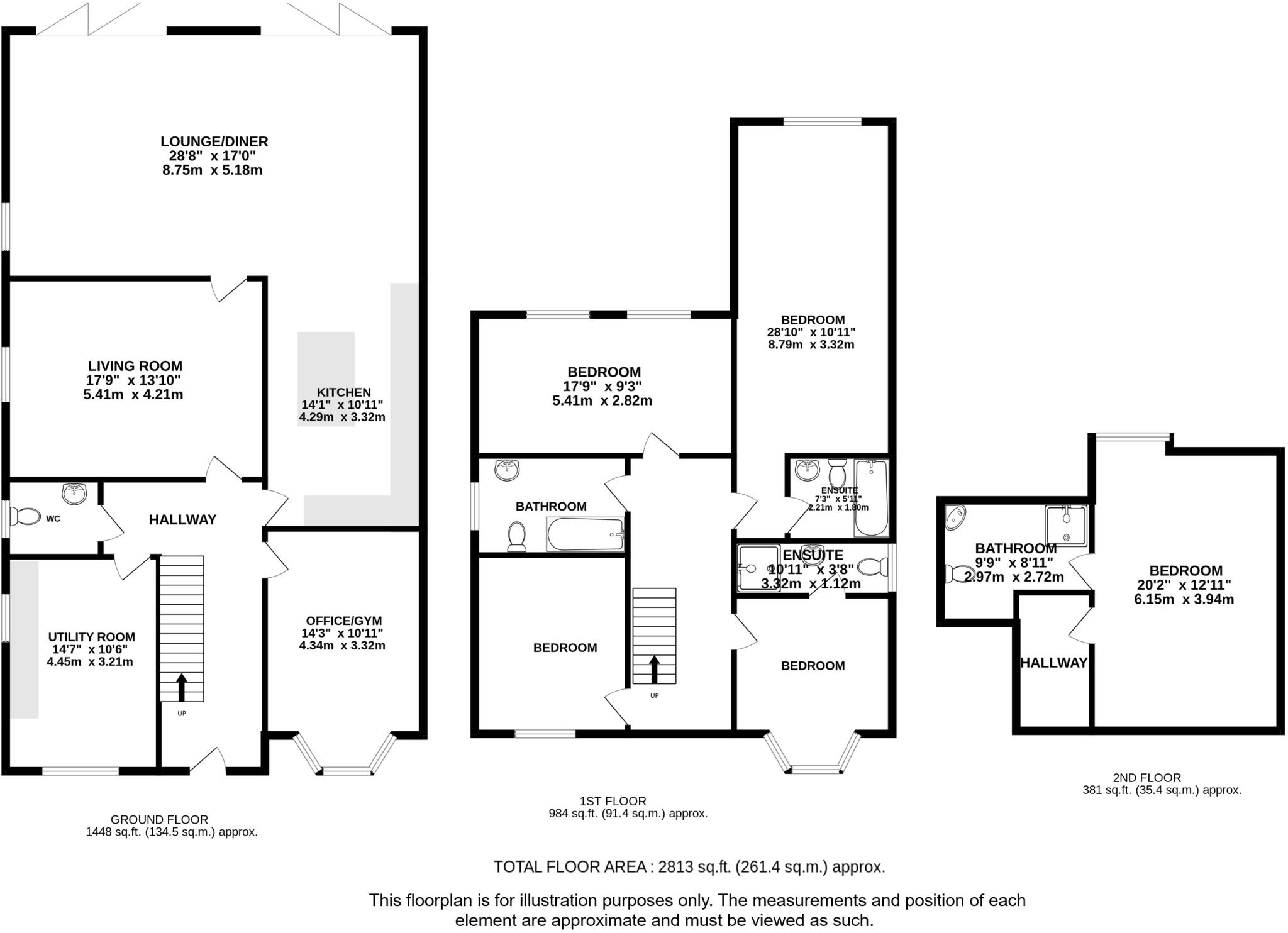
Five bedrooms and four bathrooms across three floors
Set on prestigious St Stephens Avenue, this beautifully presented five-bedroom detached house offers generous family accommodation across three floors. The heart of the home is a light-filled open-plan kitchen and dining area with folding doors to a sunny south-facing garden, ideal for children and outdoor entertaining. A separate living room, ground-floor office/gym and utility add practical flexibility for modern family life.
The first floor includes four well-proportioned bedrooms, a principal suite with en suite shower, plus an additional bathroom. A private top-floor bedroom with its own en suite provides a quiet guest or teenager retreat. Practical benefits include a substantial driveway with off-street parking for multiple vehicles, double glazing (updated post-2002), mains gas central heating and freehold tenure.
Located about 1.2 miles from St Albans city centre with easy access to schools, parks and transport links, the house suits families seeking space, good local schools and quick routes into the city or motorway network. The property dates from the 1950s–1960s and retains period character externally while offering contemporary open-plan living internally.
Notable practical points: council tax is comparatively high, and the house is of mid-20th-century construction (cavity walls with internal insulation), which prospective buyers may wish to consider for long-term energy planning. Chain free sale and no flooding risk are advantages for a smooth transaction.
5 bedroom detached house for sale in Watford Road, St Albans, AL1 — £2,300,000 • 5 bed • 4 bath • 3981 ft²
5 bedroom detached house for sale in Westfields, St Albans, Hertfordshire, AL3 — £1,250,000 • 5 bed • 3 bath • 1954 ft²
6 bedroom detached house for sale in York Road, St. Albans, AL1 — £2,750,000 • 6 bed • 6 bath • 5447 ft²
5 bedroom semi-detached house for sale in Mile House Lane, St. Albans, AL1 — £1,200,000 • 5 bed • 3 bath • 2333 ft²
5 bedroom semi-detached house for sale in Gurney Court Road, St Albans, Hertfordshire, AL1 — £1,450,000 • 5 bed • 3 bath • 2663 ft²
5 bedroom semi-detached house for sale in Harpenden Road, St. Albans, Hertfordshire, AL3 — £1,000,000 • 5 bed • 4 bath • 2356 ft²














































































































































