**Standout Features:**
- Vacant three-bedroom Victorian terrace in the highly desirable Golden Triangle area.
- Guide price: £120,000 to £140,000; suitable for cash buyers/investors.
- Requires updating and minor repairs, offering potential for customization.
- Private, fully enclosed rear garden and small front garden.
- Freehold tenure, chain-free sale, and excellent access to the city center, hospital, and university.
**Concise Summary:**
Discover this opportunity to own a three-bedroom Victorian terrace in the sought-after Golden Triangle area, perfect for cash buyers and investors looking for rental potential or a modest family home. While this well-positioned property requires renovation, it boasts a private rear garden and gas central heating, providing a cozy atmosphere despite its current condition.
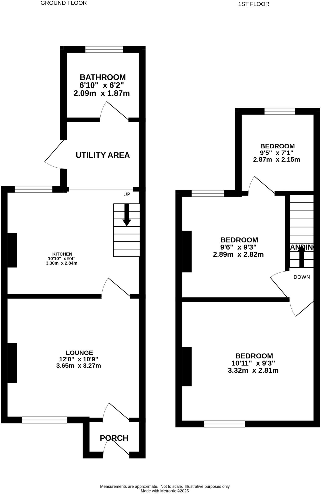
Spanning over 530 square feet, the home's layout includes an entrance porch, lounge, modern kitchen with integrated appliances, ground floor bathroom, and three bedrooms, making it an appealing project for those wanting to add their personal touch. With on-street parking available and average crime rates, this location offers a balance of comfort and convenience.
Seize this chance for a renovation project at a competitive price before it goes to auction on June 18, 2025. Schedule a viewing before it’s gone, as properties in this affluent area don’t stay on the market for long!
3 bedroom terraced house for sale in 47 Cardiff Road, Norwich, Norfolk NR2 3HR, NR2 — £195,000 • 3 bed • 1 bath • 733 ft²
3 bedroom terraced house for sale in Melrose Road, Norwich, NR4 — £190,000 • 3 bed • 1 bath • 797 ft²
3 bedroom terraced house for sale in 26 Esdelle Street, Norwich, Norfolk NR3 3BN, NR3 — £130,000 • 3 bed • 1 bath • 701 ft²
2 bedroom terraced house for sale in 42 Heath Road, Norwich, Norfolk NR3 1JW, NR3 — £110,000 • 2 bed • 1 bath • 606 ft²
2 bedroom terraced house for sale in Cardiff Road, Norwich, Norfolk, NR2 — £175,000 • 2 bed • 1 bath • 756 ft²
3 bedroom terraced house for sale in 41 Junction Road, Norwich, Norfolk NR3 2JQ, NR3 — £90,000 • 3 bed • 1 bath • 759 ft²


















































